Thursday, November 29th, 2018 AT 8:59 AM
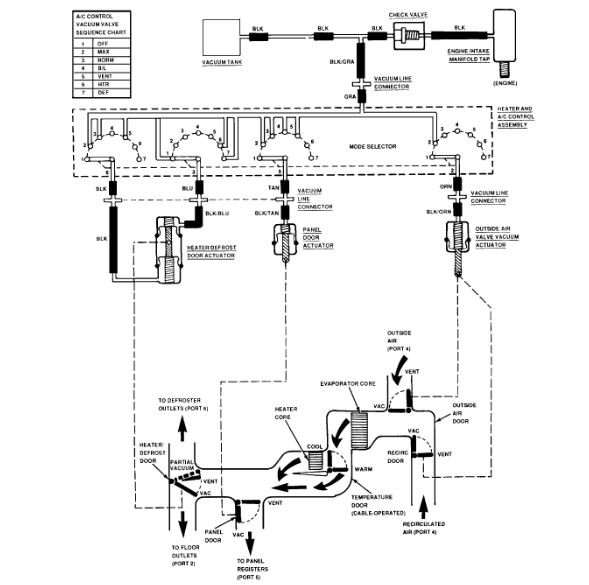
Van has a black ball (like toilet float) under hood that should have a vacuum hose attached. I think it controls heater, maybe cruise control, other stuff. I have no heat but plenty air for A/C. WI needs heat ha ha. I think it may go to a control module that may be located on firewall by driver's fender/bumper but can not find anything in Haynes or Chiltons. What do I look for and where? Do you know if the hose length is pre-made and what it would be called or do I have to locate module and measure? I am a seventy one year old female diy'er, but realize I may have to take to mechanic as it may have to go on a lift. Any and all help is appreciated.


