HVAC fan motor not working

Tiny
LUCKYTRDR
  • MEMBER
  • 1991 HONDA PRELUDE
  • 4 CYL
  • FWD
  • AUTOMATIC
  • 170,000 MILES
The fan motor for heat/AC, does not work. The fuse is okay. How can I narrow down the problem to the fan motor itself or is there some type of relay or switch
failing?
Tuesday, June 15th, 2010 AT 8:58 PM

4 Replies

Tiny
KHLOW2008
  • MECHANIC
  • 41,814 POSTS
Hi luckytrdr,

Disconnect the fan motor and apply battery voltage to test if the motor works.
Was this
answer
helpful?
Yes
No
Wednesday, June 23rd, 2010 AT 2:07 PM
Tiny
LUCKYTRDR
  • MEMBER
  • 2 POSTS
To disconnect fan motor, would pulling the fuse do that? And if so and no fan action once applying battery power, whats the next step? I know there is supposedly a resister in the circuit as well as the multi-power switch knob. How to test these issues one at a time is my question? Thanks for your help, I do appreciate it.
Was this
answer
helpful?
Yes
No
Thursday, June 24th, 2010 AT 2:27 AM
Tiny
KHLOW2008
  • MECHANIC
  • 41,814 POSTS
You need to get under the glove box to disconnect the coupler to the fan motor. At the wire harness you can test if battery voltage is available at one of the terminals.
Was this
answer
helpful?
Yes
No
Thursday, June 24th, 2010 AT 8:28 AM
Tiny
JACOBANDNICKOLAS
  • MECHANIC
  • 110,194 POSTS
Hi,

If you are certain the fuses are good, please confirm there is power to them. Here is a link you may find helpful:

https://www.2carpros.com/articles/how-to-check-a-car-fuse

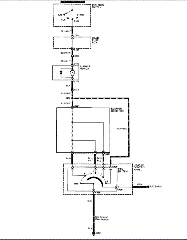
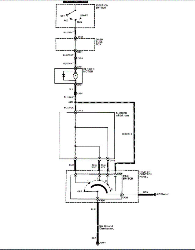
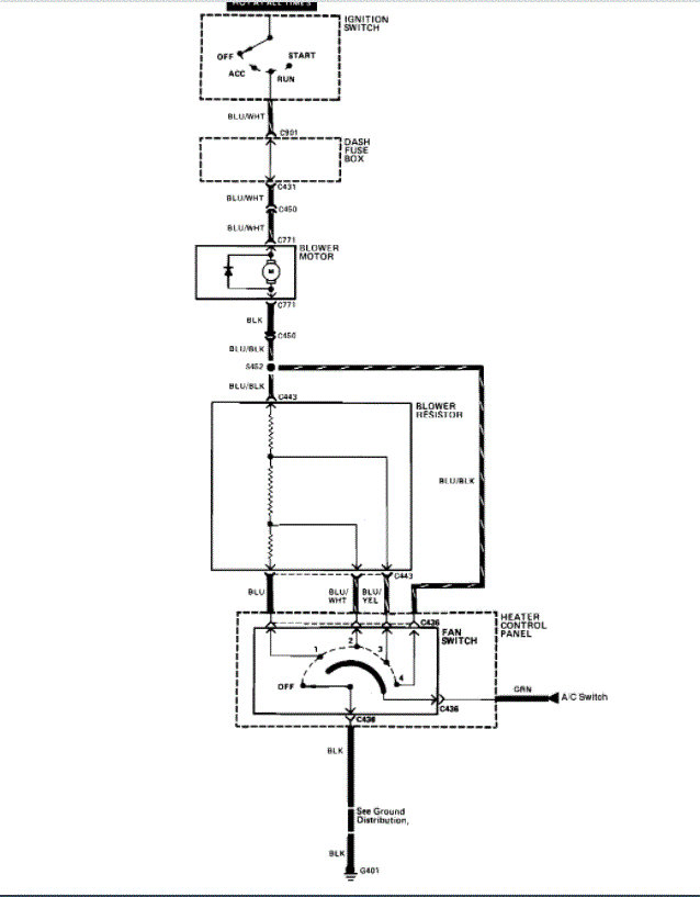
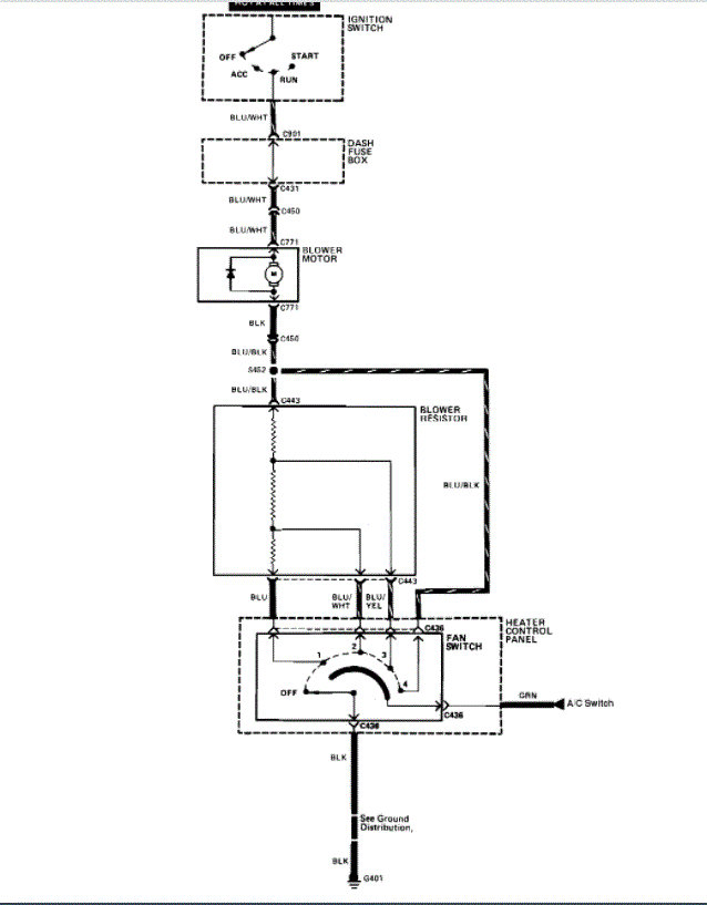
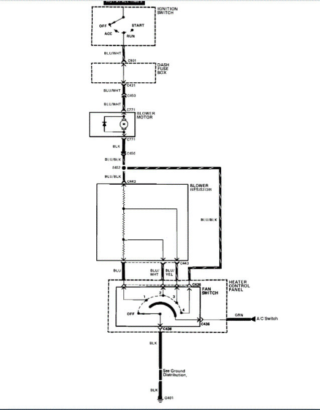
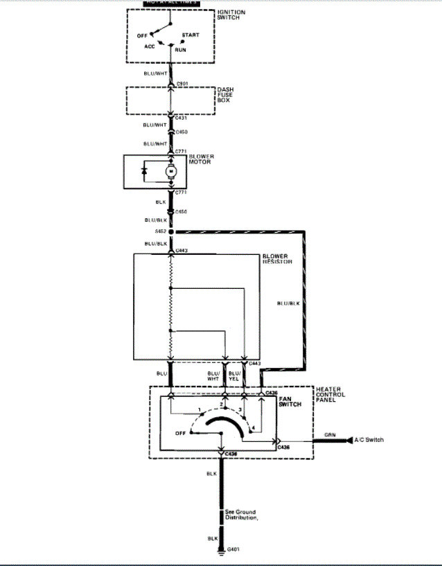
I am going to explain how this system works. Once the key is turned on, there is power at the blower motor. It is there all the time. On the blower motor itself, there is a blue wire with a white tracer and a black wire. The blue/white wire should have power. Check it for 12v with the key on.

Now, to complete the circuit, a ground path is provided via the blower motor switch in the vehicle. Power is directed through different levels or resistance via the blower motor resister.

If the blower motor resister is bad, usually, you will only have high speed on the blower. If you have nothing, then you need to check that blue /white wire I mentioned. If there is power there, check the black wire for continuity to ground with the blower motor switch on.

If you have both power and ground, replace the blower motor.

I attached the wiring schematic of the system below for your review.

Let me know what you find or if you have other questions.

Take care,
Joe
Was this
answer
helpful?
Yes
No
Wednesday, August 12th, 2020 AT 10:31 PM

Please login or register to post a reply.