HOME
ASK A QUESTION
REPAIR GUIDES
BECOME A MEMBER
LOG IN
Login with Facebook
OR
Remember me
NOT A MEMBER?
FORGOT PASSWORD?
CONTACT US
PRIVACY POLICY
TERMS AND CONDITIONS
☰
Home
Chevrolet
S-10
Interior
Dashboard
Heating hose diagram?
JOHNRUTHIE49
MEMBER
1992 CHEVROLET S-10
100,000 MILES
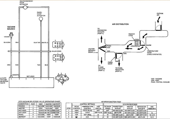
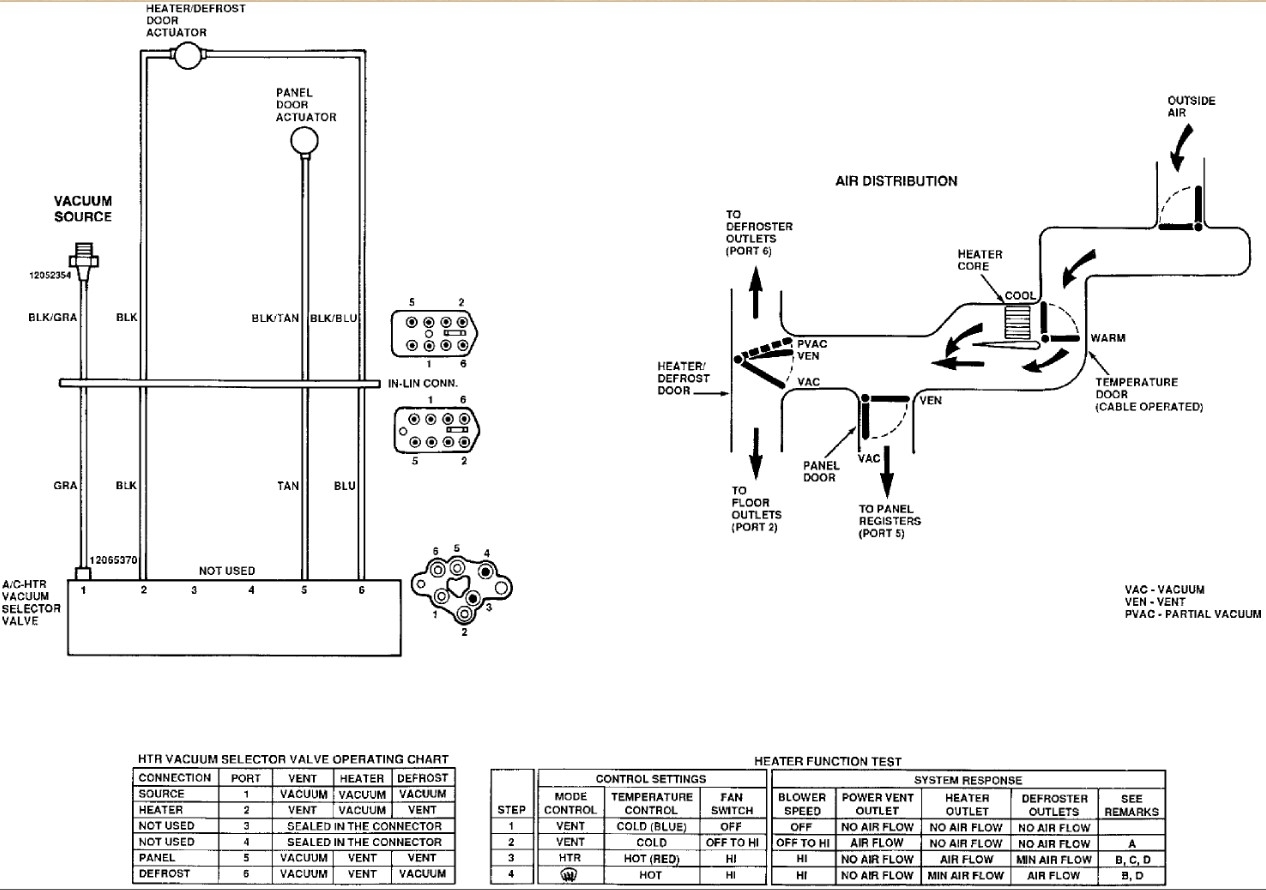
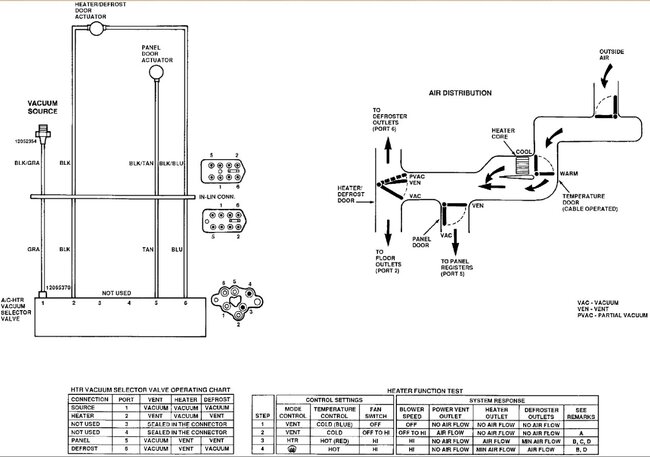
Under dash diagram for heating hose
Saturday, February 21st, 2026 AT 8:25 AM
1 Reply
STEVE W.
MECHANIC
15,688 POSTS
There are no heater hoses under the dash, did you mean the vacuum control lines for the HVAC system perhaps. Attached is a diagram for those as well as how the system operates.
Image (Click to make bigger)
Was this
answer
helpful?
Yes
No
Saturday, February 21st, 2026 AT 11:22 AM
Please
login
or
register
to post a reply.
Related Dashboard Content
1992 Chevy S-10 Slowly Losing Accessorys
1st To Go Was The Heater Blower Would Go Off On It Own Sometimes But Then A Passenger Door Closing Would Get It Going Again. That Doen't...
Asked by
linkaboutit
·
1 ANSWER
1992
CHEVROLET S-10
VIDEO
Kick Panel Removal
Instructional repair video
1990 Chevy S10 Gas Pedal
I Have A 1990 Chevy S10 2wd, And It Seems Hard To Press The Gas Pedal Smoothly Especially In Traffic. I Have To Press It Kinda Hard To Get...
Asked by
project 93
·
2 ANSWERS
1990
CHEVROLET S-10
1993 Chevy S-10 Holding Down Gas Pedal To Start And...
My S10 Recently Started Acting Up, The Only Way To Start The Truck Is To Hold Down The Gas Pedal, Once Its Started You Must Continue To...
Asked by
heathman914
·
1 ANSWER
1993
CHEVROLET S-10
2002 Chevy S-10 Wet Carpet Under Drivers Mat
The Carpet On The Drivers Side Of My S-10 Puckup Gets Wet Under The Floor Mat After I Have Driven It For A Full Hour Or More. The Carpet...
Asked by
Shadow719
·
1 ANSWER
2002
CHEVROLET S-10
2003 Chevy S-10 Console
How Do You Take Off The Center Console? I Need To Tighting It Up Before My Seat Covers Come.
Asked by
par80hope
·
1 ANSWER
2003
CHEVROLET S-10
VIEW MORE
Ask a Car Question. It's Free!
Instrument Cluster Replacement
Hood Open
Blend Door Actuator Replacement