Heater fan runs does not turn off

Tiny
JEROME HUBBARD
  • MEMBER
  • 1996 CADILLAC ELDORADO
  • V8
  • 2WD
  • AUTOMATIC
  • 69,000 MILES
The heater fan runs all the time even when the key is removed. I looked for a heater fan relay, but could not find one. Had to unplug the fan motor to keep it from running the battery down. Any help or fixes would be great.
Friday, August 7th, 2020 AT 11:09 PM

1 Reply

Tiny
STEVE W.
  • MECHANIC
  • 15,697 POSTS
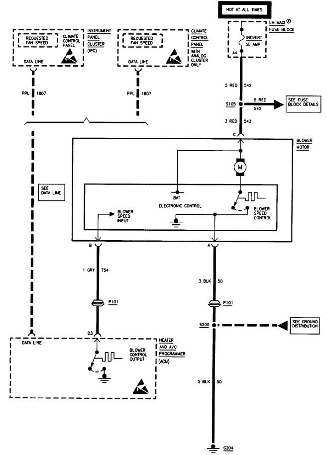
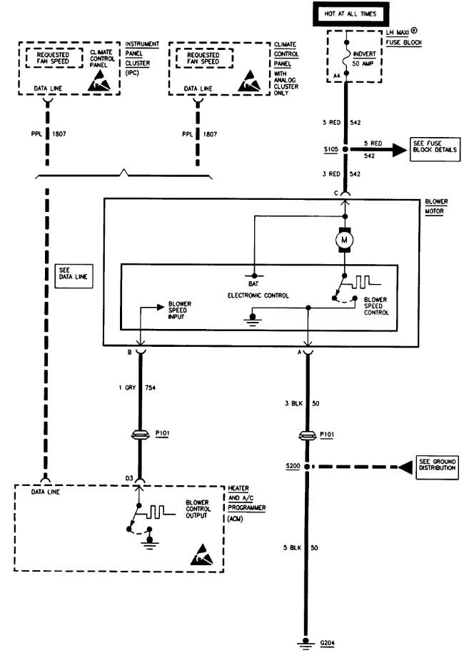
Hello, There is no relay or individual blower fuse on that model. The blower itself has the control module built into it and just has a power a ground and the control wire in the connection. To determine if it is the control head or the blower motor at fault requires a scan tool that can control the fan and command it to the various speeds.
Current dealer pricing on that motor is about $300.00 to $500.00 while you can get an aftermarket for under $100.00. GM 52494108. So a used or new unit might be cheaper to use for testing than a shop. You can just plug it in and see if it works, if so it's the blower electronics. If not then it is the control head.

Factory method of blower removal -
Disconnect the negative battery cable.
Remove the camshaft cover to get clearance to remove blower motor.
Remove the blower motor. Either 5 or three screws depending on unit.

Replacement may require some trimming if you use the current replacement parts and it has never been replaced as the new parts have a slightly different profile.

If present, remove the 2 ribs located on the barrier. Refer to Step 3 and the illustrations in the Instruction Sheet, P/N 52494110, found in the blower motor kit.
Important ensure the blower motor gasket makes a complete seal around the blower motor.

Install the new blower motor with heat shield. Refer to Steps 4 and 5 in the Instruction Sheet, P/N 52494110, found in the blower motor kit.

Install the blower motor retaining screws.
Tighten the lower heat shield retaining screws to 4 N.M (35 lb in).
Connect the connector to the blower motor.
Install the camshaft cover.
Connect the negative battery cable.

Shortcut method is to leave the cam cover on, but remove the 2 engine cradle bolts in the front enough that the engine can rock forward enough to clear the blower motor. Much faster and no need to take it all apart just for clearance. You may still need to trim the ribs depending on the actual build date.
Was this
answer
helpful?
Yes
No
Saturday, August 8th, 2020 AT 4:51 AM

Please login or register to post a reply.