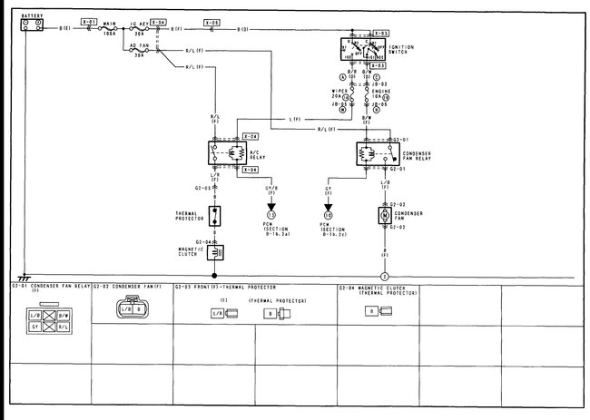
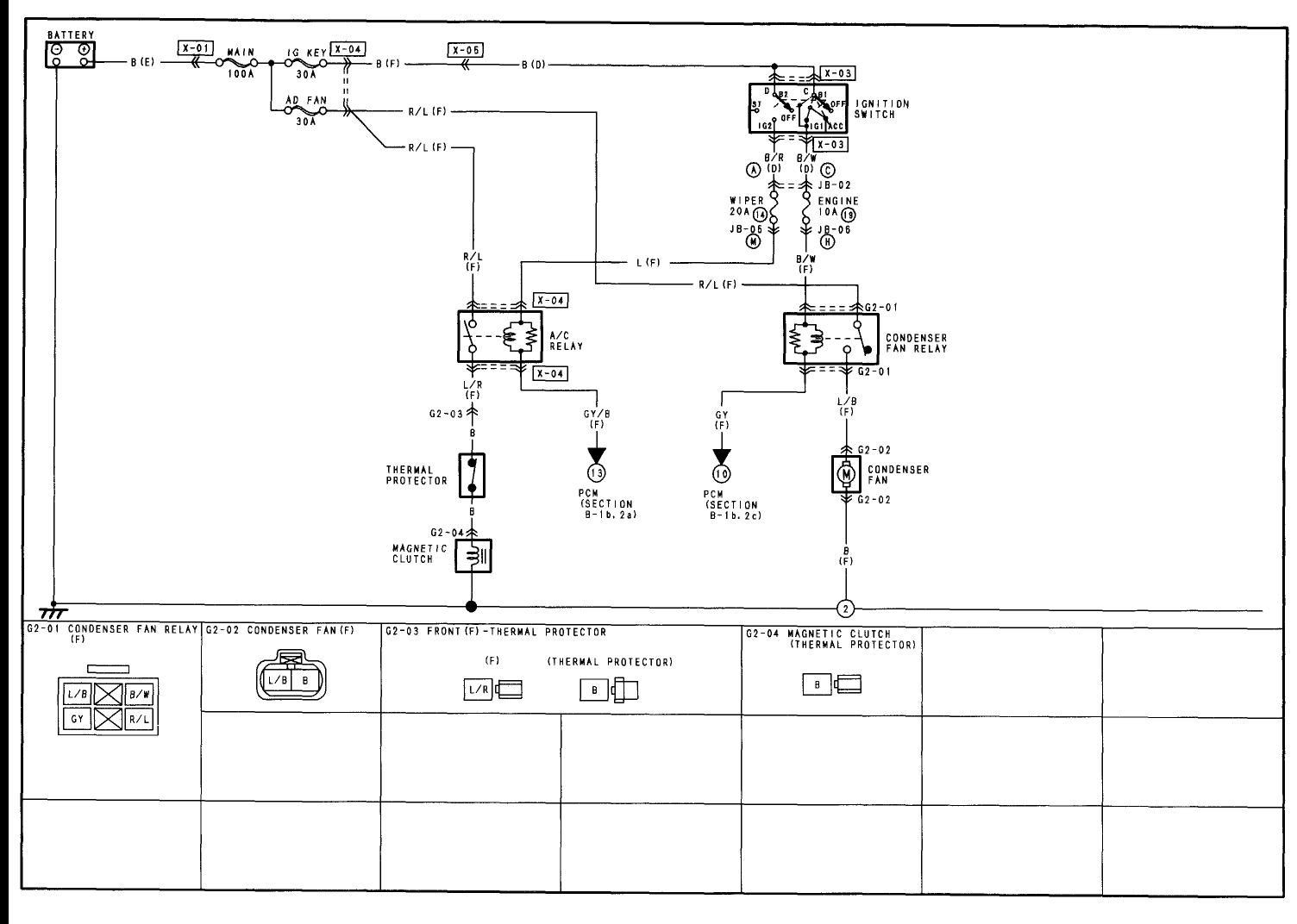
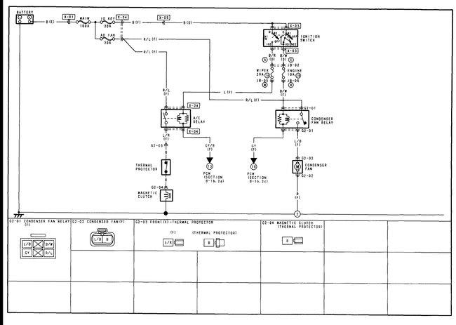
The AC compressor should turn on when the AC switch is turned on and the blower switch is in any position except off.
In mine, the AC compressor turns on with the AC switch in the off position everytime the blower switch is moved to any position except off.
Any advice would be greatly appreciated.
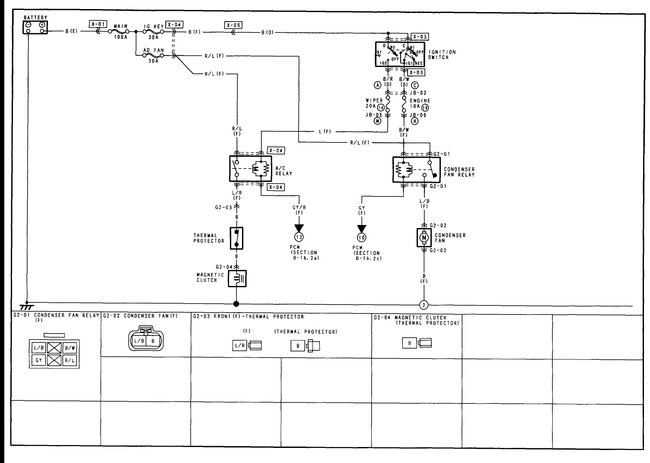
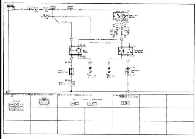
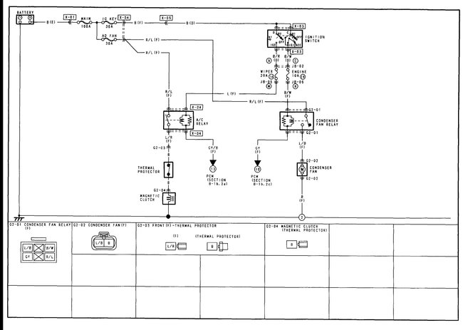
In mine, the AC compressor turns on with the AC switch in the off position everytime the blower switch is moved to any position except off.
Any advice would be greatly appreciated.
Dec 19, 2017 at 8:40 PM
