Heated and cool seats do not work

Tiny
JIMEDWARDS
  • MEMBER
  • 2010 LINCOLN MKX
  • 6 CYL
  • 87,729 MILES
Heated seat light goes on for five seconds then goes out same with cool seats light.
Friday, January 18th, 2019 AT 3:09 PM

3 Replies

Tiny
KEN L
  • MASTER CERTIFIED MECHANIC
  • 55,481 POSTS
Hello,

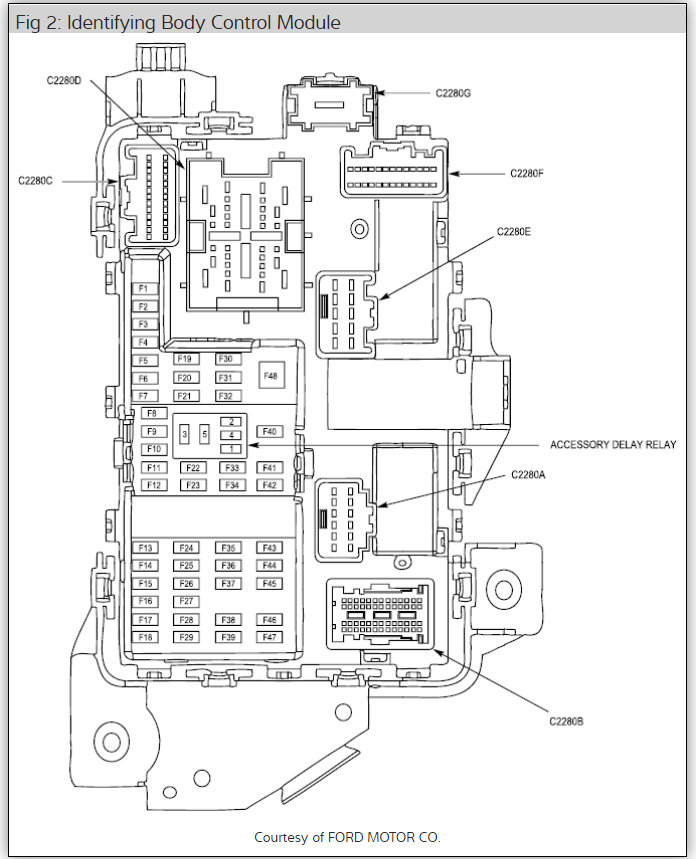
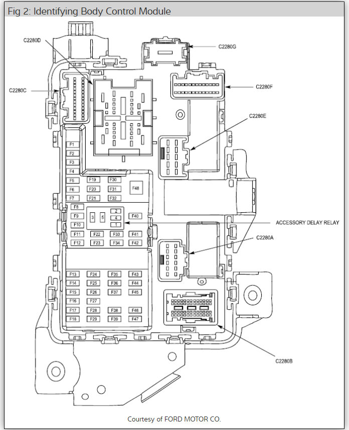
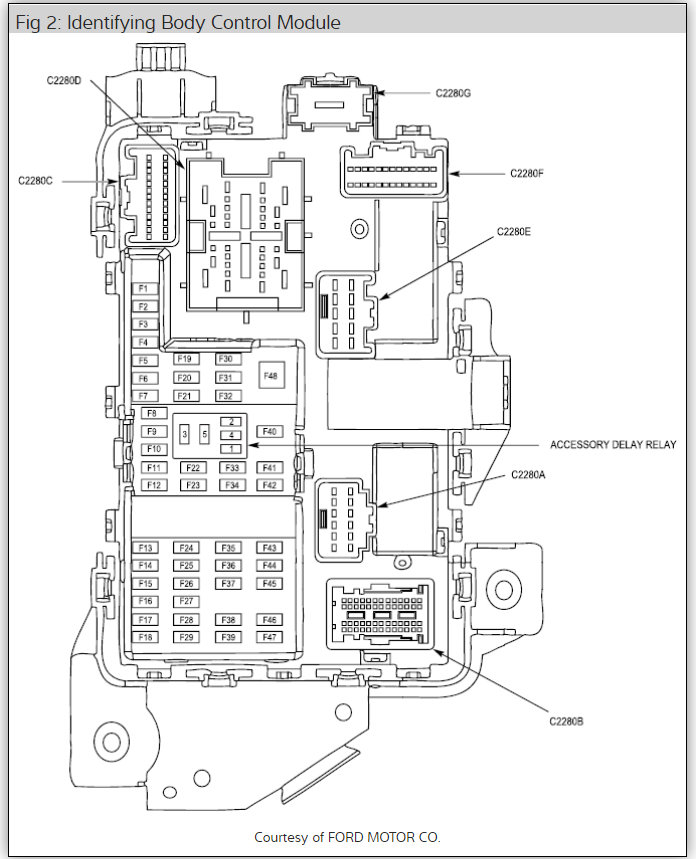
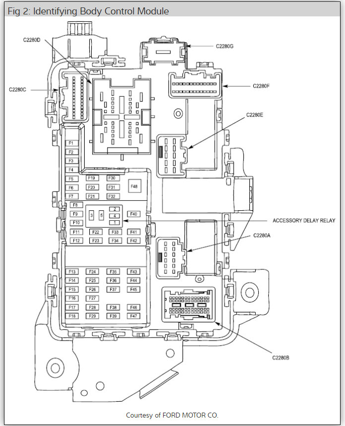
It sounds like the dual seat climate control module has gone out but to be sure let's check the fuses #f16 and #f35. here is a guide to help us get started and the fuse location below along with the wiring diagrams and instructions on how to change out the DCSM seat module:

https://www.2carpros.com/articles/how-to-check-a-car-fuse

Dual Climate Controlled Seat Module (DCSM)

Removal and Installation

NOTE: When installing a new Dual Climate Controlled Seat Module (DCSM), it is necessary to carry out Programmable Module Installation (PMI). For additional information, refer to Information Bus. See: Information Bus > Programming and Relearning

NOTE: The air bag warning indicator illuminates when the correct Restraints Control Module (RCM) fuse is removed and the ignition is ON.

NOTE: The Supplemental Restraint System (SRS) must be fully operational and free of faults before releasing the vehicle to the customer.

1. Before removing the DCSM, carry out the appropriate steps in the Programmable Module Installation (PMI) procedure. For additional information, refer to Information Bus. See: Information Bus > Programming and Relearning

2. Remove the front passenger seat. For additional information, refer to Seat - Front See: Seats > Removal and Replacement > Seat - Front.

3. Remove the DCSM.
- Disconnect the 3 electrical connectors.

- Remove the 2 screws.

- Remove the DCSM.

4. To install, reverse the removal procedure.

5. Install the front passenger seat. For additional information, refer to Seat - Front See: Seats > Removal and Replacement > Seat - Front.

6. Install the DCSM software data. Carry out the appropriate steps in the Programmable Module Installation (PMI) procedure. For additional information, refer to Information Bus. See: Information Bus > Programming and Relearning

Front Seats
Without Cooled Seats
Control Module
7E5Z14C724A
168.78

With Cooled Seats
Control Module
9U5Z14C724B
260.20

Rear Seats
Memory Module
5W1Z14C724AA
179.20

Check out the diagrams (below). Please let us know what you find. We are interested to see what it is.
Was this
answer
helpful?
Yes
No
+1
Monday, January 21st, 2019 AT 12:19 PM
Tiny
COKEFIRST
  • MEMBER
  • 4 POSTS
I have a 2015 Lincoln MKZ Hybrid I just purchased. It has 119,000 miles. The heated/cooled seats do not work in the front on either side. The indicator lights for both seats, heating or cooling come on with the 3 lights for either operation but neither seat will heat or cool. The heated steering wheel does work. I checked the fuses, and they are good. Is the heating/cooling module in the driver's seat the control for both seats? It would seem odd that both the passenger seat and the driver's seat would quit working if there is two actual modules.
Was this
answer
helpful?
Yes
No
+1
Monday, April 11th, 2022 AT 9:56 AM
Tiny
KEN L
  • MASTER CERTIFIED MECHANIC
  • 55,481 POSTS
Yep, the clue is the steering wheel controls are not working which suggests the clock spring is bad behind the steering wheel which will disable the system. Here is a generic guide on how to replace it with instructions for your car in the diagrams below:

https://www.2carpros.com/articles/steering-wheel-clock-spring-removal

Check out the diagrams (below). Let us know what happens and please upload pictures or videos of the problem.
Was this
answer
helpful?
Yes
No
-1
Wednesday, April 13th, 2022 AT 5:18 PM

Please login or register to post a reply.