HOME
ASK A QUESTION
REPAIR GUIDES
BECOME A MEMBER
LOG IN
Login with Facebook
OR
Remember me
NOT A MEMBER?
FORGOT PASSWORD?
CONTACT US
PRIVACY POLICY
TERMS AND CONDITIONS
☰
Home
Ford
Ranger
Engine
Wiring
GEM module wiring diagram needed
PPCAYER
MEMBER
2001 FORD RANGER
2.5L
4 CYL
2WD
MANUAL
260 MILES
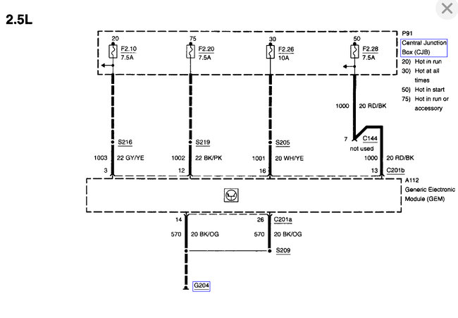
Would light to find a wiring diagram for the GEM module # XL5T-14B205-DE.
Sunday, October 31st, 2021 AT 7:47 AM
3 Replies
SQM
MECHANIC
6,383 POSTS
Hello,
I have attached the wiring schematics and the pinouts for the GEM.
Please let me know of any questions.
Thank you.
https://www.2carpros.com/articles/how-to-check-wiring
Images (Click to make bigger)
Was this
answer
helpful?
Yes
No
+1
Sunday, October 31st, 2021 AT 12:12 PM
PPCAYER
MEMBER
3 POSTS
I would like to thank the person SQM for the answer back. It was exactly what I needed
Thanks again,
Philip
Was this
answer
helpful?
Yes
No
Monday, November 1st, 2021 AT 6:02 AM
SQM
MECHANIC
6,383 POSTS
You are welcome.
Was this
answer
helpful?
Yes
No
Monday, November 1st, 2021 AT 7:35 AM
Please
login
or
register
to post a reply.
Related Engine Wiring Content
I Need A Fuel Pump Wiring Diagram
The Wires On Fuel Pump Harness Are All Wrong. I Need A Fuel Pump Wiring Harness To Match The Correct Wires. Thank You.
Asked by
johnwmoore92
·
29 ANSWERS
24 IMAGES
1994
FORD RANGER
1987 Ford Ranger 3.2 Fuel Injection
Been Having Intermittin Problem With My Truck Where It Acts Like It's Running Out Of Fuel. It All Started When I Started Making Trips Up...
Asked by
yawzy
·
2 ANSWERS
1987
FORD RANGER
Oil Pump Gauge Going Up And Down.
What Could Cause This Problem?
Asked by
William Earl Evans
·
2 ANSWERS
2001
FORD RANGER
2001 Ford Ranger Oil Change
Engine Performance Problem 2001 Ford Ranger 6 Cyl Two Wheel Drive Automatic 2001 Ford Ranger Xlt What Type Of Oil An How Many Quarts...
Asked by
wardancelb
·
2 ANSWERS
2001
FORD RANGER
Battery Or Starter
Turn The Key And Sometimes The Car Will Start, Others It Wont Turn Over. Could This Be Battery Or Starter?
Asked by
pwprocks
·
2 ANSWERS
2001
FORD RANGER
VIEW MORE
Ask a Car Question. It's Free!
How to Use a Test Light
Spark Plug Replacement Toyota Rav4 2006-2012
How to Change Oil and Filter Porsche Cayenne