Not starting

Tiny
SGORDON80
  • MEMBER
  • 1988 FORD RANGER
  • 2.9L
  • V6
  • 2WD
  • AUTOMATIC
  • 184,466 MILES
New motor, new fuel tank, new pump, new fuel pump relay, new fuel pressure regulator, fuel pumps internal and external. No power going to external pump. Fuel pump in tank is not working. I ran hot to external pump truck tries to start but won't. What feeds pump in tank inertia switch then to relay going backwards where does hot going to external pump come from does it need both pumps to run?
88 ranger 2.9 engine swap.
Sunday, March 20th, 2022 AT 11:36 PM

1 Reply

Tiny
JACOBANDNICKOLAS
  • MECHANIC
  • 110,192 POSTS
Hi,

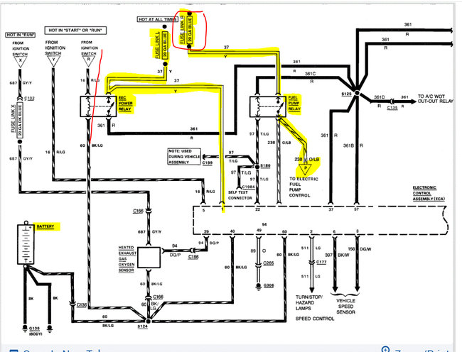
First, because of the model year, schematics are a bit thin. I attached what I could find.

I have to jump around from one pic to the next to try and make sense of this. If I'm reading it correctly, when the key is turned on, power is transferred by the EEC relay to the ECU. From there it is distributed to the fuel pump relay, the inertia switch, and then to the pump.

Pic 1 shows the general schematic. Pic 2 shows where the power comes from for the inertia switch (circled), and pic 3 shows three fusible links I need you to check.

The last two pics show the inertia switch. It receives power from the fuel pump relay. See the wire I circled in pic 2.

Now, you have no fuel, confirm there is no spark. If you lost both spark and fuel, switch the EEC relay with a different one in the box having the same part number and see if that changes things.

Let me know. And I apologize in advance for the schematics. They are tough to follow, but they were the best I could find.

Take care and let me know the results or if you have other questions.

Joe

See pics below.
Was this
answer
helpful?
Yes
No
Monday, March 21st, 2022 AT 8:43 PM

Please login or register to post a reply.