Fuel pump not working?

Tiny
NATHANIELBUSS308
  • MEMBER
  • 2000 CADILLAC SEVILLE
  • 140,000 MILES
Every time I turn over the key it burns the fuel pump fuse out, now the fuel pump does have power to it, but it is not working.
Sunday, June 25th, 2023 AT 11:05 PM

1 Reply

Tiny
KEN L
  • MASTER CERTIFIED MECHANIC
  • 55,538 POSTS
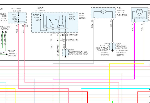
Yep, it sounds like the fuel pump has gone out, how do you the fuel pump has power? There is a fuel pump relay as well. Here is how the fuel pump is wired so you can see how the system works and how to change the fuel pump out as well. Check out the images (below). Please let us know how it goes
Was this
answer
helpful?
Yes
No
Monday, June 26th, 2023 AT 5:45 PM

Please login or register to post a reply.