Fuel pump is not getting power?

Tiny
TYMONEY
  • MEMBER
  • 2002 CHEVROLET EXPRESS
  • 5.7L
  • V8
  • 2WD
  • AUTOMATIC
  • 67,283 MILES
Hi, I turn the key and I don't hear anything.
Monday, February 26th, 2024 AT 6:56 PM

34 Replies

Tiny
JACOBANDNICKOLAS
  • MECHANIC
  • 110,194 POSTS
Hi,

I traced out the wiring for you below.

Here is what I need you to do first. Check the ECM B fuse in the under-hood fuse box. In addition to checking the fuse, make sure there is power to and from it.

Here is a link you may find helpful:

https://www.2carpros.com/articles/how-to-check-a-car-fuse

If that is good, remove the fuel pump relay. On the relay itself, you will see a number identifying each pin. Locate pin 30 and pin 87. Then, take a jumper wire and jump the two pins I mentioned. By doing this, you will be sending power directly to the fuel pump. This is a test to see if the pump itself may be an issue.

Do these two tests and let me know what you find.

Take care,

Joe

See pics below.
Was this
answer
helpful?
Yes
No
+1
Monday, February 26th, 2024 AT 8:18 PM
Tiny
TYMONEY
  • MEMBER
  • 22 POSTS
Hi Joe,

Man, it's appreciated but give me a minute to work on the van it's going to be a couple days I will be in touch.

I wanted to add the fuel pump has been changed since this last Friday. But not the wiring connector wasn't changed. It cranks but there is no sign of the fuel pump turning on.
Was this
answer
helpful?
Yes
No
Tuesday, February 27th, 2024 AT 3:33 PM
Tiny
JACOBANDNICKOLAS
  • MECHANIC
  • 110,194 POSTS
Hi:

You are very welcome and take your time. Let me know what you find when you have a chance. Also, let me know if you have other questions.

Take care,

Joe
Was this
answer
helpful?
Yes
No
+1
Tuesday, February 27th, 2024 AT 6:15 PM
Tiny
TYMONEY
  • MEMBER
  • 22 POSTS
Hi man,

It has been a minute but it's running the van it's sputtering from 10 MPH to 25 MPH then smooth at times in reverse it runs fine.
Long story short it was a wire under the driver's seat, and it started right up.

But is it possible for you to get me a diagram to the fuel pump gas lines to be sure they are all going in the right direction?
Was this
answer
helpful?
Yes
No
Monday, March 11th, 2024 AT 4:11 PM
Tiny
TYMONEY
  • MEMBER
  • 22 POSTS
Joe, man, hope everything is wonderful on your side.
Was this
answer
helpful?
Yes
No
Monday, March 11th, 2024 AT 4:11 PM
Tiny
JACOBANDNICKOLAS
  • MECHANIC
  • 110,194 POSTS
Hi,

The only pic I have is attached below (very generic). Let me know if it helps, and by the way, I'm glad to hear you got it fixed. Good job.

Let me know.

Joe

See pic below.
Was this
answer
helpful?
Yes
No
+1
Monday, March 11th, 2024 AT 7:20 PM
Tiny
TYMONEY
  • MEMBER
  • 22 POSTS
30 has power 87 has power 86 has power for 2 seconds then stops with key on. Any ideas?
Was this
answer
helpful?
Yes
No
Monday, March 25th, 2024 AT 5:47 PM
Tiny
TYMONEY
  • MEMBER
  • 22 POSTS
Hi Joe, man, it's the van again not starting when I test with 85 fuse the EGR valve clicks but van not starting fuel pump is just clicks.
Was this
answer
helpful?
Yes
No
Monday, March 25th, 2024 AT 5:48 PM
Tiny
JACOBANDNICKOLAS
  • MECHANIC
  • 110,194 POSTS
Hi,

Welcome back. This isn't good news. LOL As far as the clicking when trying to start it, do you mean the starter just clicks? If so, take a look through this link and let me know if it helps:

https://www.2carpros.com/articles/starter-not-working-repair

If it isn't the starter, let me know. Additionally, let me know if you checked for diagnostic trouble codes.

Take care,

Joe

Was this
answer
helpful?
Yes
No
+1
Monday, March 25th, 2024 AT 8:08 PM
Tiny
TYMONEY
  • MEMBER
  • 22 POSTS
It's late but man it's turning over but not starting. The fuel pump makes no sound just a click and engine turning over.
Was this
answer
helpful?
Yes
No
Monday, March 25th, 2024 AT 8:52 PM
Tiny
TYMONEY
  • MEMBER
  • 22 POSTS
Afternoon Joe, man, I'm here with the van turning over not starting don't hear fuel pump. It's not starting no codes on obd2scanner. Any ideas?
Was this
answer
helpful?
Yes
No
Tuesday, March 26th, 2024 AT 9:05 AM
Tiny
JACOBANDNICKOLAS
  • MECHANIC
  • 110,194 POSTS
Hi,

Have you checked or switched out the relay? Just as a confirmation, does it start if you use starting fluid and then stall?

Let me know.

Joe
Was this
answer
helpful?
Yes
No
+1
Tuesday, March 26th, 2024 AT 6:44 PM
Tiny
TYMONEY
  • MEMBER
  • 22 POSTS
Yes, switched relays it's just turning over fuse blew when jumping it ECM b fuse and ECM 1 fuse when starting it I think I'm going to look under the PCM and ECM is there a diagram for wiring.
Was this
answer
helpful?
Yes
No
Tuesday, March 26th, 2024 AT 6:52 PM
Tiny
JACOBANDNICKOLAS
  • MECHANIC
  • 110,194 POSTS
Hi,

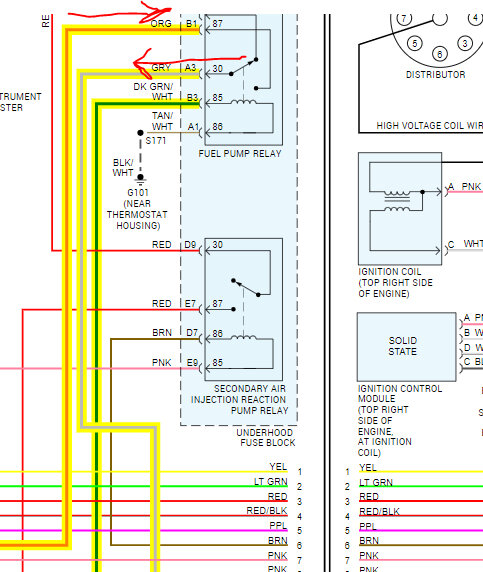
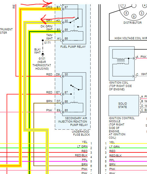
The wiring schematic that includes the PCM is tied into the powertrain management circuit and is four pages long.

I attached the entire schematic below. However, to make it readable, I had to cut each page in half. I did overlap them so you can follow from one to the next. Additionally, I highlighted the wiring related to the two fuses that failed and indicated the location of the fuel pump relay.

The PCM is located on pages one and four in the manual. Therefore, they are pics 1 and 2 below and pics 7 and 8 because I cut the pages in half.

Let me know if this helps.

Joe

See pics below.
Was this
answer
helpful?
Yes
No
+2
Tuesday, March 26th, 2024 AT 7:57 PM
Tiny
TYMONEY
  • MEMBER
  • 22 POSTS
Sweet thanks a bunch.

One more diagram the fuel pump wiring harness I think the wiring may be connected improperly. I see an orange wire on it. I'm not sure that it goes to the fuel pump. I'd need a diagram to be sure.
Was this
answer
helpful?
Yes
No
+1
Tuesday, March 26th, 2024 AT 9:04 PM
Tiny
JACOBANDNICKOLAS
  • MECHANIC
  • 110,194 POSTS
Hi,

At the pump, there should be three wires, black, gray, and purple. Where are you seeing an orange wire? Can you tell where it is coming from?

Joe

See pic below.
Was this
answer
helpful?
Yes
No
+2
Tuesday, March 26th, 2024 AT 9:24 PM
Tiny
TYMONEY
  • MEMBER
  • 22 POSTS
The fuel pump connector piece goes to 4 wires the orange wire from the connector went to the grey wire, I think. I'll get a picture or the connector tomorrow.
Was this
answer
helpful?
Yes
No
+1
Tuesday, March 26th, 2024 AT 11:51 PM
Tiny
TYMONEY
  • MEMBER
  • 22 POSTS
Hey Joe good afternoon. This was the fuel pump connector piece that was on there I replaced it the same way and I think that's the issue.
Was this
answer
helpful?
Yes
No
+1
Wednesday, March 27th, 2024 AT 10:09 AM
Tiny
JACOBANDNICKOLAS
  • MECHANIC
  • 110,194 POSTS
Hi,

That isn't even the right connector. It should be square, so someone was certainly into it. Is the connector in the fuel pump itself work with this connector?

You indicated the orange wire was tied into the gray. Here is my dilemma. I'm not sure what the person did or set things up. I have factory information, but this isn't a factory connector. I attached a pic below of the connector.

Let me know.

Joe

See pic below.
Was this
answer
helpful?
Yes
No
+2
Wednesday, March 27th, 2024 AT 6:20 PM
Tiny
TYMONEY
  • MEMBER
  • 22 POSTS
It's the same one that came with the fuel pump maybe a color or 2 different it has connectors. Here's a picture.
Was this
answer
helpful?
Yes
No
+1
Wednesday, March 27th, 2024 AT 6:26 PM

Please login or register to post a reply.