Can I add fog lights to my vehicle?

Tiny
IMAGING
  • MEMBER
  • 2005 TOYOTA SIENNA
  • 3.3L
  • V6
  • 4WD
  • AUTOMATIC
  • 120,000 MILES
If so how do I do it? I see the pull out panels in by the front bumper area.
Sunday, June 6th, 2021 AT 5:50 AM

12 Replies

Tiny
DANNY L
  • MECHANIC
  • 5,648 POSTS
Hello, I'm Danny.

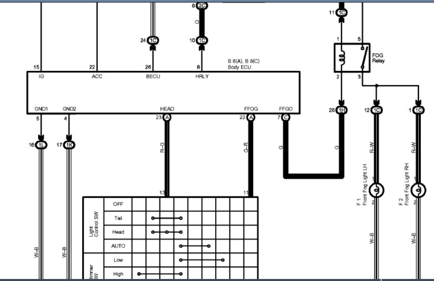
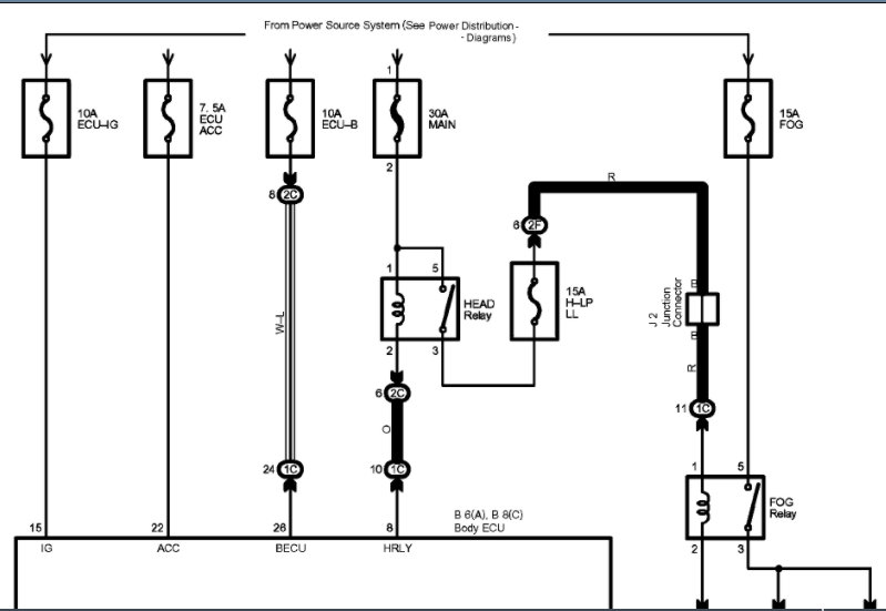
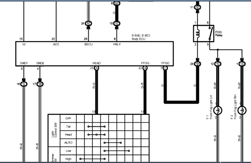
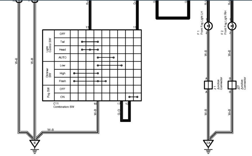
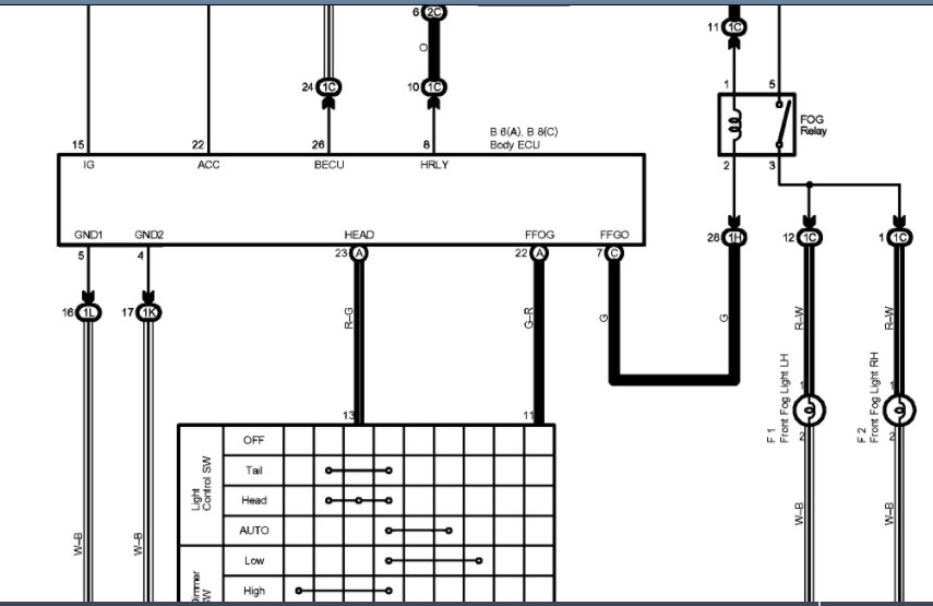
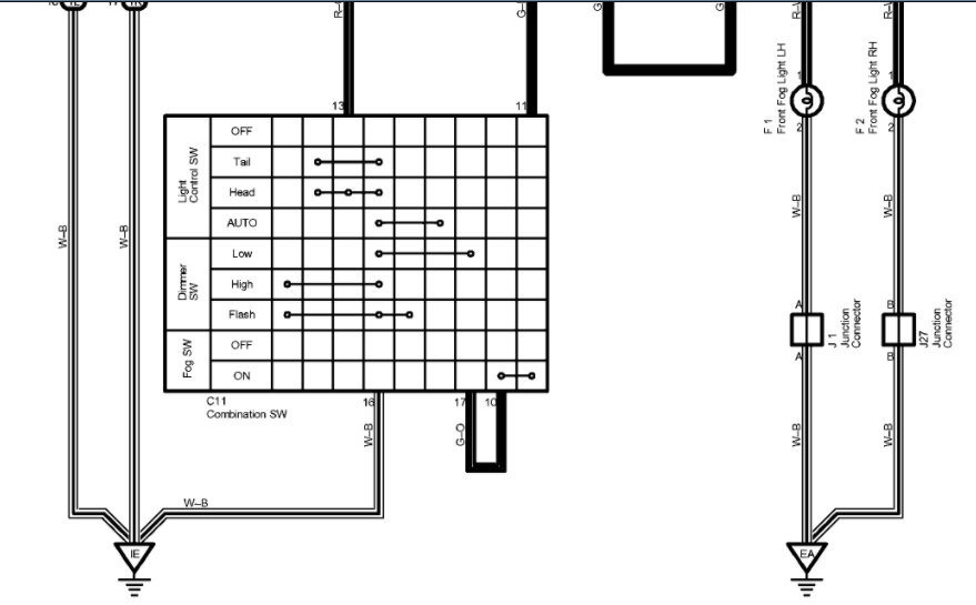
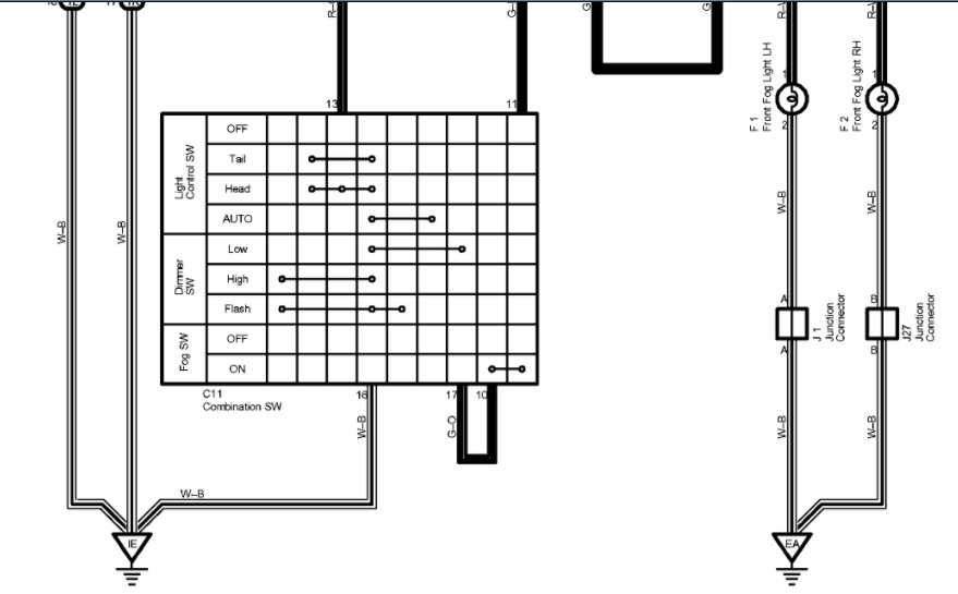
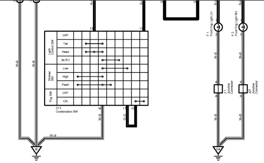
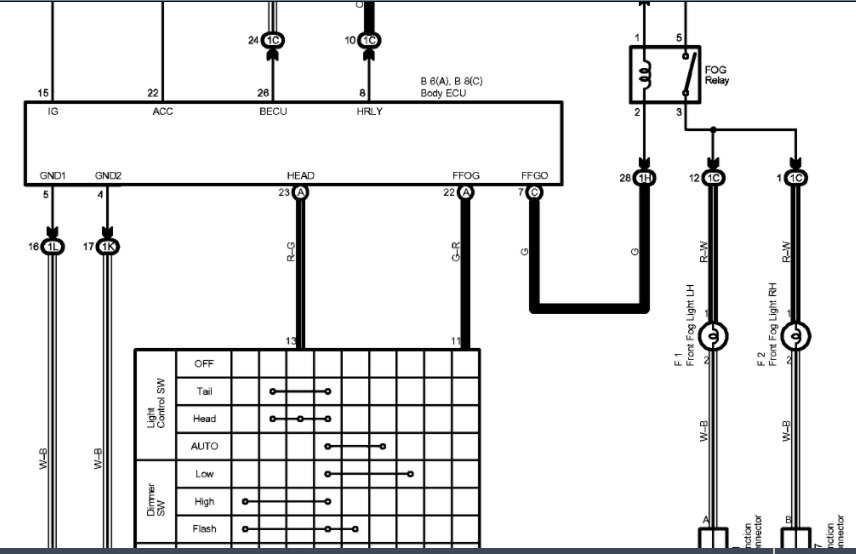
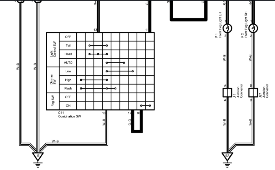
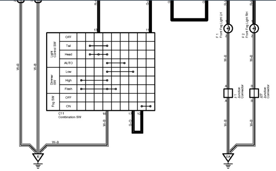
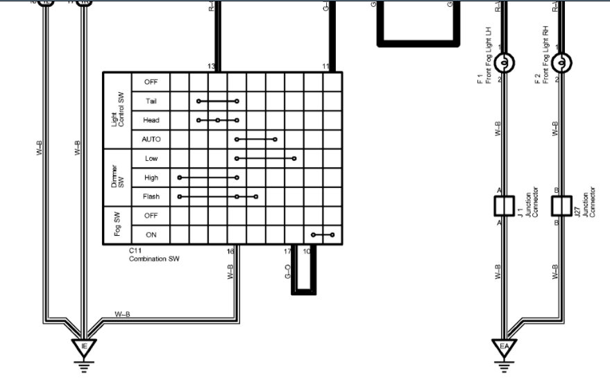
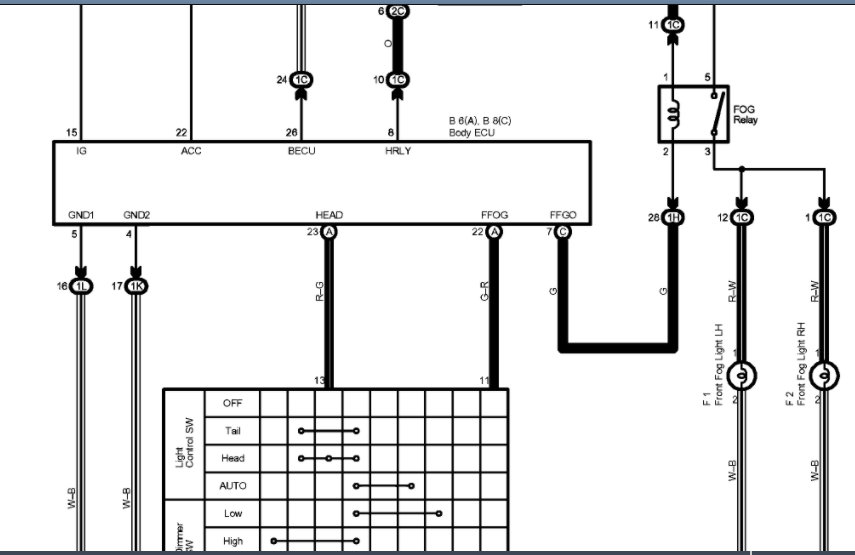
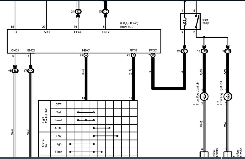
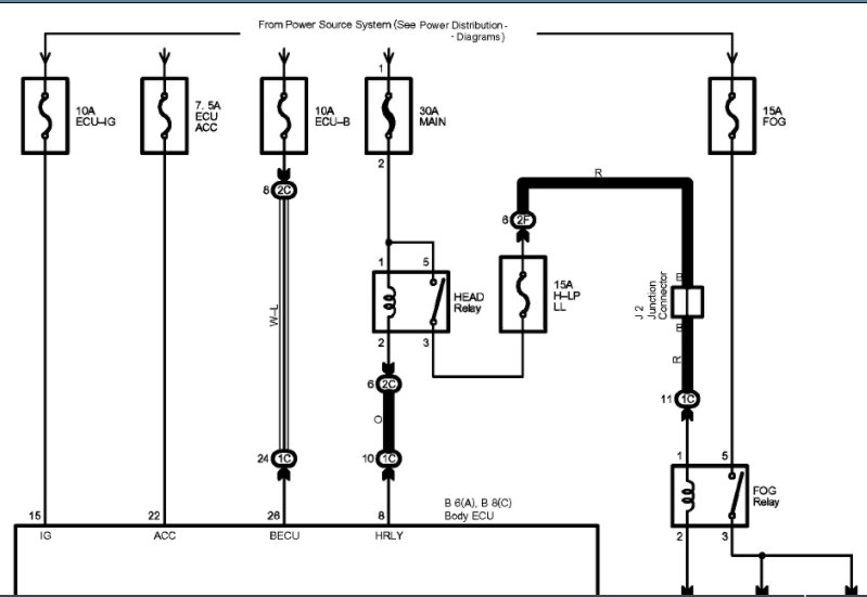
Yes, it's fairly simple. You need to purchase the factory fog light assemblies and then it's simply plug and play. After removing the cover panels the mounting holes and factory wiring connectors are there. I've attached the mounting procedure and fog light wiring harness for a reference. I've cut the wiring diagram into 3 pieces so you can view larger. Let us know if you have any further questions on this issue. I've also attached a picture of the factory Toyota fog light part numbers. Hope this helps and thanks for using 2CarPros.
Was this
answer
helpful?
Yes
No
Sunday, June 6th, 2021 AT 7:51 AM
Tiny
IMAGING
  • MEMBER
  • 151 POSTS
So the wiring is there, all I need to do is just buy the fog lamp assembly and just plug and play. No running wires, splicing and finding grounds and power and running cables through the firewall underneath the hood.
Was this
answer
helpful?
Yes
No
+1
Sunday, June 6th, 2021 AT 3:32 PM
Tiny
DANNY L
  • MECHANIC
  • 5,648 POSTS
Hello again.

Yes. That is correct. It is plug and play. The wiring harness is there from the factory. You just need to purchase the fog light assemblies. Let us know if you have any further questions on this issue. Hope this helps and thanks again for using 2CarPros.

Danny-
Was this
answer
helpful?
Yes
No
+1
Sunday, June 6th, 2021 AT 5:37 PM
Tiny
IMAGING
  • MEMBER
  • 151 POSTS
How do I look up the light assemblies? Will this do?
Was this
answer
helpful?
Yes
No
Monday, June 7th, 2021 AT 5:29 AM
Tiny
DANNY L
  • MECHANIC
  • 5,648 POSTS
Hello again.

Yes. Those will work. Remove factory cover. Install fog light. Plug factory harness to bulb. Done. Hope this helps and thanks again for using 2CarPros.

Danny-
Was this
answer
helpful?
Yes
No
Monday, June 7th, 2021 AT 5:54 AM
Tiny
DANNY L
  • MECHANIC
  • 5,648 POSTS
Hello again.

I've attached pictures below of the fog lamp wiring diagram for you to view as to what to look for adding fog lamps to your vehicle. I've cut the picture into 3 pieces so you can view larger. Hope this helps and thanks again for using 2CarPros.

Danny-
Was this
answer
helpful?
Yes
No
Friday, June 11th, 2021 AT 10:33 AM
Tiny
IMAGING
  • MEMBER
  • 151 POSTS
I purchased fog light assemblies with bulbs. Connected the harness that was hanging to the assembly and no lights. There is no fog lamp light button or function inside vehicle by steering wheel. Am I supposed to install a button or something to make the fog lights work?
Was this
answer
helpful?
Yes
No
Monday, June 21st, 2021 AT 12:06 PM
Tiny
IMAGING
  • MEMBER
  • 151 POSTS
My fog lamps don't go on. Toyota told me that my vehicle model did not come with a separate fog lamp switch. When you turn on the low beams, the fog lamps will go on automatically but they don't. What am I doing wrong?
Was this
answer
helpful?
Yes
No
Wednesday, June 23rd, 2021 AT 12:22 PM
Tiny
DANNY L
  • MECHANIC
  • 5,648 POSTS
Hello again.

Sorry to hear this. If your vehicle did not come with the factory harness and a fog lamp switch it will need to be wired to make work. Do you want them to turn on when the low beams come on or do you want to install a switch and have them come on independently? I can help you to wire this either way. Let us know and we'll go from there. Hope this helps and thanks again for using 2CarPros.
Was this
answer
helpful?
Yes
No
+1
Wednesday, June 23rd, 2021 AT 10:01 PM
Tiny
IMAGING
  • MEMBER
  • 151 POSTS
There is a harness for the fog lamps. I found it behind the fog lamp compartment. I connect it to the fog lamp assembly but the lamps don't go on. I just need to know where this harness is going. Is it connected to the low beam headlamp power line? I would like to have a switch to turn on and off the fog lamps but I don't want to add a harness if there is one there already. Less labor and time.
Was this
answer
helpful?
Yes
No
Thursday, June 24th, 2021 AT 4:50 AM
Tiny
STEVE W.
  • MECHANIC
  • 15,680 POSTS
That harness is controlled by the body module and that has to be programmed to enable the fog light circuit to operate. As your vehicle didn't have fog lights it was never activated.
The fog light switch is part of the multifunction switch assembly and also is required for the lights to work along with the fog lamp relay.

Now if you still wanted to use the factory wiring and control of the fog lights with the low beam lights turning it on you could add a switch to the wire that comes off of terminal 2 of the fog lamp relay. If that switch was wired so it provides a ground when on and opens when off the relay will turn on when grounded and you have fog lights with low beams. That is what the OE switch does, it tells the BCM to ground the fog light output and turn the lights on.
Was this
answer
helpful?
Yes
No
Thursday, June 24th, 2021 AT 11:54 PM
Tiny
DANNY L
  • MECHANIC
  • 5,648 POSTS
Hello again.

The Toyota diagram show the fog lamps run into the fog lamp relay and then into the headlamp relay. It's controlled by the Body Control Module. Diagram is attached below. The factory multi-switch is what controlled it from the factory but in conjunction with the headlamps but with a different switch you can turn then on and off independently of the headlamps. I will look into this wiring more and find what additions and switch is needed. Thanks again for using 2CarPros

Danny-
Was this
answer
helpful?
Yes
No
+1
Thursday, June 24th, 2021 AT 11:56 PM

Please login or register to post a reply.