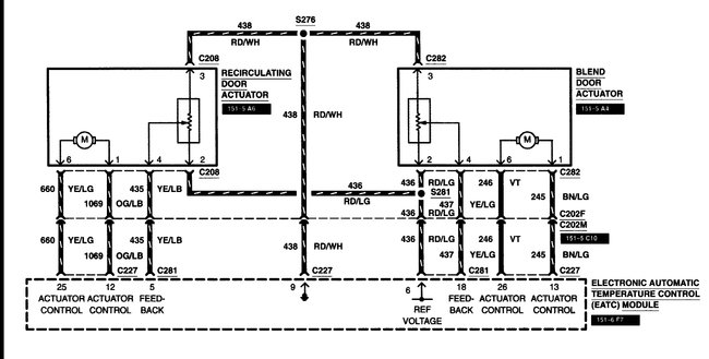
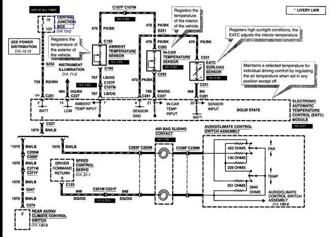
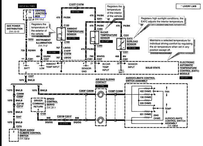
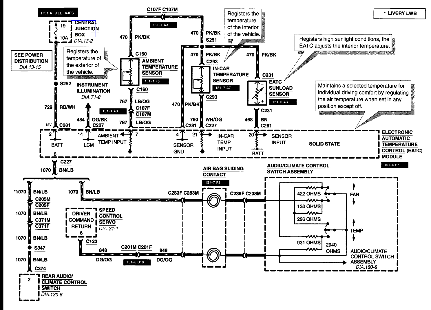
Is there a way to test the EATC before just replacing it? The unit will not do anything, nothing lights up and no display so self test is not an option, though I have tried. Disconnecting the battery for an hour did nothing (for the EATC) either. I have checked all the fuses can find and replaced several that were blown, again with no change to the EATC. I have searched everywhere I can think of to find a power relay or the like but not finding anything. The car is a daily driver for a family member who lives about fifty miles away so access is limited and I really need to have all the information I can get before jumping into this.
Right now it is running with the AC compressor bypassed and the idler pulley relocated, turned around, pulley swapped with tension-er pulley, etc, to get it to work as there is no option for a belt to run without out the AC compressor without some modifications.
Naturally this will be reversed once I replace the compressor but at this time the heat is not operating either since the EATC is not comming on to do that.
Thanks for any and all help I can get!
I searched everywhere I can think of to find the answer before asking, not sure I am asking the question correctly to get an answer to show up though.
Thursday, December 7th, 2017 AT 7:46 AM









