Driver window only goes down will not go up

Tiny
JORGE SAMITIER
  • MEMBER
  • 2001 HONDA CRV
  • 2.0L
  • 4 CYL
  • 2WD
  • AUTOMATIC
  • 180,000 MILES
The driver windows went down and it wont go up, I replaced the regulator with the motor, the master switch assembly and switches and it still wont make the glass go up, I was able to get it up manually, it will go down but wont go up. Any sugestions? Thank you
Friday, July 23rd, 2021 AT 9:44 PM

2 Replies

Tiny
CARADIODOC
  • MECHANIC
  • 34,465 POSTS
There's two things that come to mind. First, by far the best suspect was the driver's switch assembly. That has been eliminated if you installed a new switch. If this was a used one from a salvage yard, it's still a good suspect.

The second thing that can cause this is excessive bug juice in the rubber guides the glass slides in. Most windows take a lot more effort to go up than to go down. Dirt and road tar in the rubber channels makes it take still more power to go up. A potential clue to this is if you watch the dome light with the engine off, you'll see it dim slightly when you press the "UP" switch. The dimming is caused by the excessive current a stalled motor draws. That also proves the circuit is drawing current, and therefore is trying to work. A second clue is the window will go up if you help it. To solve this, spray some Silicone Spray Lube in the channels. That goes on like water. When it evaporates, it leaves a film of "slippery" behind. Avoid as much as possible getting that on painted body panels. If they have to be repainted in the near future, it causes "fish eyes" in the new paint. Professionals have to work real hard to clean silicone off.

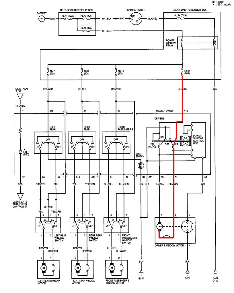
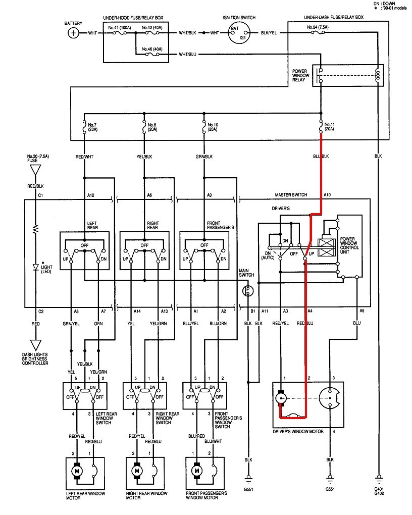
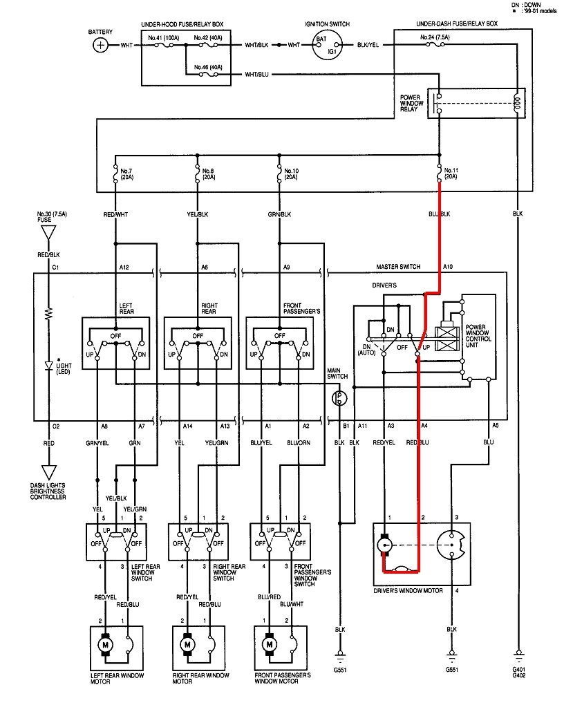
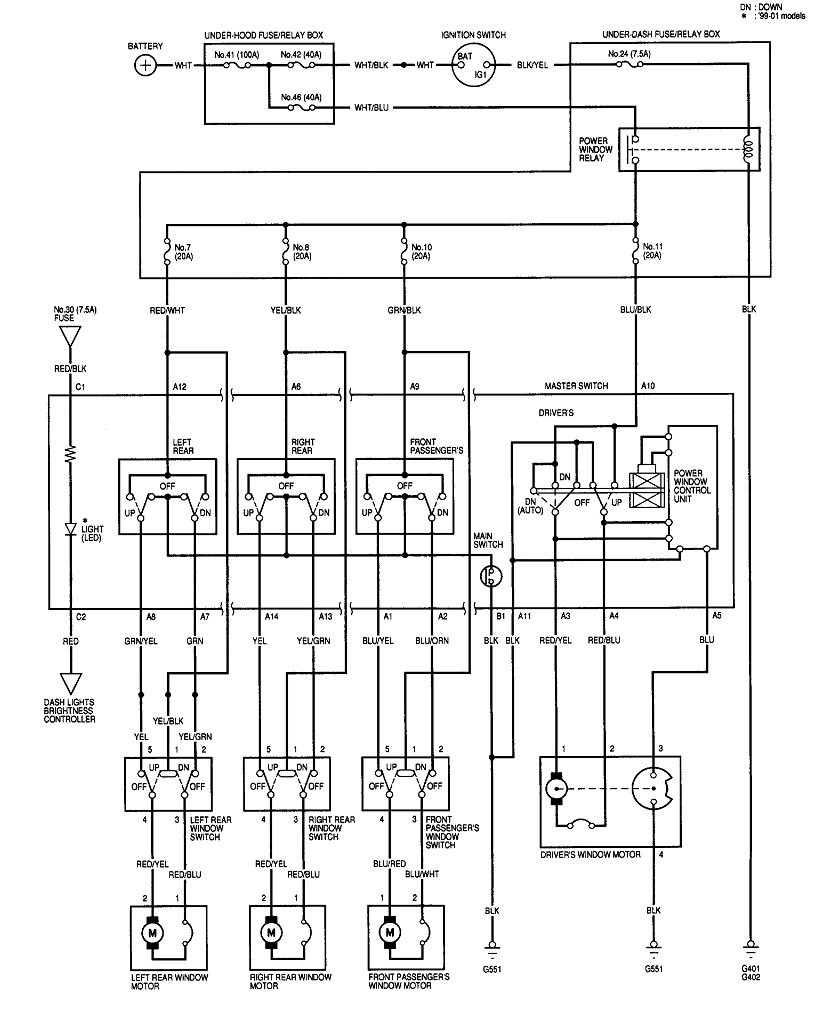
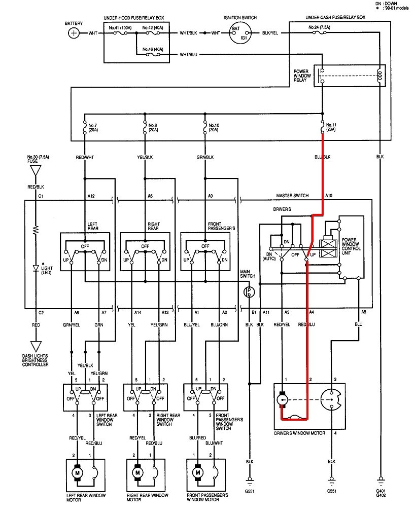
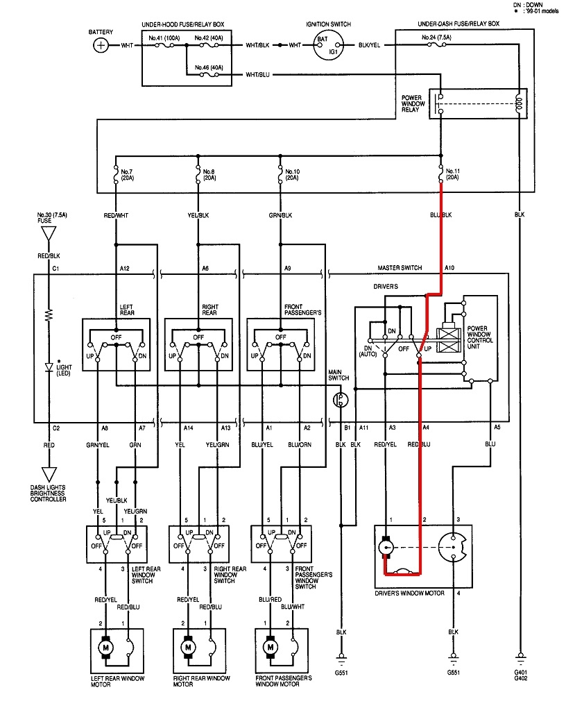
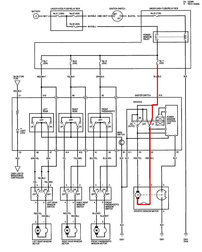
The motor is not suspect. It has to be okay if it runs one way. The same is true of most of the wiring. It is shared in both directions. What is not shared is part of the "Down" switch. Half of it remains grounded when you press the "Up" switch to provide the ground for the motor. The test for this involves taking voltage readings on the two wires at the motor. With all the switches released, you will find 0.0 volts on both wires. I highlighted the "Up" circuit in the second diagram, with the red line. When you press the "Up switch, you should find 12 volts on the red / blue wire. Of equal importance, you must find very close to 0 volts on the red / yellow wire. If you find anything other than 0 volts, there has to be a break in that ground circuit. We know it can't be in the wires because they're used for the "Down" function too. The only part of that circuit that's left is the released half of the "Down" switch. Let me know what you find with these voltages.

Here's an article on using a voltmeter, if you need it:

https://www.2carpros.com/articles/how-to-use-a-voltmeter

They show using an auto-ranging meter which is a rather expensive feature. You can find a perfectly fine meter at Harbor Freight Tools for $7.00 without this feature. I can help you set it up if necessary.

You can also do these tests with a test light if you have one. We aren't particularly interested in exact voltages for these tests. We basically need to know whether you have something or nothing on those two wires. If you've never used a test light, take a look at his article:

https://www.2carpros.com/articles/how-to-use-a-test-light-circuit-tester
Was this
answer
helpful?
Yes
No
Friday, July 23rd, 2021 AT 11:58 PM
Tiny
JORGE SAMITIER
  • MEMBER
  • 3 POSTS
Thank you very much. I will try and let you know.
Was this
answer
helpful?
Yes
No
Saturday, July 24th, 2021 AT 8:08 AM

Please login or register to post a reply.