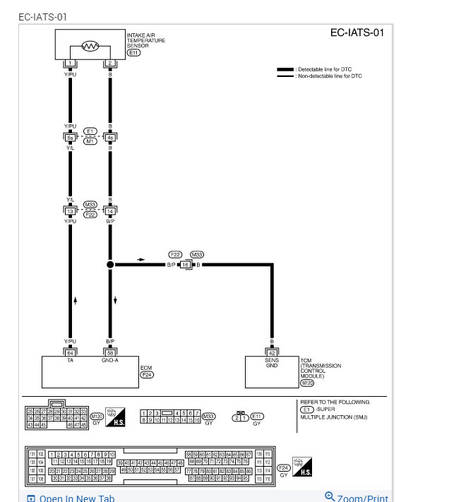
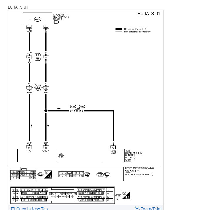
Codes p051 and p113

Tiny
SCOTT BEMIS
  • MEMBER
  • 2002 INFINITI QX60 HYBRID
  • 3.5L
  • 6 CYL
  • 4WD
  • AUTOMATIC
  • 200,000 MILES
I got p051 and p113 high-curant codes. I replaced MAFsensor still same codes runs badly. Any ideas?
Sunday, May 15th, 2022 AT 12:39 PM

1 Reply

Tiny
KASEKENNY
  • MECHANIC
  • 18,907 POSTS
We need to start with clarifying the codes that you are getting. I suspect you missed a zero in there as they should be P0113 and P0051?

If this is the case then we have specific testing that we need to run through.

Basically, the cause of these is most likely not the same thing but we need to start with running through these guides and then the testing below to help figure out what is happening:

https://www.2carpros.com/articles/how-to-check-wiring

https://www.2carpros.com/articles/how-to-use-a-voltmeter

If you have different codes, can you get a picture of the scan tool screen so that we can try and get on the same page?

Thanks
Was this
answer
helpful?
Yes
No
Monday, May 16th, 2022 AT 12:09 PM

Please login or register to post a reply.