Turn signal fuse

Tiny
SINGING CHEF
  • MEMBER
  • 1999 DODGE CARAVAN
  • 6 CYL
  • FWD
  • AUTOMATIC
  • 130,150 MILES
The turn signals do not have power. When you engage the switch they do not light up. Could it be the fuse? If it is where is it? Thanks
Tuesday, December 30th, 2008 AT 2:53 PM

8 Replies

Tiny
JACOBANDNICKOLAS
  • MECHANIC
  • 110,194 POSTS
Hi:
Yes it could be the fuse. I believe the fuse panel is under the dash on the passenger side. There should be a schematic in the owner's manual. Let me know what you find or if you have other questions.

Joe
Was this
answer
helpful?
Yes
No
+1
Thursday, January 1st, 2009 AT 1:26 PM
Tiny
DON TREVIñO
  • MEMBER
  • 1 POST
My question emphatically asks which of the fuses in fuse box is the actual fuse controlling the turn signals! Answer is not in manual. I am not asking location of fuse box!
Was this
answer
helpful?
Yes
No
+2
Sunday, August 26th, 2018 AT 9:54 AM
Tiny
KEN L
  • MASTER CERTIFIED MECHANIC
  • 55,450 POSTS
Hello,

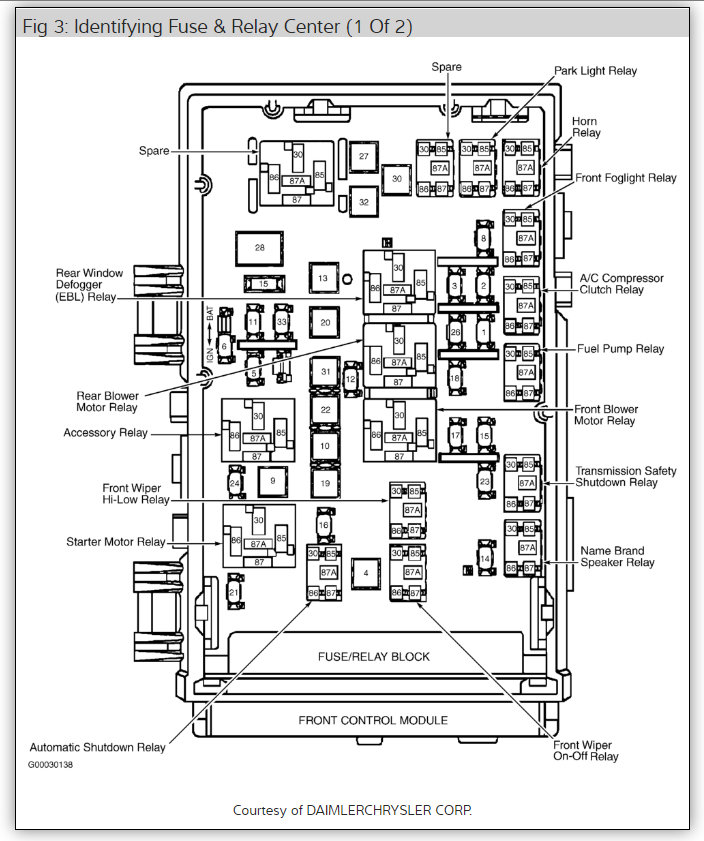
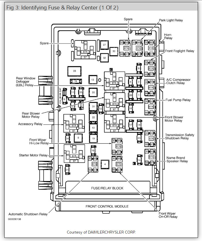
The fuses that run the system are #5, 3, 10 and 13. Here is a guide to help you see how to test the fuse and the wiring diagrams so you can see how the system works along with the fuse locations below:

https://www.2carpros.com/articles/how-to-check-a-car-fuse

Check out the diagrams (below). Please let us know what happens.

Cheers, Ken
Was this
answer
helpful?
Yes
No
+2
Sunday, August 26th, 2018 AT 12:06 PM
Tiny
MANAPC3
  • MEMBER
  • 1 POST
  • 1996 DODGE CARAVAN
  • 4 CYL
  • 2WD
  • AUTOMATIC
  • 88,000 MILES
The turn signals are not working on my van. I believe the problem is a blown fuse, but cannot find in the manual which fuse would be the right one to replace or whether it is a relay or something else. Can you advise which fuse/relay to replace and the right amperage for it? Location of where/which fuse In fuse box controlling turn signals is located. No information in manual. Thank you very much.
Was this
answer
helpful?
Yes
No
+4
Tuesday, October 29th, 2019 AT 5:05 PM (Merged)
Tiny
KEN L
  • MASTER CERTIFIED MECHANIC
  • 55,450 POSTS
Hello,

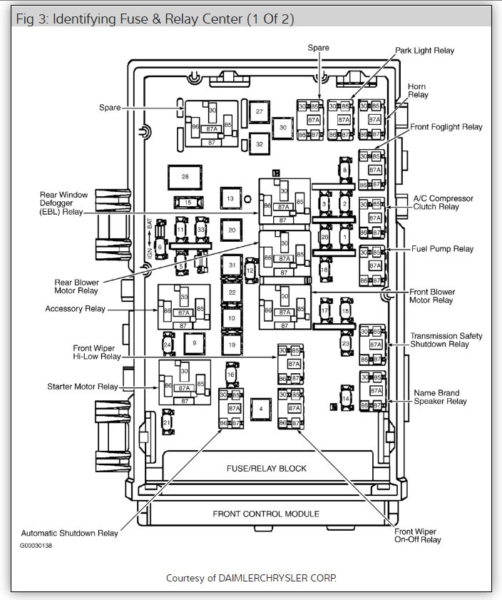
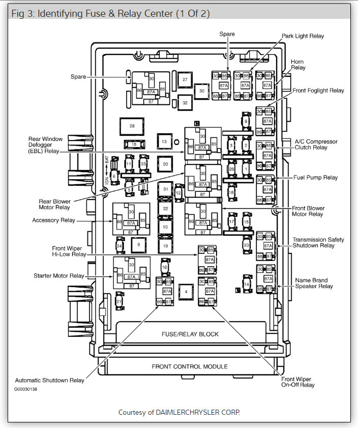
There are four fuses that run the system #15 16,4 and 5. Here is a wiring diagram of the blinkers so you can see how the system works and a guide to help you check them with the location of the fuses:

https://www.2carpros.com/articles/how-to-check-a-car-fuse

Check out the diagrams (below). Let us know what happens and please upload pictures or videos of the problem.

Cheers, Ken
Was this
answer
helpful?
Yes
No
Tuesday, October 29th, 2019 AT 5:05 PM (Merged)
Tiny
CVCALHOUN
  • MEMBER
  • 2 POSTS
  • 1996 DODGE CARAVAN
At the moment, I've got two, probably related, issues on the 1996 Grand Caravan. First, when I turn on the left signal, both the left and right signals go on. (When I turn on the right turn signal, only the right one goes on; this is only a left signal problem.)

Second, the "ding" that is supposed to happen if you leave your turn signal on too long now happens if you leave the headlights on for more than a few minutes. If you turn the headlights off, the ding stops--but then resumes a few minutes after you turn them on again.

We've tried changing all the bulbs, and the fuses, and it's not helping.
Was this
answer
helpful?
Yes
No
Tuesday, October 29th, 2019 AT 5:05 PM (Merged)
Tiny
2CARPRO JACK
  • MECHANIC
  • 11,533 POSTS
Check all grounds for the left side lights first.
Was this
answer
helpful?
Yes
No
+1
Tuesday, October 29th, 2019 AT 5:05 PM (Merged)
Tiny
CVCALHOUN
  • MEMBER
  • 2 POSTS
Any thoughts on how we'd do that? Is there a wiring diagram somewhere that would tell us where the grounds should be?
Was this
answer
helpful?
Yes
No
+1
Tuesday, October 29th, 2019 AT 5:05 PM (Merged)

Please login or register to post a reply.