Fuse panel?

Tiny
BCARLEE
  • MEMBER
  • 1999 DODGE CARAVAN
  • 6 CYL
  • 2WD
  • AUTOMATIC
  • 100,000 MILES
Fuses (2) keep blowing. A/C and dash gages stop working - these 2 fuses are located under column inside of vehicle. Do not have owners manual to trace electrical connections related to fuse(s). Changed fuses from a 15A to 20A but fuses blow instantly. Fuse box does not even reference A/C but it stops once fuses blow. Pls advise item(s) to check for shortages are advise where I might find a "fuse chart" to trace wiring. Thanks, Bill
Sunday, April 27th, 2008 AT 11:33 PM

14 Replies

Tiny
BMRFIXIT
  • MECHANIC
  • 19,053 POSTS
You may want to disconnect ac and check check the area out for short to ground. Here are the fuse box location and identifications with a guide to help you check the fuses.

https://www.2carpros.com/articles/how-to-check-a-car-fuse

Check out the diagrams (Below). Please let us know what happens.

Was this
answer
helpful?
Yes
No
-2
Monday, April 28th, 2008 AT 6:01 AM
Tiny
JAMED THOMAS SMITH
  • MEMBER
  • 1 POST
  • 1999 DODGE CARAVAN
  • 3.8L
  • 6 CYL
  • 2WD
  • AUTOMATIC
  • 30,000 MILES
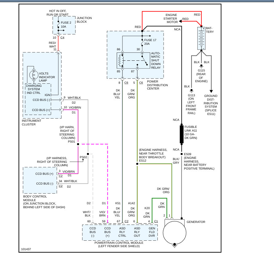
Van listed above is the SE model. From the fuse box a Fusible link to alternator 9 gage. Would like a picture and where to get one.
Was this
answer
helpful?
Yes
No
+1
Monday, September 21st, 2020 AT 10:40 AM (Merged)
Tiny
SCGRANTURISMO
  • MECHANIC
  • 4,897 POSTS
Hello,

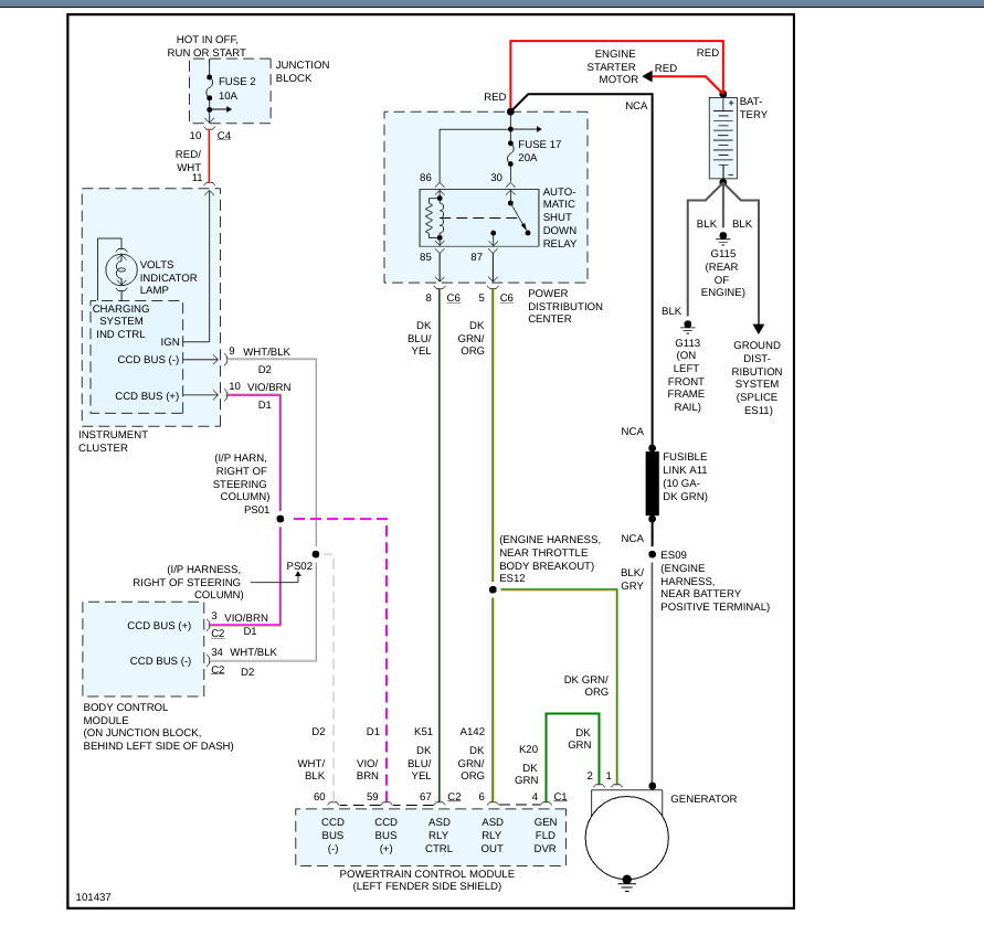
Unfortunately our reference materials do not have a picture of fusible link A11[10 GA0, but you should be able to pick one up at your local auto parts store or the dealership. If not Ebay or Amazon should have them for a reasonable price on their web sites. In the diagrams down below I have included a wiring diagram of your vehicle's charging circuit for reference. I hope that this helps. Please let us know how everything turns out.

Thanks,
Alex
2CarPros
Was this
answer
helpful?
Yes
No
Monday, September 21st, 2020 AT 10:40 AM (Merged)
Tiny
HOWIEB
  • MEMBER
  • 1 POST
  • 1997 DODGE CARAVAN
  • 2.3L
  • 6 CYL
  • 2WD
  • AUTOMATIC
  • 188,000 MILES
No hazard left side, no turn signal left side, no brake left side, taillights okay, markers okay.
Was this
answer
helpful?
Yes
No
-1
Monday, September 21st, 2020 AT 10:43 AM (Merged)
Tiny
PATENTED_REPAIR_PRO
  • MECHANIC
  • 1,853 POSTS
FYI, there is no 2.3, I think you mean 2.4.
Anyhow, a fuse panel diagram is not going to do you much good, cause the fuse feeds both the right and left sides.
For instance for the stoplamps, there is a single white/tan wire coming off the stoplamp switch that powers both rear stoplamps, but it does have a splice in that wire right at the floor pan harness, near the split for the taillamps.
You should be testing for voltage right at that splice while the engine is off, key on run, and brake pedal pressed down or place a stick on the brake pedal and seat cushion then adjust the seat forward to keep the brake pedal down.
One second and I will see if I can find a diagram of that splice BS01 splice.
Plus I will comment on the left turn, left hazard.
Sorry, No diagram on that BS01 splice.
As for the left hazard, that wire comes from a combination flasher if this vehicle was sold in the usa or a drl module if Canada, both are located in the junction block which is at left front of dash under the instrument panel. It is a dark green/red wire coming out of pin 12 connector 2 that you need to test with key on run, engine off and left turn signal on.
Then that brings me to the left turn signal light. That uses the very same wire.
Was this
answer
helpful?
Yes
No
Monday, September 21st, 2020 AT 10:43 AM (Merged)
Tiny
SCURRAN5
  • MEMBER
  • 1 POST
  • 1996 DODGE CARAVAN
  • 6 CYL
  • FWD
  • AUTOMATIC
  • 160,000 MILES
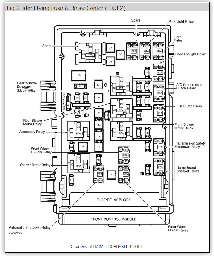
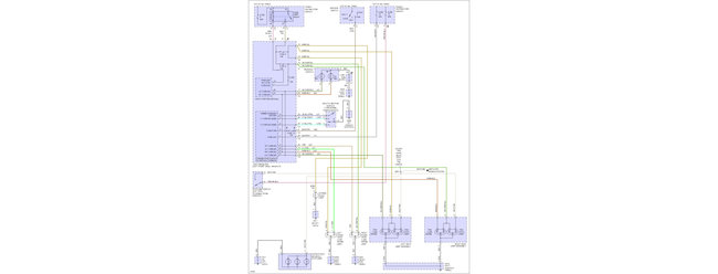
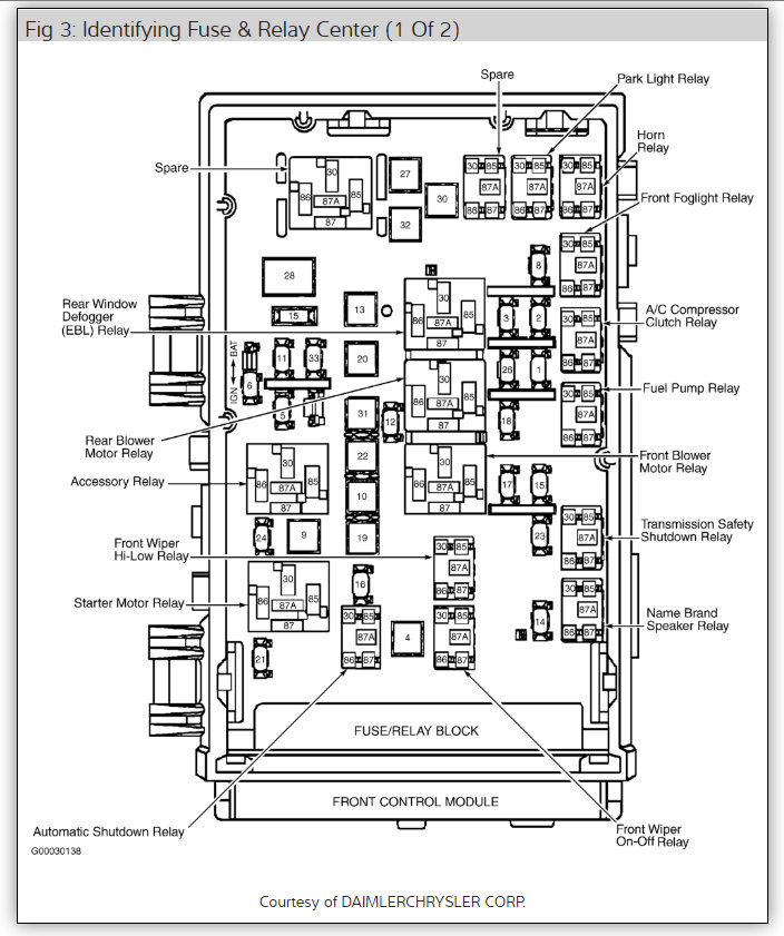
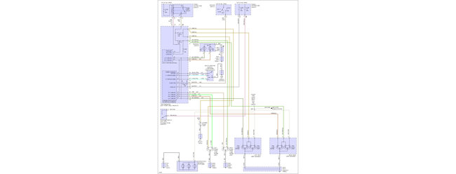
Trying to find the layout of the relay junction box. See which fuse, relay is which.
Was this
answer
helpful?
Yes
No
Monday, September 21st, 2020 AT 10:43 AM (Merged)
Tiny
KHLOW2008
  • MECHANIC
  • 41,814 POSTS
Here you are.

FUSE & CIRCUIT BREAKER I.D. (PASSENGER COMPARTMENT)
1 - 10 Amp (Red)
Panel Illumination.

2 - 10 Amp (Red)
Guage, Right High Beam Headlight, High Beam Indicator.

3 - 20 Amp (Yellow)
RR Wiper, Left Headlight High Beam.

4 - 15 Amp (Blue)
RH Park, Back-up Lights Switch & Relay, Speed Porportional Steering Module, Power Door Lock Switch Illumination, Daytime Running Light Module (Canada).

5 - 20 Amp (Yellow)
Power Door Lock Arm/Disarm Switches, Power Mirrors, Vanity, Dome, Map, Ignition and Trunk Lights, Sunroof, Radio, Power Antenna, Data Link Connector, Body Control Module.

6 - 15 Amp (Blue)
Heated Mirrors, Heated Rear Window Indicator.

7 - 20 Amp (Yellow)
Instrument Cluster Illumination, Park & Tail Lights.

8 - 10 Amp (Red)
Power Receptacle (Cigarette Lighter), Radio Amplifier, Horns.

9 - 15 Amp (Blue)
Power Door Lock Motors (Body Control Module).

10 - Not Used
Not Used.

11 - 10 Amp (Red)
Radio.

12 - 10 Amp (Red)
Left Headlight Low Beam.

13 - Spare Fuse
Not Used.

14 - Spare Fuse
Not Used.

15 - Spare Fuse
Not Used.

16 - Spare Fuse
Not Used.

PTC (POSITIVE TEMPERATURE COEFFICIENT) IDENTIFICATION

1 - 9 Amp
Power Distribution Center.

2 - 3 Amp
Left Front Door Lock.

3 - 4 Amp
Liftgate Lock Motor, Left Sliding Rear Door Lock Motor.

4 - 4 Amp
Right Front Door Lock, Right Sliding Rear Door Lock Motor.

5 - 4 Amp
Right Front Door Lock Motor, Left Front Door Lock Motor.

6 - 6 Amp
Liftgate Lock Motor, Left Sliding Rear Door Lock Motor.

7 - 9 Amp
Left Power Window Switch.

8 - 9 Amp
Left Power Window Switch
Right Power Window Switch.

9 - 6 Amp
Front & Rear Washer Motor.

10 - 3 Amp
Power Distribution Center.
Was this
answer
helpful?
Yes
No
+2
Monday, September 21st, 2020 AT 10:43 AM (Merged)
Tiny
1995REPAIR
  • MEMBER
  • 1 POST
  • 1995 DODGE CARAVAN
  • 6 CYL
  • FWD
  • AUTOMATIC
  • 52,000 MILES
I need an exploded diagram of the heating system for the 1995 caravan and also need to know the location of the fuse box for the same nvehicle.
Was this
answer
helpful?
Yes
No
Monday, September 21st, 2020 AT 10:44 AM (Merged)
Tiny
CARADIODOC
  • MECHANIC
  • 34,463 POSTS
What's the symptoms? Stuck on cold is a common problem with an easy fix.

The fuse box is under the hood. It will bite you if you look for it. A second one is under the steering column, just to the left of it. Check out the diagrams (Below). Please let us know what you find.
Was this
answer
helpful?
Yes
No
Monday, September 21st, 2020 AT 10:45 AM (Merged)
Tiny
LUXRODNEY
  • MEMBER
  • 2 POSTS
  • 1991 DODGE CARAVAN
Electrical problem
1991 Dodge Caravan 6 cyl Two Wheel Drive Automatic

I need to know what the four relays are on the drivers side in front of the shock tower and which is which. The first one (front of vehicle) is my main concern. When it is plugged in the blows a fusible link.
Was this
answer
helpful?
Yes
No
Monday, September 21st, 2020 AT 10:45 AM (Merged)
Tiny
SERVICE WRITER
  • MECHANIC
  • 9,123 POSTS


https://www.2carpros.com/forum/automotive_pictures/30961_car_2.jpg

Was this
answer
helpful?
Yes
No
+4
Monday, September 21st, 2020 AT 10:45 AM (Merged)
Tiny
LUXRODNEY
  • MEMBER
  • 2 POSTS
Thanks for the picture but it only shows 3 relays in a row and mine has four.

?

Want me to upload a picture?

Rodney
Was this
answer
helpful?
Yes
No
Monday, September 21st, 2020 AT 10:45 AM (Merged)
Tiny
SERVICE WRITER
  • MECHANIC
  • 9,123 POSTS
Yeah.I know. That was what I have.

You can upload a pic. See if you can find what color wires are coming out of the relay box for that relay, I can back track it that way.

You can also swap 2 like relays to see if the problems moves to another circuit.
Was this
answer
helpful?
Yes
No
Monday, September 21st, 2020 AT 10:45 AM (Merged)
Tiny
KASEKENNY
  • MECHANIC
  • 18,907 POSTS
I am attaching the info from the manual. Getting a picture of your layout would be needed if yours is different. Let us know if you can get the picture and that will help figure this out. Thanks
Was this
answer
helpful?
Yes
No
Monday, September 21st, 2020 AT 3:28 PM

Please login or register to post a reply.