Monday, July 3rd, 2017 AT 7:25 AM
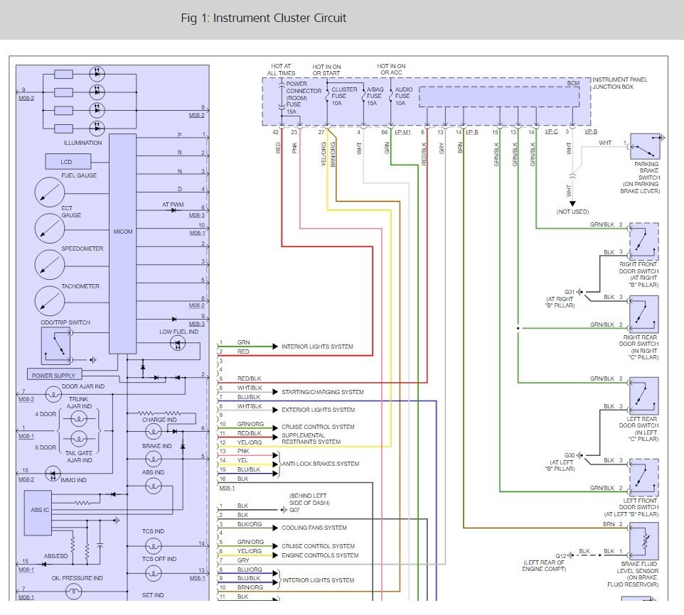
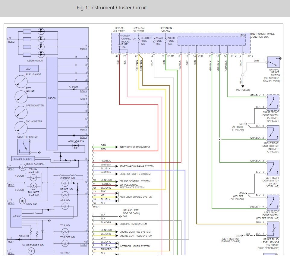
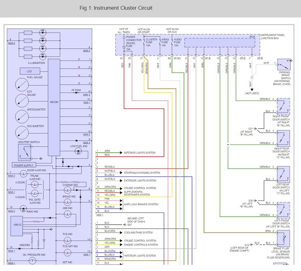
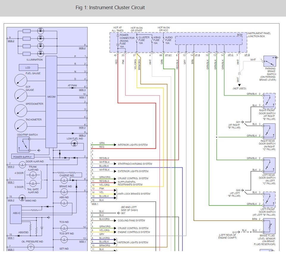
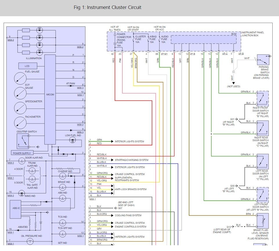
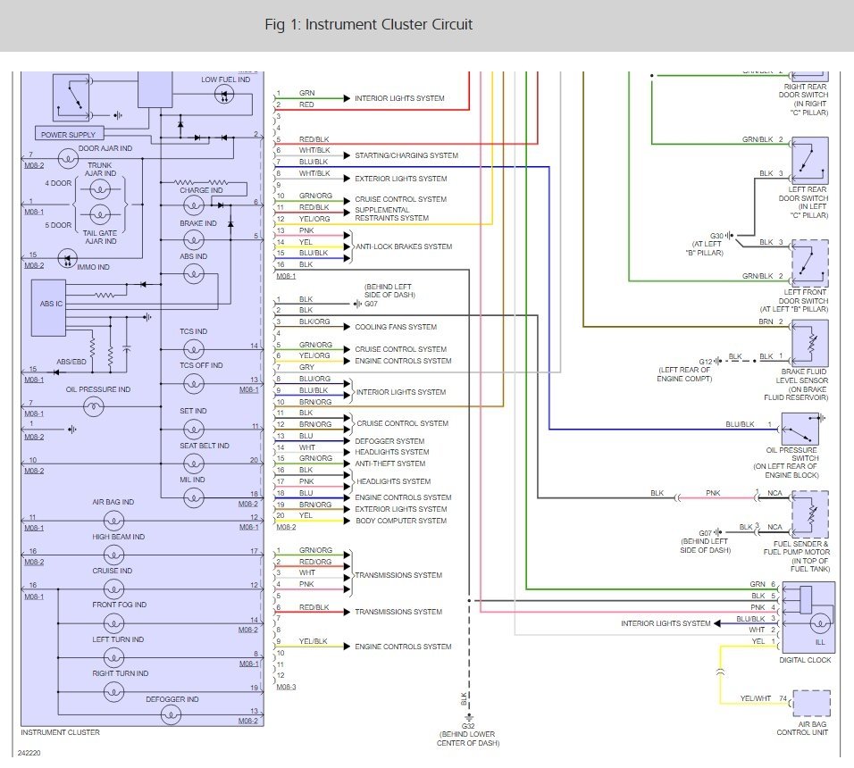
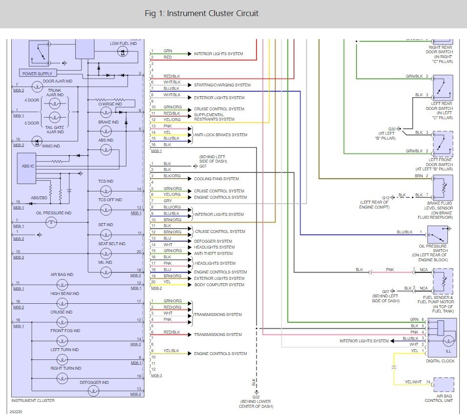
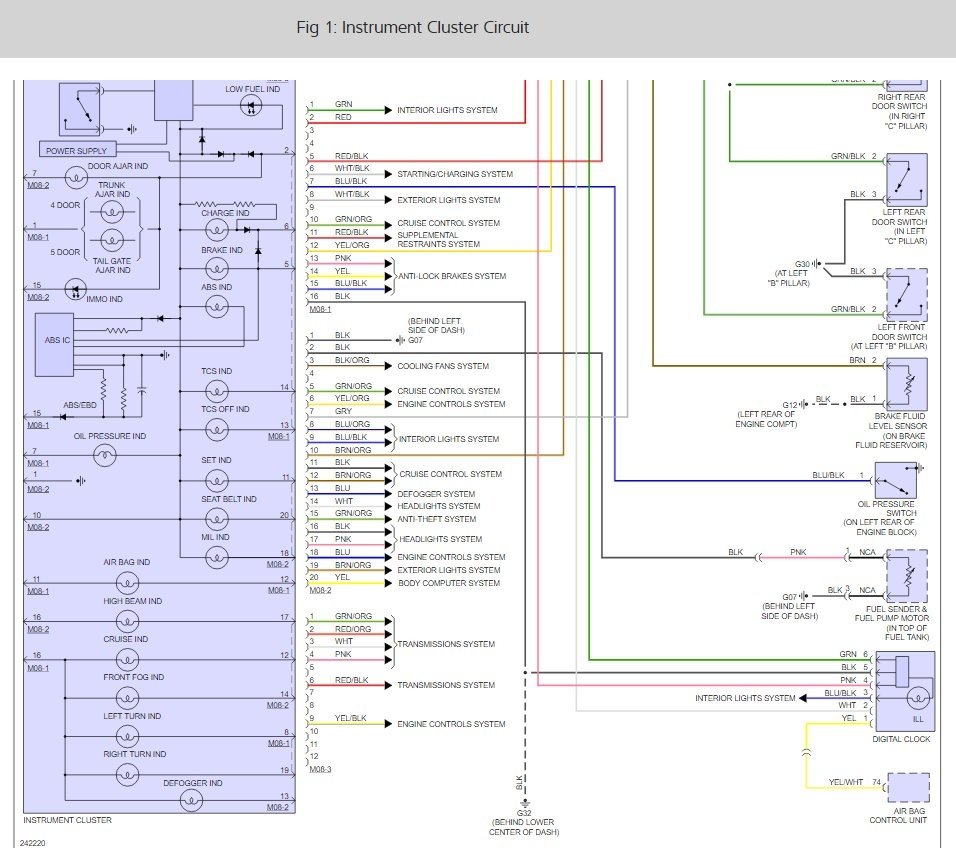
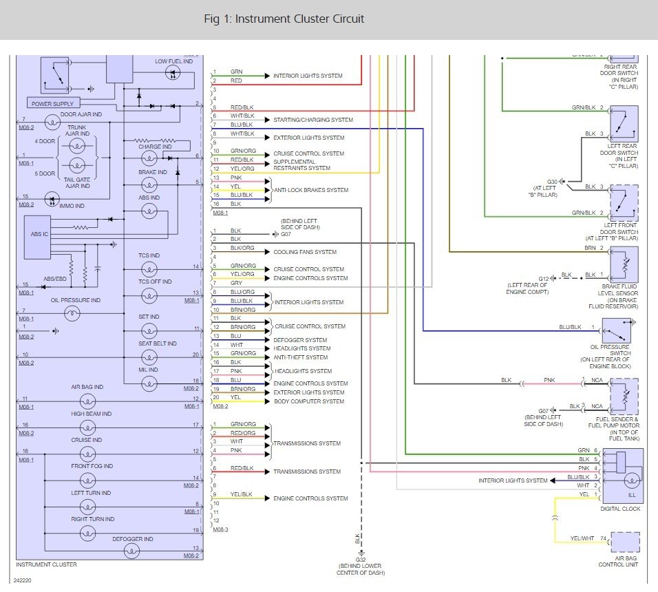
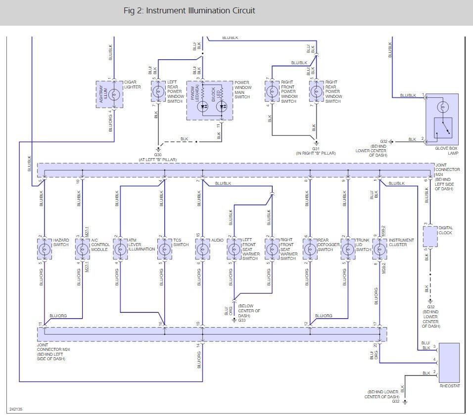
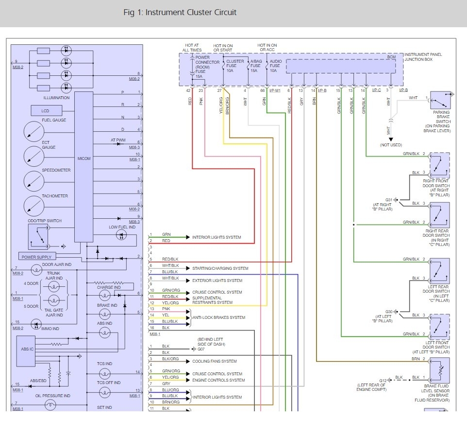
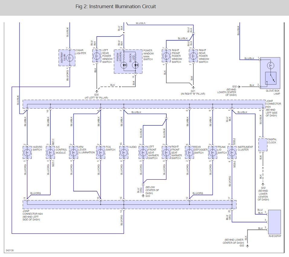
My car has a dash light problem. The odometer dims when the headlights are turned on but the dash lights do not work at all. The heater control knobs dim with the dimmer but the dash lights do not come on at all. All the fuses seem to be good although I do not know which fuse powers the dash lights. Additionally the power mirrors stopped working. I am stumped.





