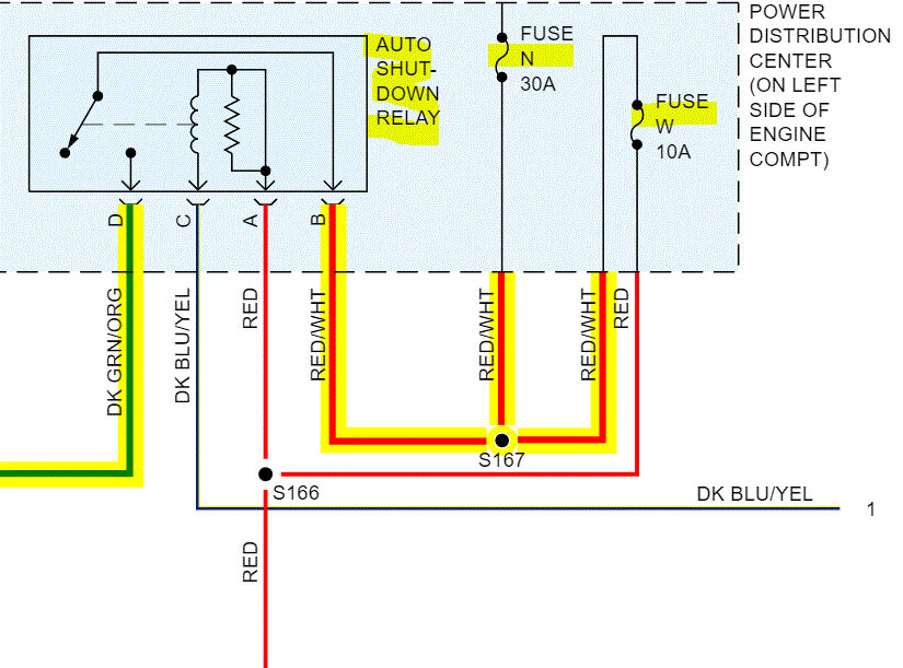
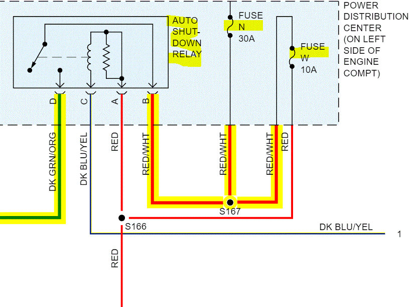
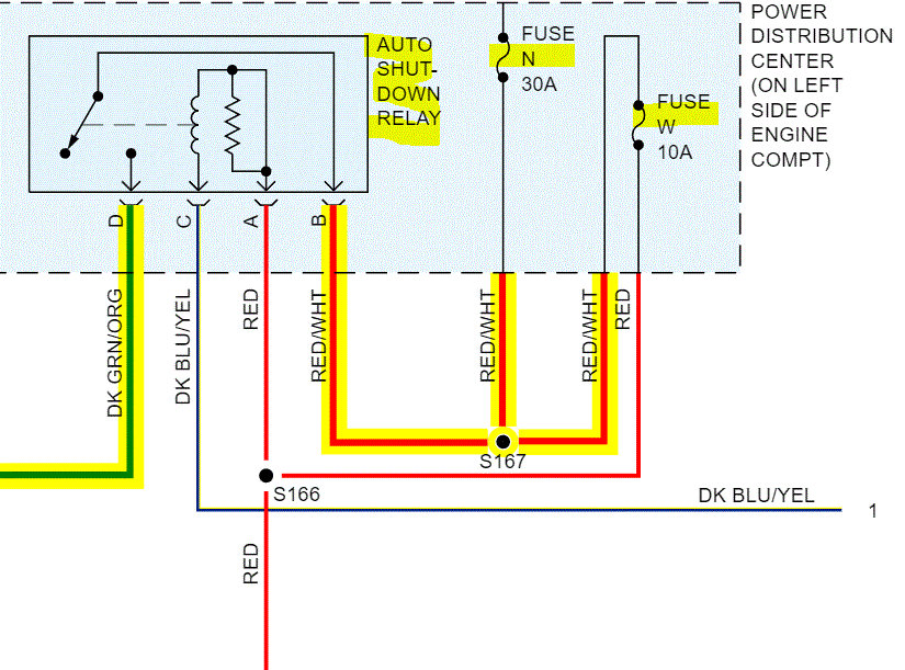
It shut off while driving slow, cranks, but not getting any fire to any coils. I changed the Cam sensor, the crankshaft sensor, and battery. I checked everything with a multimeter and I'm getting voltage everywhere but the coils.
Apr 26, 2022 at 10:05 AM













