Hi jolmo,
Thank you for the donation.
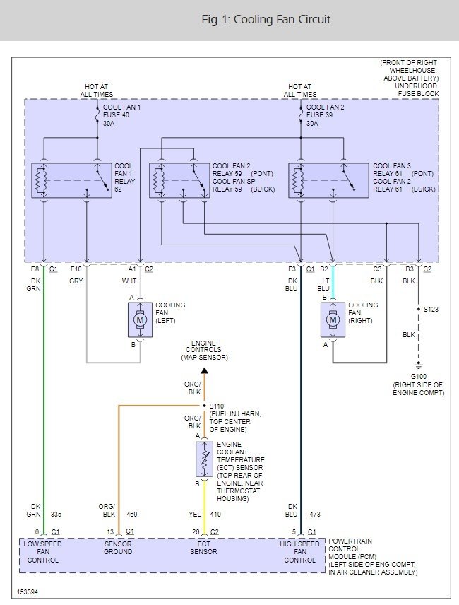
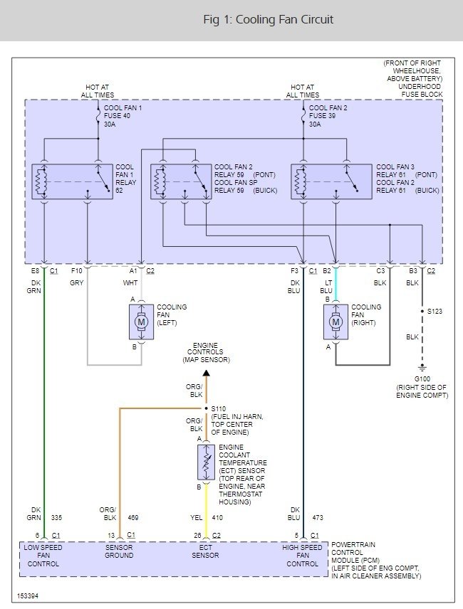
Are the fans operating at low speed conditions?
Have you checked the cooling Fan relay # 2 and # 3?
Thermostat is located behind the housing of the outlet hose.
WATER OUTLET HOUSING REPLACEMENT
1. Remove the air cleaner and duct assembly.
2. Drain the coolant until the coolant level is below the thermostat.
3. Remove the crossover exhaust pipe.
4. Remove the radiator hose from the thermostat housing.
5. Remove the thermostat housing bolts and clean any sealer from the bolt threads.
6. Remove the thermostat housing and gasket.

7. Remove the thermostat.
8. Clean the mating surfaces.
Friday, November 30th, 2018 AT 11:29 AM
(Merged)