Tuesday, July 9th, 2019 AT 7:37 PM
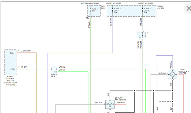
My cooling fan does not work. Prior to me purchasing it the previous owners cut the wires and tried to splice and re-wire them to try to work. I think they forgot which wire went where and left it. I tried to find color codes to fix the problem, but I can't find them. Could you please help me. I'm looking at four wires from the fan motor solid black, solid blue, solid green and solid yellow which then is suppose to connect to another connector to the relay box2 which those four wires are white red, white blue, white green and solid black. Please tell what each wire is and which wire connects to the other so I may fix my issue. Thank you so much for your time and patients. Hope to hear from you soon.


