After changing CPS and ignition module there is still no spark?

Tiny
GETRDONE696984
  • MEMBER
  • 1992 OLDSMOBILE CUTLASS
  • 3.3L
  • V6
  • 2WD
  • AUTOMATIC
  • 201,000 MILES
I changed crank positioning sensor and still no spark.
Tuesday, December 8th, 2020 AT 9:43 PM

1 Reply

Tiny
KASEKENNY
  • MECHANIC
  • 18,907 POSTS
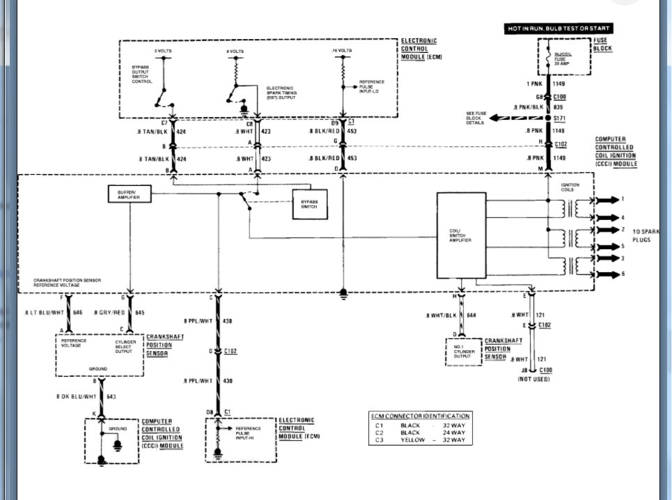
I suspect the issue is the ECM but we can test that by testing voltage at these locations that I circled. I also attached the description of this system and basically the ECM send the signal to the ignition module to fire the plugs. So we need to make sure that the ECM is doing this. I suspect it is not since it appears you replaced everything else.

Let's do this testing and go from there.

Here is a guide that will help with this:

https://www.2carpros.com/articles/how-to-check-wiring

https://www.2carpros.com/articles/how-to-use-a-test-light-circuit-tester

Thanks
Was this
answer
helpful?
Yes
No
Wednesday, December 9th, 2020 AT 5:33 PM

Please login or register to post a reply.