HOME
ASK A QUESTION
REPAIR GUIDES
BECOME A MEMBER
LOG IN
Login with Facebook
OR
Remember me
NOT A MEMBER?
FORGOT PASSWORD?
CONTACT US
PRIVACY POLICY
TERMS AND CONDITIONS
☰
Home
Buick
Terraza
Body
Door
No power to passenger sliding door
KATY47
MEMBER
2005 BUICK TERRAZA
124,000 MILES
Passenger slide door has no power can this be fix?
Saturday, May 26th, 2018 AT 7:45 AM
1 Reply
PATENTED_REPAIR_PRO
MECHANIC
1,853 POSTS
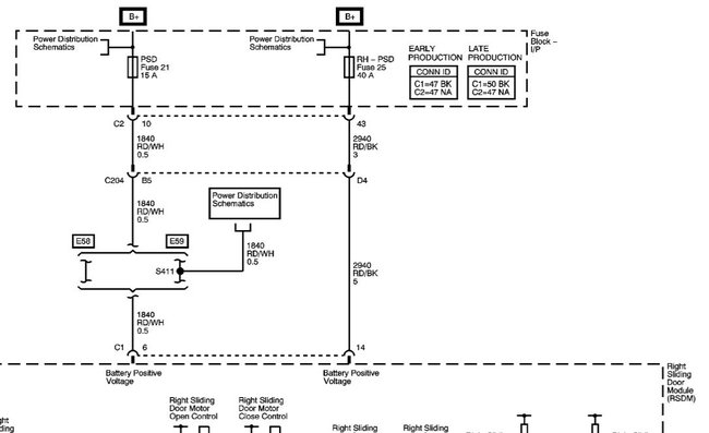
Check the two fuses in this diagram.
Image (Click to make bigger)
Was this
answer
helpful?
Yes
No
Saturday, May 26th, 2018 AT 7:51 AM
Please
login
or
register
to post a reply.
Ask a Car Question. It's Free!
Window Switch Replacement and Test
Door Not Closing
Fix a Door That Will Not Close