Brake lights do not work

Tiny
MJINBC
  • MEMBER
  • 2003 DODGE DURANGO
  • 5.7L
  • V8
  • 4WD
  • AUTOMATIC
  • 220,212 MILES
Greetings all,

My vehicle has an electrical problem that I cannot find. The passenger and driver's brake lights do not come on, the center cyclops brake light comes on when I brake. The signal lights work, the emergency lights work and the running lights work. This eliminates the fuse and the switch, so I would assume that between the brake lights themselves and the harness is the issue, but where would I start to look? Thanks all.
Saturday, November 14th, 2020 AT 4:46 PM

1 Reply

Tiny
JACOBANDNICKOLAS
  • MECHANIC
  • 110,194 POSTS
Hi,

Based on what you described, I agree it isn't a switch or fuse. I looked through the schematic and it can't be a ground either simply because the third brake light and the right lights share the same one. Plus, the other lights wouldn't work.

If both failed at the same time, the first thing I would check is a splice that ties the rear brake lights and the third brake light (center one) together.

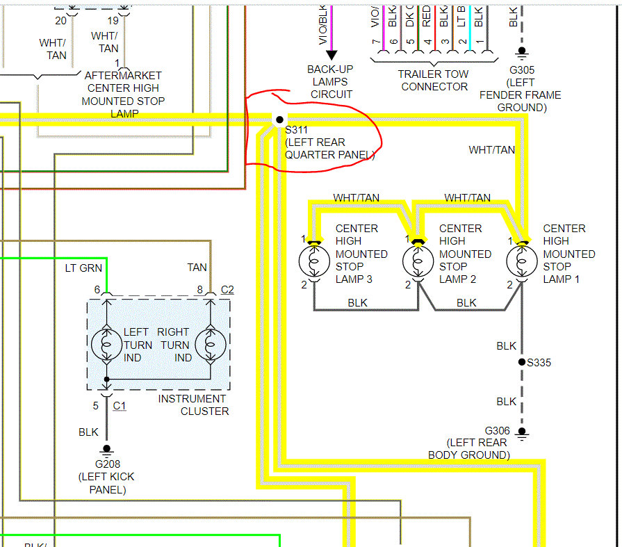
I have attached two pics below, showing power distribution to the lights. First, is the center light and pic 2 shows the rear (left and right) lights. Note I circled the splice in the wiring in pic 1. It is indicated as S311 and located in the left rear quarter panel.

If you look at pic 3, I circled the splice location. It will be behind the power outlet.

There is a chance that the splice was damaged, corroded, or simply broken. Check that and let me know what you find.

Take care,
Joe
Was this
answer
helpful?
Yes
No
Saturday, November 14th, 2020 AT 6:31 PM

Please login or register to post a reply.