Blowing Fuse #11 Fuel Injection?

Tiny
TEXACA
  • MEMBER
  • 2004 BUICK RENDEZVOUS
  • 3.4L
  • 6 CYL
  • 2WD
  • AUTOMATIC
  • 219,111 MILES
I recently replaced the fuel pump in my vehicle last week, I had issues during installation. As it turned out the problem was not the fuel pump, but the Connector C305, that is located in the floorboard of the rear left seat. The connector contacts had a lot of corrosion, and pins were no longer functioning. After the installation, I found that fuse #11 in the Power Distribution box was blown. I replaced Friday, all appears to work ok. Sunday, I tried driving the vehicle, and it died. I found that Fuse #11 was blown. I found a replacement, but it blew, and so did several others I tried to use to replace it with. Every time I put a fuse in it's place, it is Blown Instantaneously when I try cranking the engine. The engine has no problem turning over, but it won't fire, because that fuse keeps blowing. I am having trouble troubleshooting this problem.
Thank you in advance for your assistance. - Alfredo
Sunday, October 1st, 2023 AT 5:10 PM

15 Replies

Tiny
CARADIODOC
  • MECHANIC
  • 34,462 POSTS
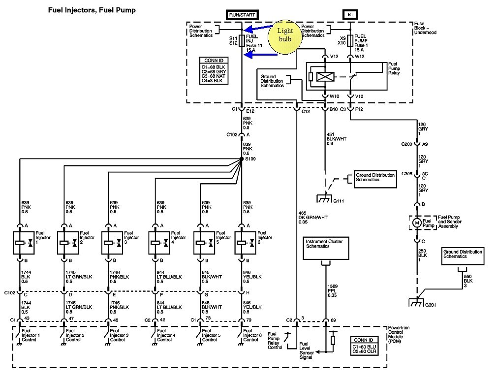
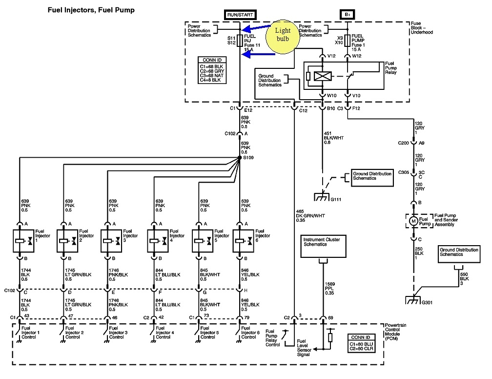
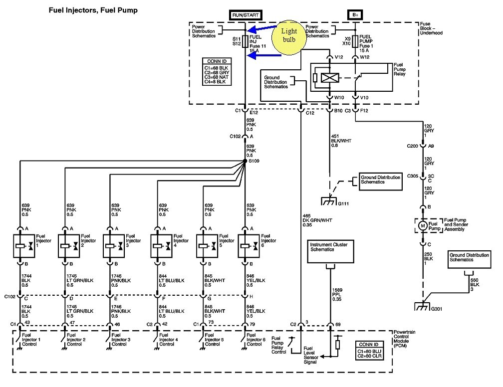
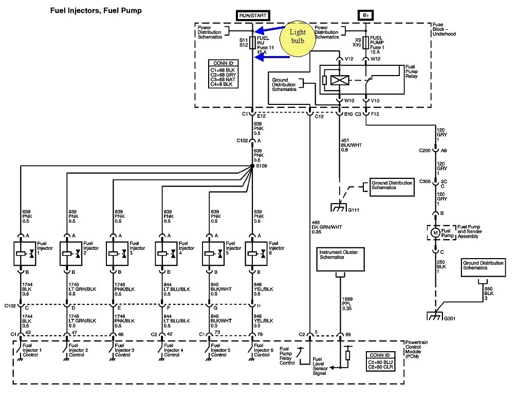
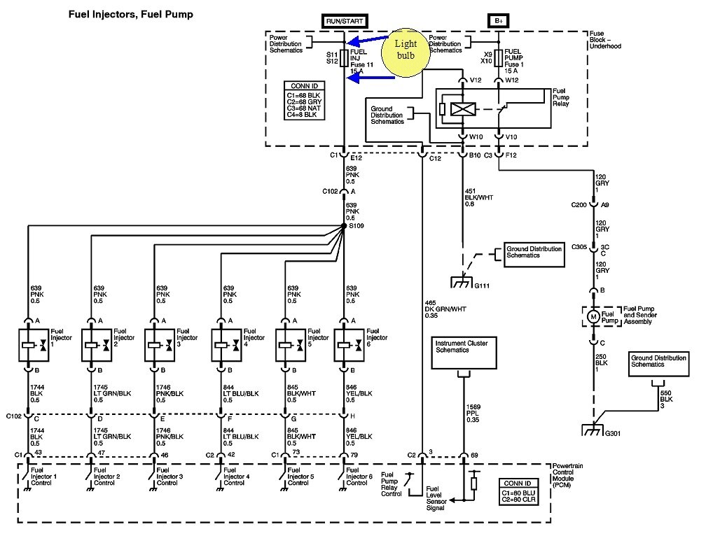
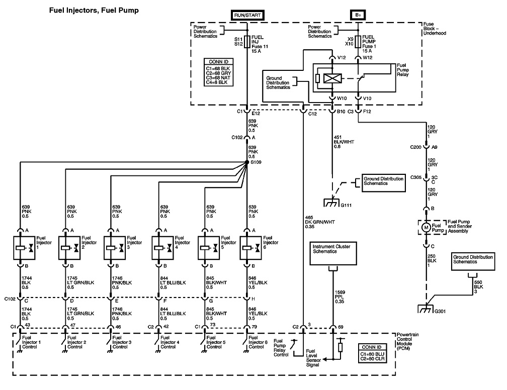
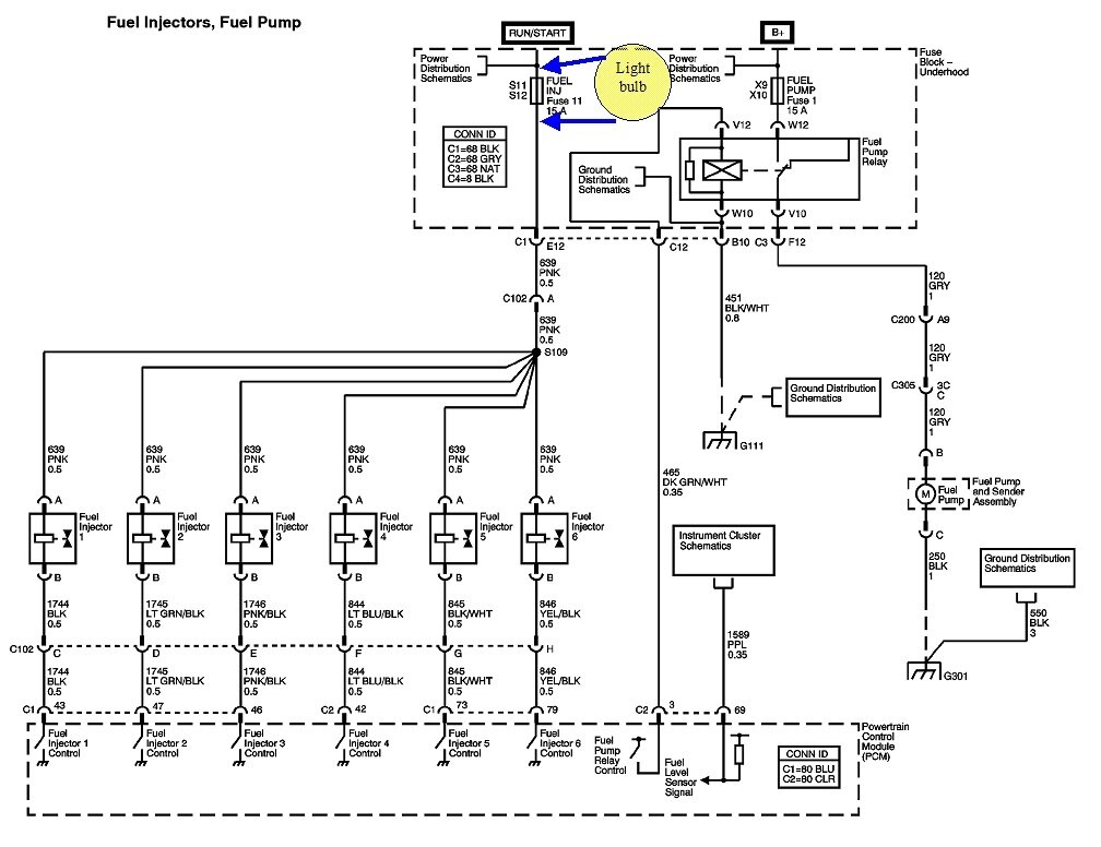
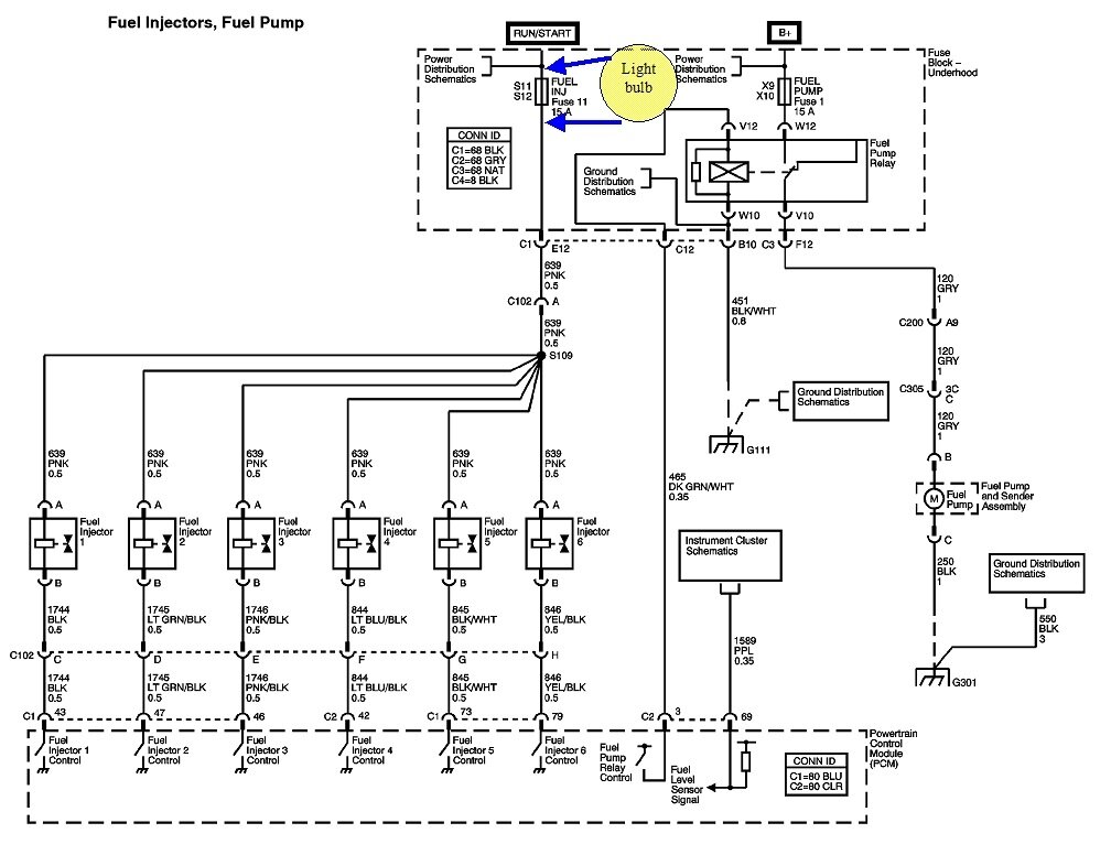
Here's a trick that will help so I don't need to buy stock in the fuse manufacturer's company. Plug in a 12-volt light bulb in place of the fuse. When the short is present, the bulb will be full brightness and hot, so be careful what it's laying against, but it will limit current to a safe, roughly one amp. When you do something to remove the short, the bulb will go out or dim. In this case it will likely go dim as current will be flowing through the fuel pump.

The problem with this is that circuit only gets turned on for one second when you turn on the ignition switch, then not again until the engine starts to rotate. It isn't practical to keep cranking the engine during the diagnosis. A better solution is to install a good fuse, then remove the fuel pump relay and jump that with the light bulb. The ignition switch doesn't even have to be on.

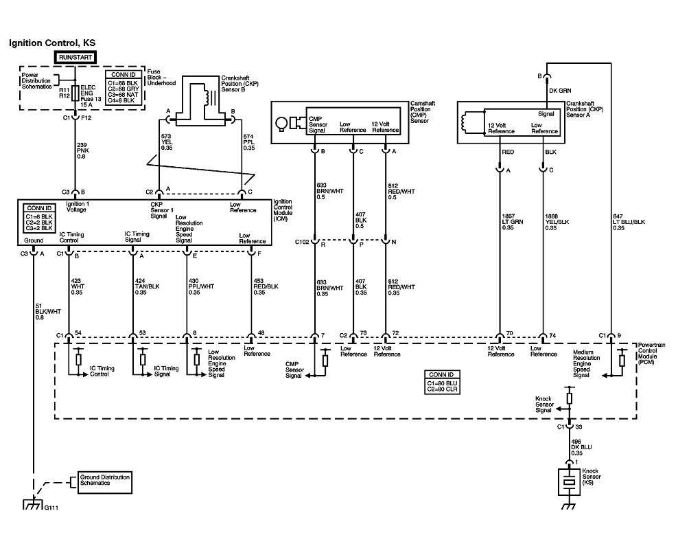
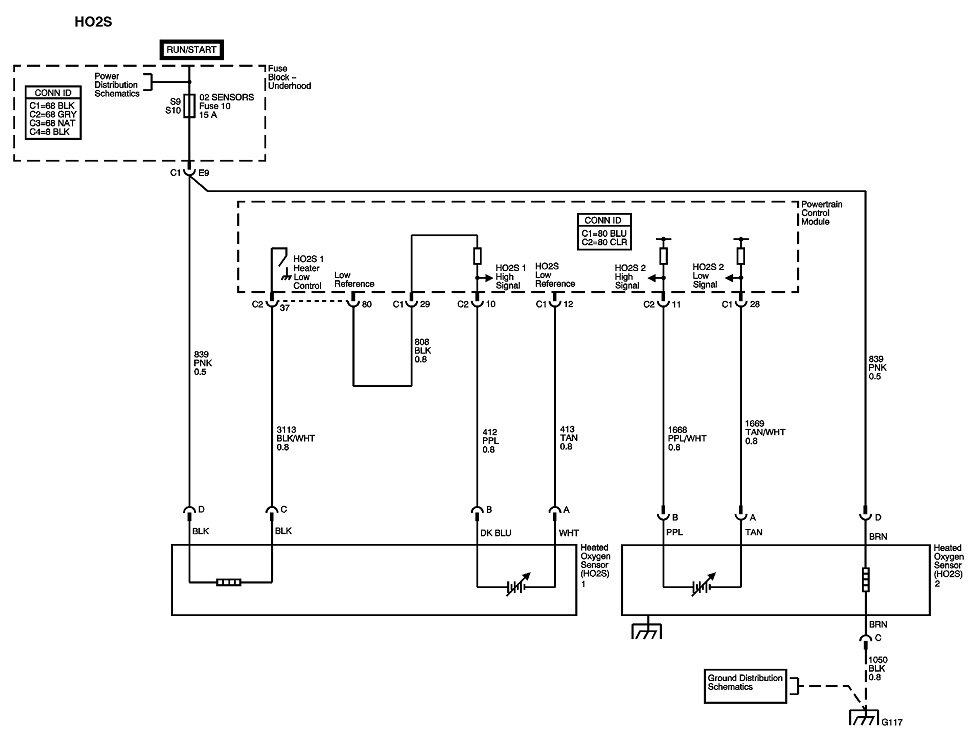
This first drawing shows the location of the fuel pump relay. There's no drawing for the terminal layout, so I added two arrows to a photo of the relay's terminals. The bulb must be connected to the two corresponding terminals in the relay's socket. The next drawings are a simplified description of the procedure. The orientation of the terminals is different, but the numbers are the same. We need # 30 and # 87. A 3057 brake light bulb works well for this.

Expect the bulb to turn on full brightness when you make the last connection. Now you can unplug connectors and wiggle wiring harnesses around to see what makes the bulb go out or dim.

Let me know if you find the cause or if I need to clarify the procedure.
Was this
answer
helpful?
Yes
No
+1
Sunday, October 1st, 2023 AT 6:59 PM
Tiny
TEXACA
  • MEMBER
  • 37 POSTS
Thank you for your reply, I will try this tomorrow. Thank you again. My troubleshooting skills are a little rusty when it comes to diagnosing electrical and electronic problems. I used to work as a Tech in Computer field, but that was ages ago. It helps to have a clear head when attempting this kind of work.
Was this
answer
helpful?
Yes
No
Sunday, October 1st, 2023 AT 7:41 PM
Tiny
TEXACA
  • MEMBER
  • 37 POSTS
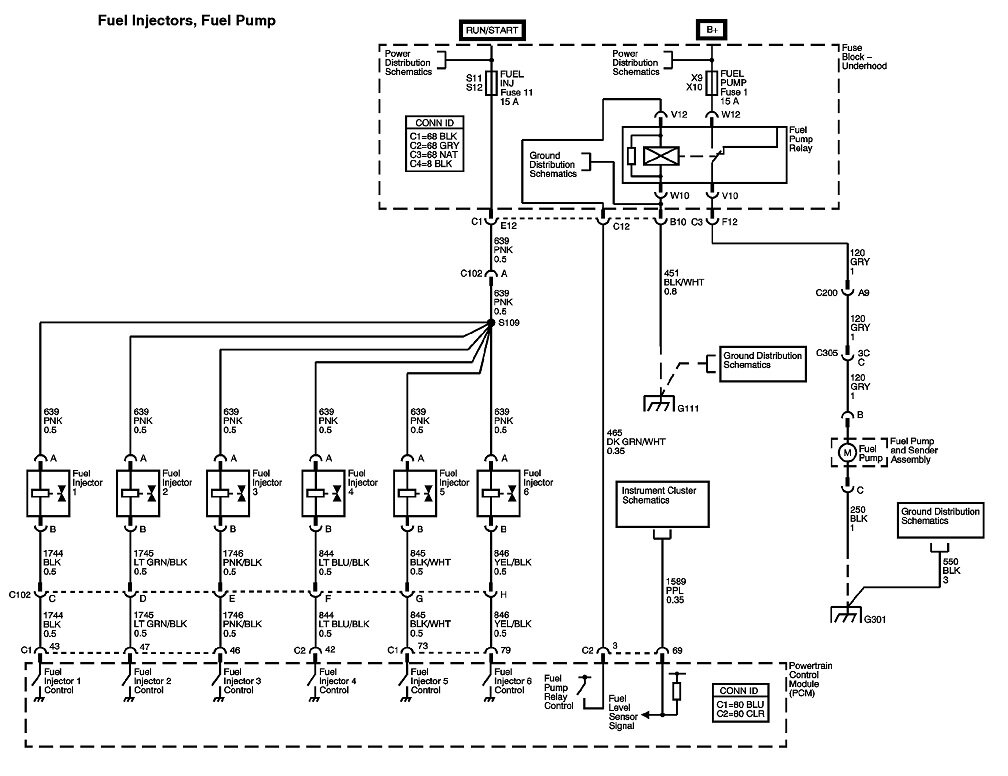
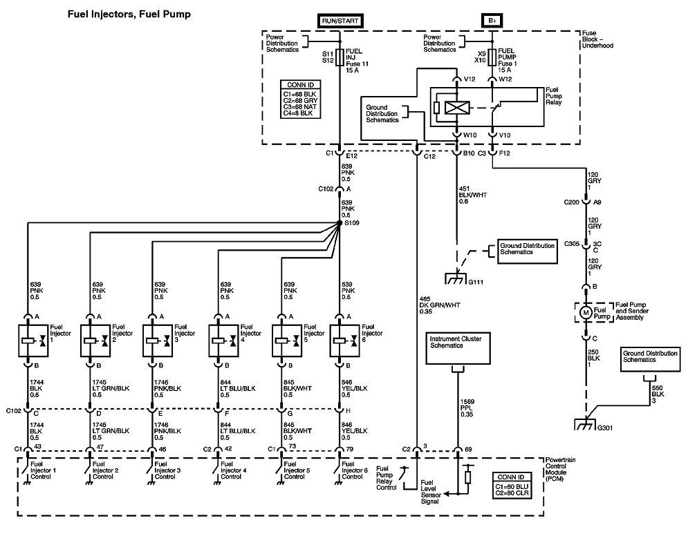
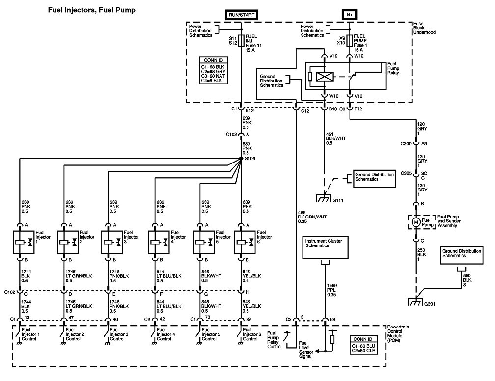
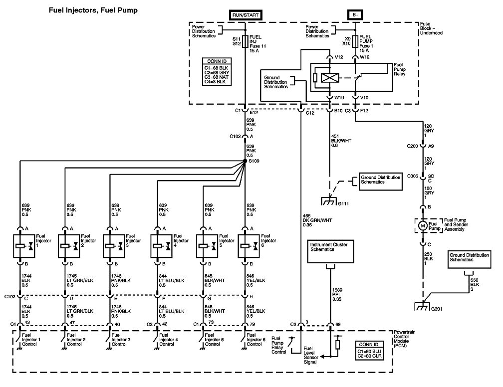
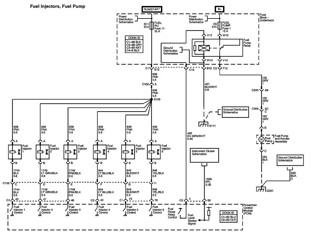
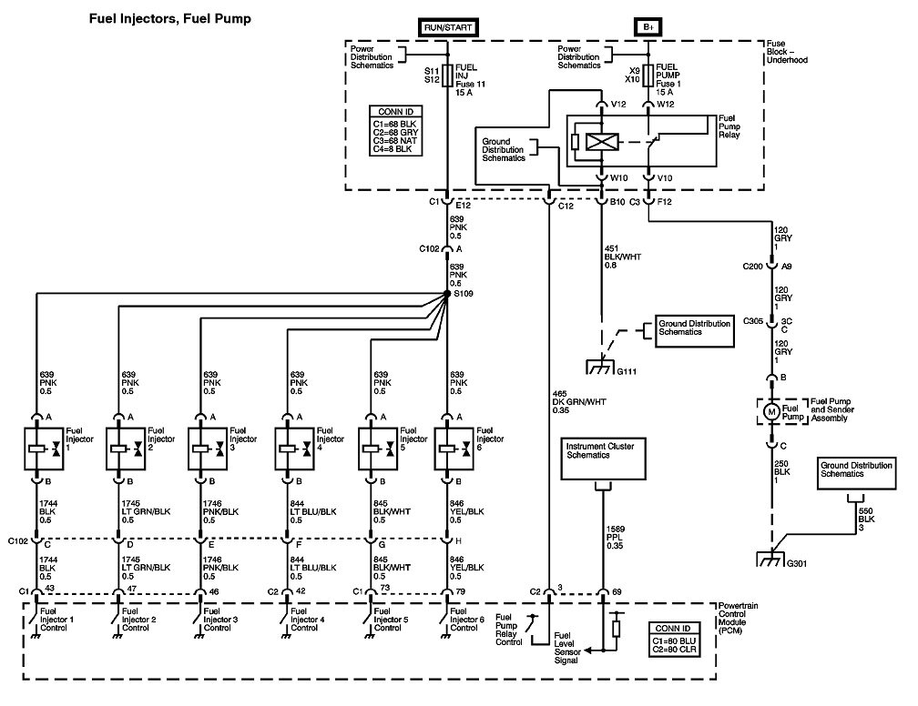
The #11 fuse is always hot, I guess when the ignition key is turned, but I'm not 100%. According to one diagram, it says "Hot in Run or Start". This circuit provides power to all 6 fuel injectors, and I gather it's the PCM which provides a Ground to each individual Injector to actuate/fire the Injector. My question is, how do you determine which of the 6 Injector Circuits is bad, or at fault? Could one Injector have failed or is the problem downstream from the Injector At one of the "Injector Control" circuits that terminate at the PCM.
This problem appeared on Sunday, when I start to drive across the street, I got as far as 50 yards, and lost all power. That's when I realized that the #11 Fuse had blown.

I'm trying to wrap and understand this, but my schematics are a very poor print quality.
This circuit does not appear to be associated, or affiliated, or connected to the fuel pump circuit. Is my assessment correct?
Was this
answer
helpful?
Yes
No
Wednesday, October 4th, 2023 AT 1:59 PM
Tiny
CARADIODOC
  • MECHANIC
  • 34,462 POSTS
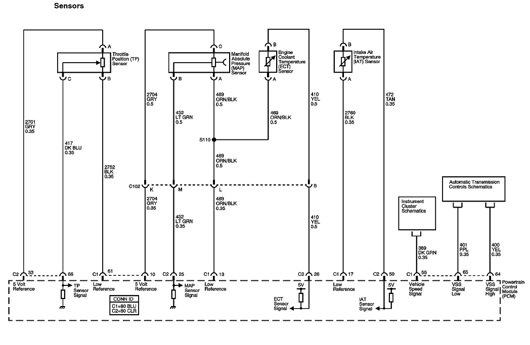
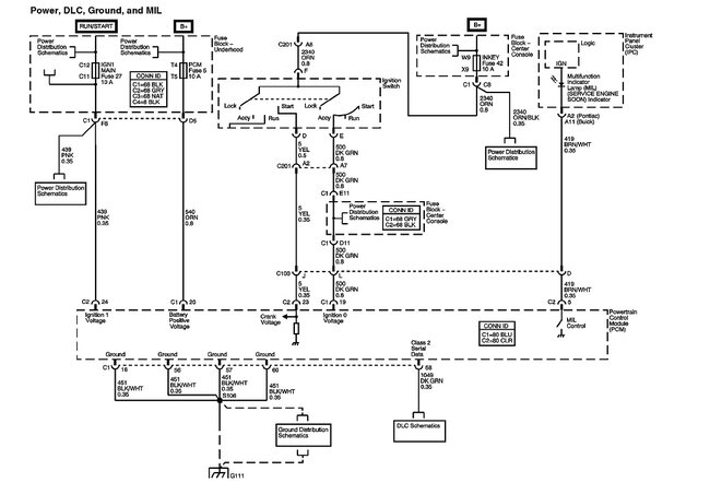
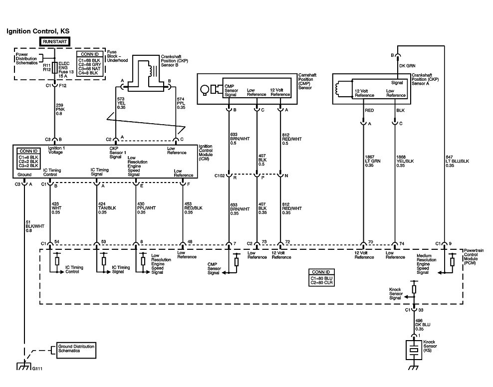
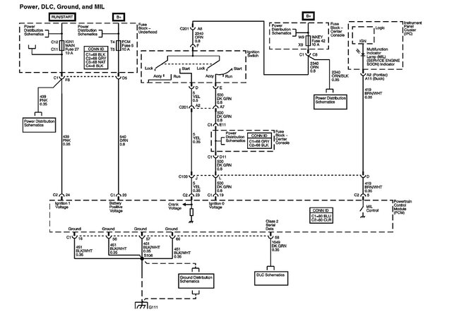
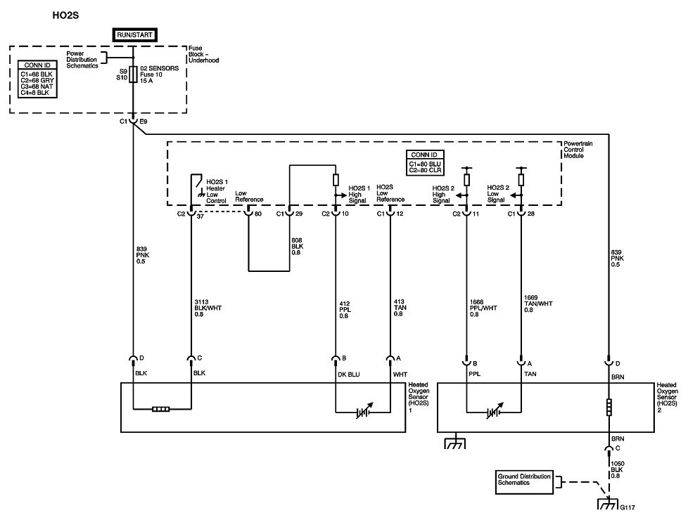
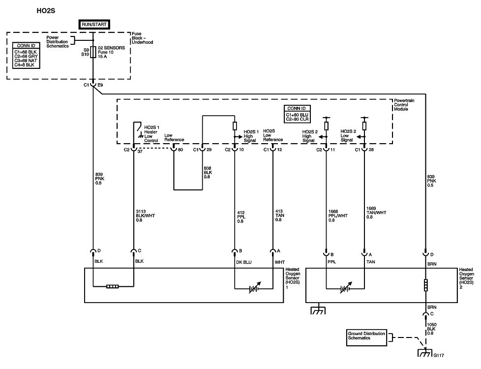
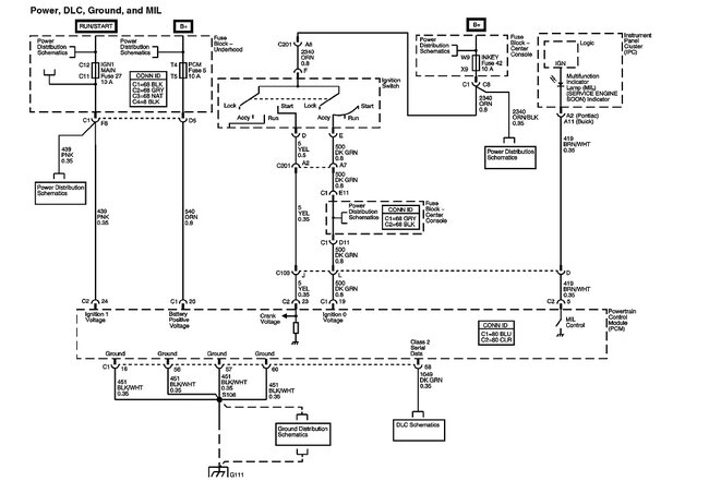
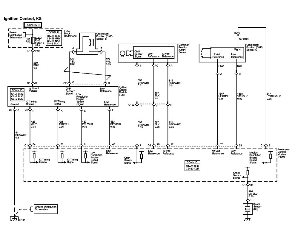
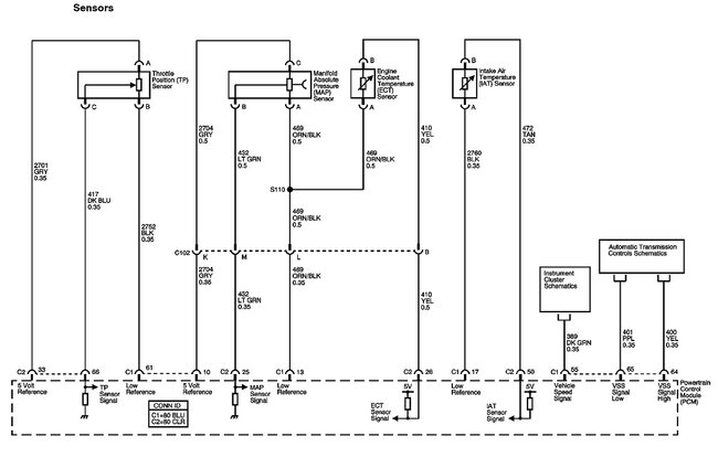
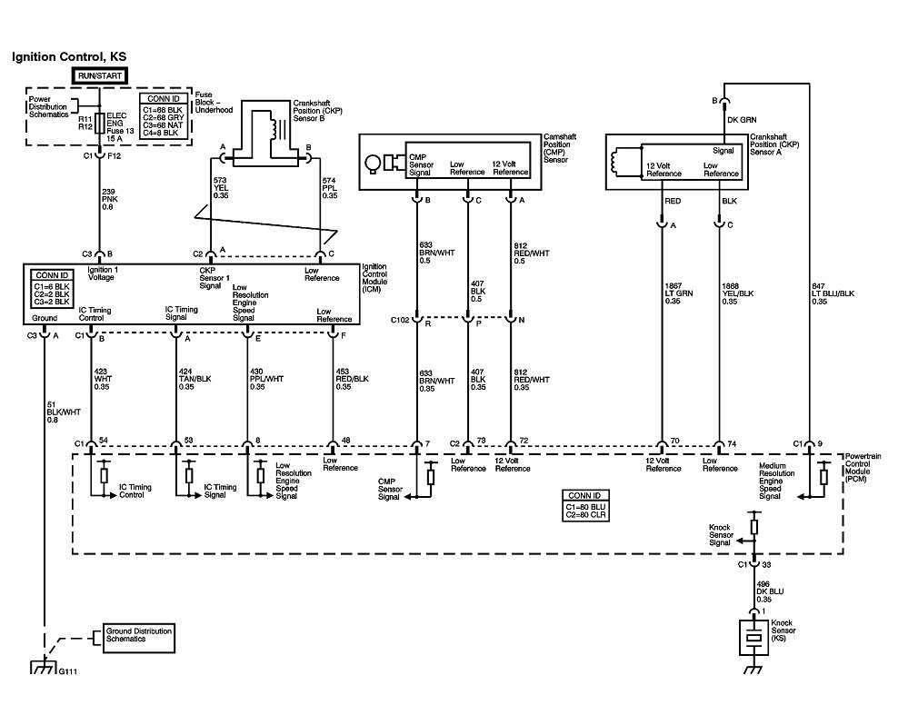
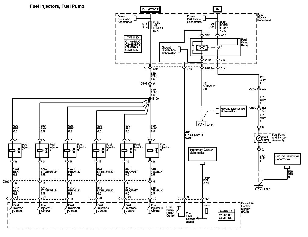
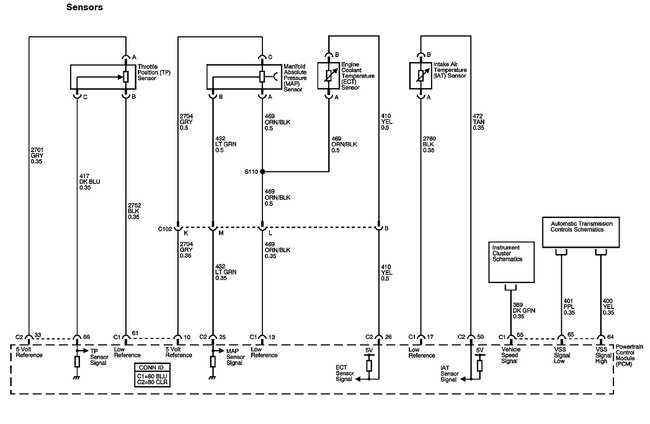
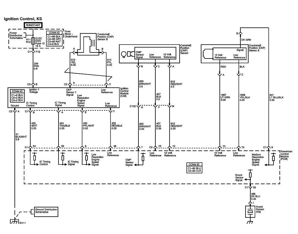
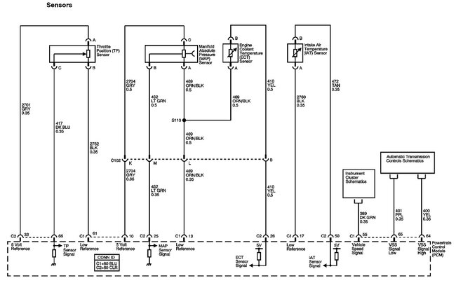
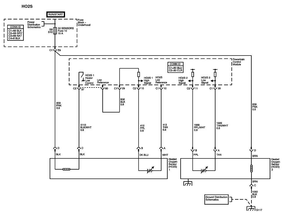
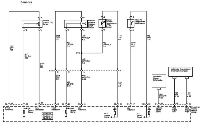
These first six diagrams are for your Power Train Management system. The seventh one is just a copy of the third one where I added my light bulb. You have system operation correct. 12 volts is supplied to the injectors, then the other side of each one is grounded by the Engine Computer when it wants to pulse one open.

GM has more problems caused by injectors than most other manufacturers combined, but being outright shorted isn't one of them. I've never run into a shorted injector on any brand or model, so put that on the bottom of the list of suspects.

If a driver transistor inside the Engine Computer is shorted, it would hold that injector open as long as the ignition switch is on. The symptoms would include anything resulting from too much fuel, as well as a real long crank time to start the engine. That would be due to fuel pressure bleeding down within a few seconds. That pressure should hold for days or weeks. That would not cause a fuse to blow.

As far as how to find this, assuming you have the light bulb in place of fuse # 11, like I described, it will be full brightness if there is something shorted on that circuit. Start by unplugging anything you can find in that circuit. In this case, you'd start by unplugging one of the injectors at a time. The better suspect would be that wire were it runs over to the engine. Look for bare spots, dry-rotted insulation, or if the harness fell down onto or is rubbing on the sharp edge of a metal bracket. When you unplug or do something that removes the short, the test bulb will get dim or go out.

If you're starting out with a dim test bulb, or it is off completely, the short is not there now. This is the time to look for things that shift as the engine rocks between acceleration and coasting or backing up. Wire harnesses as far away as running along the top of the inner fender can slide back and forth until the insulation on the wires wears through.

You're also correct that the fuel pump isn't related to fuse # 11. Only the injectors are listed for that fuse.
Was this
answer
helpful?
Yes
No
+1
Wednesday, October 4th, 2023 AT 6:44 PM
Tiny
TEXACA
  • MEMBER
  • 37 POSTS
Okay, thanks. I'll try some of these procedures tonight. Thanks again, especially for the follow-up, it's very encouraging, and it gives me confidence. Which I'm lacking at this time, but that sometimes is a symptom of aging, I'll be 60 in May.
Was this
answer
helpful?
Yes
No
Thursday, October 5th, 2023 AT 11:20 AM
Tiny
TEXACA
  • MEMBER
  • 37 POSTS
I solved the mysterious Electrical short on my vehicle. A Power wire in a bundle rubbed against the Intake Manifold and wore out the protective shielding on that one pink wire which provided power to all the Fuel Injectors from Fuse #11. A friend of mine assisted me, he inadvertently solved the problem by moving the bundle of wires, but I discovered the actual short and damaged wire. I wrapped the wire up individually, and then the entire bundle of wire to improve the protective shielding on the bundle of exposed wires. It's All Good now.

Thanks for your help, the information, advice and assistance you gave me. It gave me a lot of confidence.
Was this
answer
helpful?
Yes
No
Saturday, October 7th, 2023 AT 1:26 PM
Tiny
CARADIODOC
  • MECHANIC
  • 34,462 POSTS
Dandy. I knew you could solve this. Did you use my light bulb trick?
Was this
answer
helpful?
Yes
No
+1
Saturday, October 7th, 2023 AT 4:27 PM
Tiny
TEXACA
  • MEMBER
  • 37 POSTS
Yes, I did.

Now on to the next problem. Power steering, or in my case lack off. The Serpentine belt good, steering pump appears good. So, I'm thinking rank and Pinon rack?

It never ends. Thanks again, Alfredo
Was this
answer
helpful?
Yes
No
Saturday, October 7th, 2023 AT 4:38 PM
Tiny
CARADIODOC
  • MECHANIC
  • 34,462 POSTS
GM had a miserable problem in the late '80s that they handled very poorly. All of their steering gears developed "morning sickness", meaning loss of power assist, but only in one direction, and only for the first ten or fifteen seconds in the morning. Once the power steering fluid warmed up, the power assist came back. The problem got worse and worse over the next few weeks, then the loss of assist affected turning the other way too. If ignored long enough, the power assist would never return.

GM came up with a "fix" for this that involved replacing the spool valve assembly from under the dash. Their contention was the four Teflon sealing rings were wearing down, then pressurized power steering fluid could bypass the power piston rather than push on it to help you turn the steering wheel. In fact, the new valve did solve the problem, . . . for a little while. The goal of the repair was to get the vehicle out of the 50,000 mile warranty, then, when the problem returned, it was up to the owners to pay for the proper repair.

It wasn't really the Teflon rings that were wearing down. They were wearing grooves into the soft aluminum housing the valve sat in. Installing a new valve with new rings on it didn't address the grooves. It took a major aftermarket supplier, Moog, to develop the effective repair. That was to bore out the housing and press in a stainless steel insert, or liner. No more loss of power assist problems. Other manufacturers, to my knowledge, didn't have this problem, but when you get a Moog replacement rack assembly, they have the same liner installed.

The next problem has to do with the power steering pump. Those cause very little trouble on any car brand, except for one pump called the "ZF"-style pump. The best I can describe it is it is very small and has four bolts on back in a square pattern. Those developed worn vanes and lost their ability to push fluid under very high pressure. Your pump looks similar, but it doesn't have those four bolts. Your vehicle is a little newer than the vehicles that had this problem, so if it is related, I'd assume the worn vane issue had been addressed long ago.

The third thing has to do with variable-assist power steering. Supposedly this is supposed to reduce the amount of assist at highway speeds to save fuel or provide more road feel. Regardless, now there's another unnecessary and complicated computer module and valve involved. On Chrysler products, that valve and a small module are mounted right on the rack and pinion assembly, next to the spool valve / steering shaft. I do not see that on yours, and I don't see any reference to that valve being on a hose, in the pump, or anywhere else, so we'll ignore that for now. By the way, that system is diagnosed with a scanner through the Transmission Computer. It knows road speed so it knows when to deactivate the power assist.

That leaves a weak pump and internal leakage inside the rack and pinion assembly as the two suspects. There is a tool to figure out which one is the culprit, but I've never seen it available anywhere except as a special tool supplied by the manufacturer to their dealerships. It's a short metal pipe with a pressure gauge and a shut-off valve. You remove the high-pressure hose from the pump or the steering gear, then install the test gauge and hook the high-pressure hose to the other end. With the engine running, you close off the shut-off valve very briefly, then reopen it. During the couple of seconds it's closed, you watch the gauge to see how high pressure goes. As I recall, the minimum acceptable pressure was 1100 psi, with over 1200 psi being normal. If the gauge instantly jumped up that high, it proved the pump was capable of developing the required pressure. That left the steering gear as having suspected internal leakage. If there was no leakage, fluid pressure would still be very high with the test valve open.

If closing the test valve resulted in less than 1100 psi, the pump was the suspect. It could take an hour or more to install the test fixture, but that was better than guessing and replacing the wrong part. Some rack and pinion assemblies, such as on the Dodge Dakota, take 0.3 hours to replace, so it's not a big deal, . . . if you have a replacement at hand. If you have to order one or buy it from an auto parts store, you'd rather know for sure you're buying the part you need. Some models have two dozen pages of instructions for replacing a steering gear, and for many others, it isn't much better for the pumps, so you want to be right. Some Ford models call for over four hours to remove the steering gear, including raising the engine. You really want to be right on those.

I realize these comments aren't helping you solve this problem, but what we should do is start a new question related to just the loss of power assist. These questions get categorized according to type of problem to make it easier for others researching the topic to find related articles. This will show up under electrical problems and won't help anyone with power steering problems. The other issue is there is often something very common that I'm not aware of, but one of our other experts is. Unlike on other sites where anyone can chime in to confuse the issue, here, as soon as I posted my first reply, this became a private conversation between just the two of us. As such, none of the other experts will see this new problem or have the chance to reply. That may not get you the best help for this problem.

Here's the link to start a new question:

https://www.2carpros.com/questions/new

If I see it, I'll click on my link to follow along and learn the solution, but I already added all of my wisdom on this topic here, so I'll let one of the other experts become involved. I'll still offer comments of value if I have any.
Was this
answer
helpful?
Yes
No
+1
Saturday, October 7th, 2023 AT 7:50 PM
Tiny
TEXACA
  • MEMBER
  • 37 POSTS
I figured out what the steering issue is, I have a slow leak in the Rack and Pinion Steering Assembly. Since my car sat for over a month, while I was troubleshooting all the wiring gremlins, the power steering fluid leaked out from the Passenger side. Once I added some fluid, in Day light, I was able to restore its operations. All good for now, thank you for the information and assistance.
Replacing the Rack and Pinion assembly will have to wait a while. I just have to check the levels once a week. I'll have to locate a replacement unit from a salvage yard, because I can't afford a unit from a "Big Box" Parts Store. Or I'll have to find one on eBay. I have yet to locate a "Repair Guide" on how to rebuild those steering racks. Have you ever seen anything like that?
Thank you again, for all your help.
Was this
answer
helpful?
Yes
No
Saturday, October 14th, 2023 AT 8:53 PM
Tiny
CARADIODOC
  • MECHANIC
  • 34,462 POSTS
You're going to find very little in the way of rebuild information or parts as these are left for the specialty shops that do this kind of work. Given the chance of the repair going sour and the time it takes, we would never try to rebuild a steering gear for a customer. We won't save them any money, and the quality of the repair will be in question.

The good news is when I started out as the suspension and alignment specialist at a very nice dealership in the '90s, new rack and pinion assemblies cost around $450.00, but they were only ordered when the vehicle was under warranty. For all others, we ordered remanufactured racks. Today you can find new and rebuilt steering gears for very good prices. So good, in fact, it doesn't make sense to find one in a salvage yard and hope it is okay. There's a real good chance you're going to get one with the same problems or will develop the same problems soon, then you get to do the job all over again. I don't know about your model, but on GM front-wheel-drive cars, replacing a steering gear often takes two to three times longer than on most other models. If you have to do this job twice, you aren't going to remember the few dollars you might have saved on the part.

Before you get too involved in this job, be aware the leak you found may not occur all the time. There could be a nick or a pitted spot on the rack itself, and it only allows leakage when that spot runs under the lip of the seal. At any other position it might not leak.

On the other hand, if the rack is able to move up and down a little due to worn nylon slides, it can move away from one edge of the seal when it's under pressure from turning maneuvers. The leakage could be worse while driving.

If you do need to get a replacement gear from a salvage yard, try to find one they have on their shelves already rather than one you have to remove yourself from a pick-your-own-parts yard. Once they pull the engine and transmission out, it's easy for them to get the rack out. If you have to do this yourself, you'll be running from on top to underneath, back and forth, so the vehicle must be supported up high enough. It's not a fun job already. You really don't want to be doing this on a hot, scorching summer day, in a blinding snow storm, ... While it's raining heavily.

Look for a used rack that's dry and relatively clean. If there's oil on it or heavy caked-on dirt, there's a chance it has been leaking too. Also look at the accordion boots. Either pull one off the housing, or pull the air transfer tube and check for wetness. Leakage from one side will eventually show up on both sides due to fluid running through that transfer tube. Around here, when any rack shows signs of having had oil on it, the unit goes straight into a barrel of similar gears that get sold to the rebuilders.
Was this
answer
helpful?
Yes
No
+1
Saturday, October 14th, 2023 AT 9:40 PM
Tiny
TEXACA
  • MEMBER
  • 37 POSTS
Okay, thanks for your advice, I appreciate the feedback. There is a lot of sludge built up around the passenger side of the rack, near the firewall and on the subframe. So, I'll have to investigate closely to pin-point the exact source of the leak. It still might be a pin hole in one of the lines, because they both run on that side of the Rendezvous.
Thanks again and have a nice weekend. Alfredo
Was this
answer
helpful?
Yes
No
Sunday, October 15th, 2023 AT 10:08 AM
Tiny
JACOBANDNICKOLAS
  • MECHANIC
  • 110,192 POSTS
Hi,

I noticed it has been a couple of days since we've been in touch with you. By chance, have you been able to make any progress? We are interested in knowing.

Take care,

Joe
Was this
answer
helpful?
Yes
No
+1
Tuesday, October 17th, 2023 AT 6:38 PM
Tiny
TEXACA
  • MEMBER
  • 37 POSTS
JACOBANDNICKOLAS. Everything is A.O.K.

I was able to resolve the problem with the help of CARADIODOC. The electronic/electrical issue turned out to be a shorted wire, near the Upper Intake Manifold, a wire loom which carried power to the Fuel Injectors, had rubbed itself bare, and was exposed, which caused a shot. The power steering issue is another matter, but it's just a leak at present.

Thanks for the follow-up. All is Good.
Was this
answer
helpful?
Yes
No
Thursday, October 19th, 2023 AT 10:28 AM
Tiny
JACOBANDNICKOLAS
  • MECHANIC
  • 110,192 POSTS
Hi,

Thanks for the update. If we can help in the future, please feel free to come back anytime.

Take care,

Joe
Was this
answer
helpful?
Yes
No
+1
Thursday, October 19th, 2023 AT 5:36 PM

Please login or register to post a reply.