Blower motor not working

Tiny
PUFFNSTUFF
  • MEMBER
  • 2007 DODGE CARAVAN
  • 3.3L
  • 4 CYL
  • 2WD
  • AUTOMATIC
  • 189,000 MILES
Hello, blower motor not working on my van. Done a few tests and found out I have no power coming from live wire to blower resistor with key on and switch on high. Swap fuses and relay and both are good. I am starting to think I have a fuse box issue.
Thanks!
Tuesday, January 31st, 2017 AT 2:12 PM

48 Replies

Tiny
CARADIODOC
  • MECHANIC
  • 34,489 POSTS
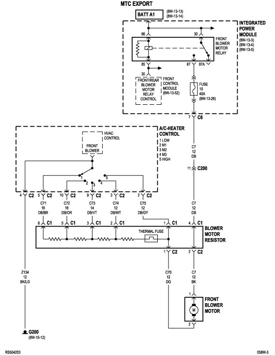
There are two different systems; and both use unnecessarily complicated computer controls. The fan is wired differently than on older systems. Twelve volts is applied directly to the fan motor from a "front fan relay". Check for that twelve volts on the black wire at the motor.
Was this
answer
helpful?
Yes
No
Tuesday, January 31st, 2017 AT 2:26 PM
Tiny
PUFFNSTUFF
  • MEMBER
  • 59 POSTS
Thanks. Checked it by connecting voltmeter and shows no voltage. Fan works fine when tested directly to battery. Thanks!
Was this
answer
helpful?
Yes
No
+1
Tuesday, January 31st, 2017 AT 2:34 PM
Tiny
CARADIODOC
  • MECHANIC
  • 34,489 POSTS
Do you have dual zone front heating?
Was this
answer
helpful?
Yes
No
+16
Tuesday, January 31st, 2017 AT 3:27 PM
Tiny
PUFFNSTUFF
  • MEMBER
  • 59 POSTS
No
Was this
answer
helpful?
Yes
No
Wednesday, February 1st, 2017 AT 6:43 AM
Tiny
CARADIODOC
  • MECHANIC
  • 34,489 POSTS
If there's no 12 volts on the black wire, look for the "front fan relay" in the under-hood fuse box. Bypass that relay, then see if the fan motor runs. You can do that by removing the cover from the relay, then reinstalling it that way and squeezing the contact, or use a stretched-out paper clip or piece of wire to connect terminals 30 and 87 together in the socket.
Was this
answer
helpful?
Yes
No
+8
Wednesday, February 1st, 2017 AT 2:45 PM
Tiny
PUFFNSTUFF
  • MEMBER
  • 59 POSTS
Thanks! I'll give it a try.
Was this
answer
helpful?
Yes
No
Wednesday, February 1st, 2017 AT 8:05 PM
Tiny
PUFFNSTUFF
  • MEMBER
  • 59 POSTS
Hello! Here's what I done so far. I removed the 40amp fuse and hooked a jumper wire from fuse pin to positive on battery and everything works.I swapped fuses and the fuse is good and I also swapped the relay to the starter relay and it worked so I am guessing the really should be fine also. All this leads me to believe that I have a fuse box issue. Am I correct in saying this. Thanks!
Was this
answer
helpful?
Yes
No
+1
Thursday, February 2nd, 2017 AT 11:22 AM
Tiny
CARADIODOC
  • MECHANIC
  • 34,489 POSTS
Hooking a jumper wire between the fuse socket and battery is the same as jumping the two relay terminals 30 and 87 together. All this proves is that relay is not being turned on, and that is done by an unnecessarily-complicated computer circuit. It does prove the rest of the fan circuit is working.

Check for 12 volts on terminal 30 in the relay socket. It should be there all the time.

Which engine do you have, the 3.3L V-6 or the 2.4L four-cylinder?
Was this
answer
helpful?
Yes
No
+3
Thursday, February 2nd, 2017 AT 12:48 PM
Tiny
PUFFNSTUFF
  • MEMBER
  • 59 POSTS
3.3. So is it possible it could be the Fcm module attached to the fuse box? I am not sure but I believe I had power at 86 and 87 but none at 30. I will have to double check that.I have heard that this Fcm module provides ground to circuits.I will check what you mentioned also. So you are saying the really is not turning on? Thanks!
Was this
answer
helpful?
Yes
No
Thursday, February 2nd, 2017 AT 1:23 PM
Tiny
CARADIODOC
  • MECHANIC
  • 34,489 POSTS
There is no 12 volts being switched onto the line to the fan motor. That can be because there is no 12 volts feeding the relay or because the relay is not being switched on.

You're right about the grossly-over-complicated fuse box. That is a ridiculous Ford innovation that everyone else copied. It truly does replace simple, reliable switches with unreliable computer circuits.

Jump terminals 30 and 87 together right in the relay's socket. If the fan runs, there has to be 12 volts getting to terminal 30, and there's no need to look further. If the 12 volts is indeed missing on terminal 30 I'd be real surprised because the circuit that feeds the fan relay also feeds all the other functions. There would have to be a break inside the module, and that would be very uncommon.
Was this
answer
helpful?
Yes
No
+1
Thursday, February 2nd, 2017 AT 4:03 PM
Tiny
PUFFNSTUFF
  • MEMBER
  • 59 POSTS
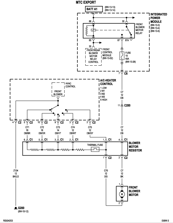
I'm confused. Do I jump 87 and 86 by this diagram or 86 and 30? And if I do jump them and it works does it confirm I have a fuse box issue? 86 is battery voltage coming in and 87 is voltage coming out and going to fuse. Is this correct? This is the correct diagram I take i. Thanks!
Was this
answer
helpful?
Yes
No
-1
Thursday, February 2nd, 2017 AT 4:45 PM
Tiny
CARADIODOC
  • MECHANIC
  • 34,489 POSTS
Nope. Jump 30 to 87. That is connecting the two switch contact terminals. 85 and 86 are the control half of the relay, and is where I suspect we're going to find the problem.
Was this
answer
helpful?
Yes
No
+1
Thursday, February 2nd, 2017 AT 5:13 PM
Tiny
PUFFNSTUFF
  • MEMBER
  • 59 POSTS
Okay, thanks a million! I will try it. I live in a cold and snowy climate with no garage and I am doing this in between the weather and work. I will post once I try it.
Was this
answer
helpful?
Yes
No
Thursday, February 2nd, 2017 AT 5:23 PM
Tiny
PUFFNSTUFF
  • MEMBER
  • 59 POSTS
Will I proceed any further if this does'nt work?
Was this
answer
helpful?
Yes
No
Thursday, February 2nd, 2017 AT 6:30 PM
Tiny
CARADIODOC
  • MECHANIC
  • 34,489 POSTS
Once you verify the high-current part of the circuit is working, where we go next depends on what I can find in my research of circuit operation. I prefer to follow wiring diagrams to the source of the problem, but when these over-complicated computer controls are added to what used to be common-sense circuits, there are no clear-cut tests that will provide useful information.

I'm in the middle of Wisconsin, so I know very well what working in cold is like.
Was this
answer
helpful?
Yes
No
Friday, February 3rd, 2017 AT 2:26 PM
Tiny
PUFFNSTUFF
  • MEMBER
  • 59 POSTS
I'm in Newfoundland Canada.I never tried anything today whereas I have been working most of the day but I will be checking it again tomorrow. I will try jumping pins 30 and 87 like you mentioned. I will let you know of my findings. Anything else I should check while I'm at it?. Thanks for the help!
Was this
answer
helpful?
Yes
No
Friday, February 3rd, 2017 AT 6:31 PM
Tiny
CARADIODOC
  • MECHANIC
  • 34,489 POSTS
If the fan runs, the next thing is to figure out why the relay is not being turned on. Terminal 86 should also have 12 volts all the time. The computer grounds terminal 85 to turn the relay on. The data buss wire is the only thing I can find that connects the heater control assembly to the Integrated Power Module. That means further testing requires a scanner.

The first step with the scanner is to access the heater control module and see if it shows it is sending a signal for "fan control" when any functions are selected. If it is sending that signal, the next step is to access the Integrated Power Module and look at the "Inputs / Outputs" to see if it is receiving and recognizing that signal. If it shows the signal is being received, but it's not turning on the relay, that IPM is suspect.
Was this
answer
helpful?
Yes
No
+1
Friday, February 3rd, 2017 AT 6:51 PM
Tiny
PUFFNSTUFF
  • MEMBER
  • 59 POSTS
Okay. Will do. Thanks! So it is possible I may need a fuse box? After performing these tests?
Was this
answer
helpful?
Yes
No
Friday, February 3rd, 2017 AT 7:41 PM
Tiny
PUFFNSTUFF
  • MEMBER
  • 59 POSTS
Okay. I tried jumping pins 87 and 30 and it worked. Blower was running on all speeds and from what I have been hearing and reading leads me to believe that the Fcm ain't sending a ground signal to pin 85 of the relay. Broken wire maybe? If I was able to find which Fcm pin that pin 85 of the relay goes to I should be able to check continuity between those two pins. Is that correct? I haven't removed any of that yet to check, but planning on removing it next chance I get. Thanks for your help! Much appreciated.
Was this
answer
helpful?
Yes
No
+2
Saturday, February 4th, 2017 AT 9:58 AM
Tiny
CARADIODOC
  • MECHANIC
  • 34,489 POSTS
Nope. The only thing shown on the diagram is a box representing the computer circuitry that grounds the relay. You need the scanner to figure out if the heater controller is sending the "fan request" signal or the front module is not reacting to that request.

To bypass the computer controls, you can stick a thin wire into terminal 85, then install the relay. Use a jumper wire to ground 85, and the fan will work. The jumper wire is taking the place of the computer controls. Nothing else will be damaged, but I don't know what the ramifications are of doing that as far as setting diagnostic fault codes.

Be careful to not use such a fat wire as to spread the terminal in the socket. That can cause intermittent problems later.
Was this
answer
helpful?
Yes
No
+2
Saturday, February 4th, 2017 AT 3:51 PM

Please login or register to post a reply.