BCM and Ignition System?

Tiny
AZDANNO04
  • MEMBER
  • 343 POSTS
The service guy that handled my car. I asked for him and they told me he is no longer working here. Then I asked for the service manager. The other advisor asked if I was picking up my vehicle. I explained to him what happened. He pulled up the invoice and I said I wanted to be fair, and I was told that if the relearning of the key didn’t work, I still have to pay that. Then the $195 for the diagnostic I understand but what was the remaining of the $897 for if it was labor I doubt it took >5 hours to plug into the computer to scan? I mentioned that the courtesy inspection, for what they didn’t mention about the tie rods or oil leak? So why do the inspection? The mechanic stated the BCM needed replacement. Part was discontinued and tow the car back home. Found the wires underneath the fuse box was not allowing connection. Got the car to start. The advisor apologized and totaled 747 and said he will be here in the morning first thing since the service manager had already left. I thanked him and will be there in the morning. Whew! At least I got a chunk of that back. Hopefully it goes as said tomorrow.
Was this
answer
helpful?
Yes
No
Tuesday, March 25th, 2025 AT 7:57 PM
Tiny
AL514
  • MECHANIC
  • 5,597 POSTS
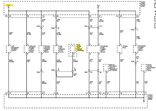
Sorry I had to read your posts again to catch up, been through a lot of vehicles lately, So, the dealership is returning most of what they previously charged you. But still no Speedometer and gas gauge? The fuel gauge code P0463 (Fuel Level Sensor circuit High Voltage) on the OEM wiring diagram shows the fuel level sensor is fed a 5volt reference and when the float on the sensor moves up and down as the fuel level does, the float is on an arm which changes the resistance in the circuit, and therefore changes the 5volts to a different level to indicate the fuel level. So, if the sensor is missing/open its ground (low reference) or the sensor is shorted to a power wire, it will read a high voltage level at the PCM.
As for the vehicle speed sensor code, there are some specs for checking the resistance of the speed sensor for the manual transmission, but the PCM pins they have listed for testing are not the same as what is shown in the aftermarket wiring diagram.
But it's possible the vehicle speed sensors wiring may have been affected when changing the shift cables, since the speed sensor is located on the transmission housing. With all the wiring harness movement you had posted about, it's difficult to say exactly where these wiring issues could be, but again going back to any areas where the harness was moved around and worked on, including the PCM connectors if they were disconnected, would be the first areas to check.
But I'm glad to hear you're getting most of the money back they charged you, since it really was a misdiagnosis.
Was this
answer
helpful?
Yes
No
+1
Wednesday, March 26th, 2025 AT 2:53 PM
Tiny
AZDANNO04
  • MEMBER
  • 343 POSTS
Well, it’s postponed for tomorrow. I didn’t get any calls and drove over there. Found the advisor he asked if I spoke to the manager? I said no one had called he went to go find out. The manager asked me into his office and wanted to know what I was doing. Just by his tone I can tell this guy isn’t going to want to let go of the funds or as little to give back.
Was this
answer
helpful?
Yes
No
Wednesday, March 26th, 2025 AT 6:14 PM
Tiny
AZDANNO04
  • MEMBER
  • 343 POSTS
To fast forward everything the manager made a stupid comment from where I got my second opinion from, on 2CarPros I don’t think he knows that you’re certified etc. But this is the topping of the cake when he puts his foot in his own mouth.
Was this
answer
helpful?
Yes
No
Wednesday, March 26th, 2025 AT 6:20 PM
Tiny
AZDANNO04
  • MEMBER
  • 343 POSTS
He stated that he would rather take his mechanic of 30 years' experience and expert in electrical over some google search site. I pointed out you just made your mechanic even pathetic since he couldn’t even get it started and I am not a mechanic I work in the pharmacy and I got it started just by moving and wiggling bundles of wire but since he didn’t get it to work and thought the BCM needed to be replaced. The manager said he needs to talk to the mechanic to see where the miscommunication was and what he exactly did as to work on my car... (That’s totally irrelevant! Why does he need to! Bottomline, he didn’t get it to work) I will be on this guy tomorrow repeating the facts over and over and just pay up.
Was this
answer
helpful?
Yes
No
Wednesday, March 26th, 2025 AT 6:27 PM
Tiny
AL514
  • MECHANIC
  • 5,597 POSTS
Well, I only have 25 years of experience, so its not 30 years, we're definitely not some random google search site though. But obviously their diagnosis was incorrect. Tell them you have to give the better business bureau a call. They shouldn't have taken almost a $1,000.00 for nothing really. The car starts and runs now, correct? I can't see it needing a BCM if it runs now, that should be proof enough. The problem is they want to replace the module first to try to short cut things, if it the fault still exists then they'll go looking for a wiring issue because they have to pay their guys more to find a wiring issue. I do hope you get your money back.
Was this
answer
helpful?
Yes
No
+1
Friday, March 28th, 2025 AT 4:36 PM

Please login or register to post a reply.