Adjustable brake pedal

Tiny
AK2STEPIN
  • MEMBER
  • 2003 FORD F-350
  • 7.3L
  • V8
  • TURBO
  • 4WD
  • AUTOMATIC
  • 175,000 MILES
Where can I find a power adjustable brake pedal? Truck listed above is a diesel, Lariat model
Wednesday, October 25th, 2017 AT 3:21 PM

3 Replies

Tiny
STEVE W.
  • MECHANIC
  • 15,694 POSTS
Ford might have them but they are expensive. Better option would be a salvage yard. There are different ones based on if the vehicle has the memory option or not. I take it the ones you have will not adjust?
Was this
answer
helpful?
Yes
No
+1
Thursday, October 26th, 2017 AT 4:49 AM
Tiny
AK2STEPIN
  • MEMBER
  • 2 POSTS
That is correct. There are new ones available for the accelerator.
The dealer hear in Soldotna AK. Said they do not make them any more.
I would take a chance on a junk yard/used but at $400.00 for a thirty day
guarantee, seems like a suckers bet. Plus, I can only find them in a set
with the accelerator pedal. I do not recall anything about memory.
Are you familiar with what years are compatible? I sure appreciate the
schematic.
Ak2stepin.
Was this
answer
helpful?
Yes
No
Thursday, October 26th, 2017 AT 11:35 AM
Tiny
KEN L
  • MASTER CERTIFIED MECHANIC
  • 55,481 POSTS
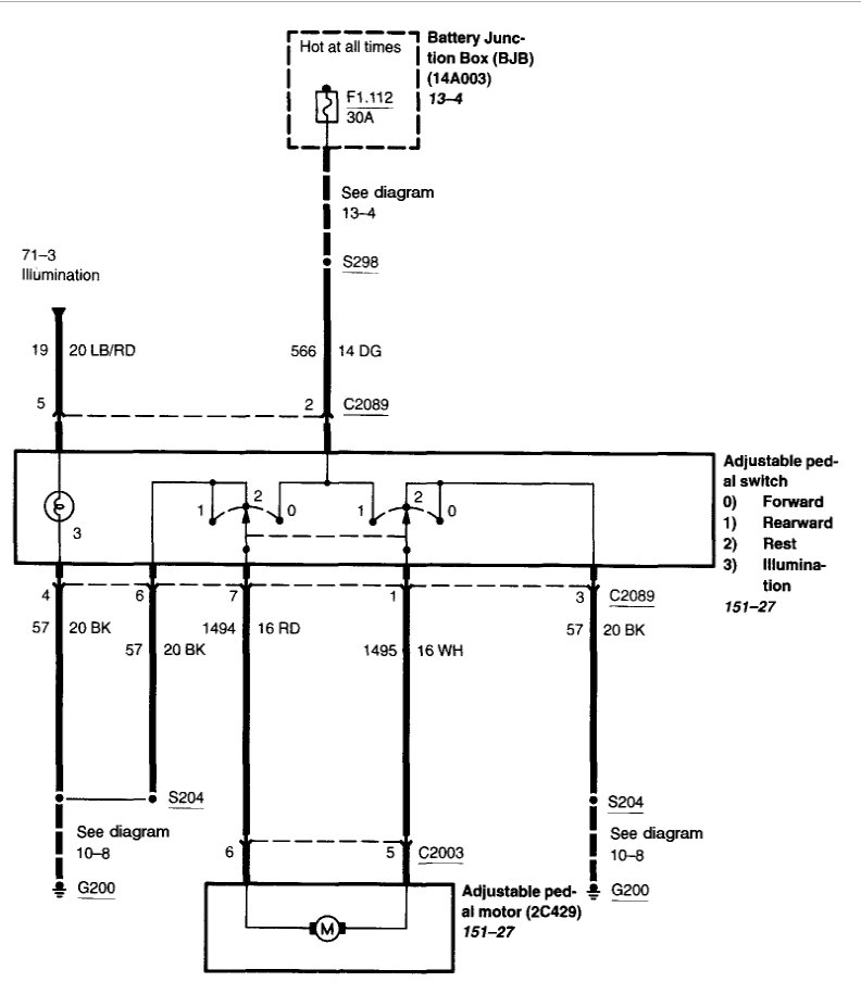
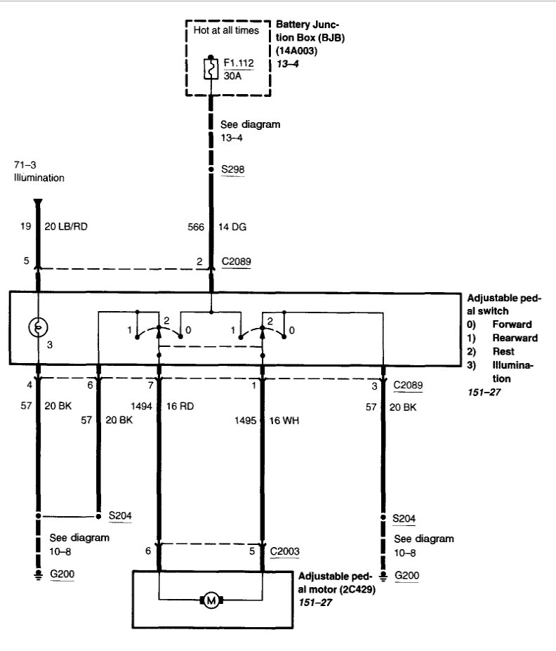
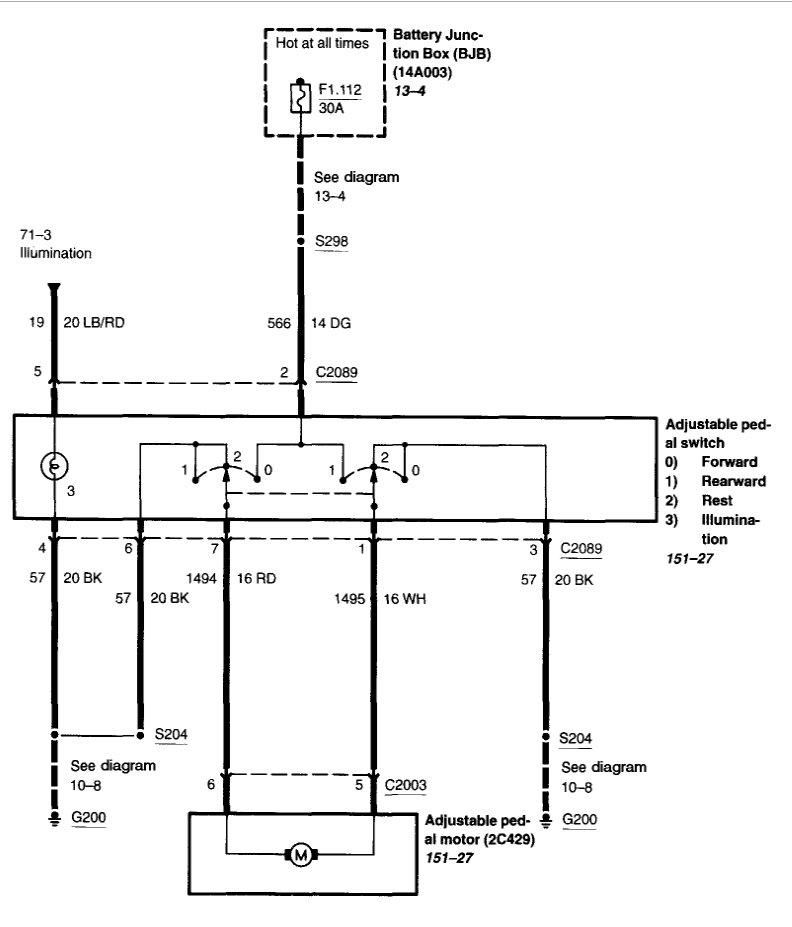
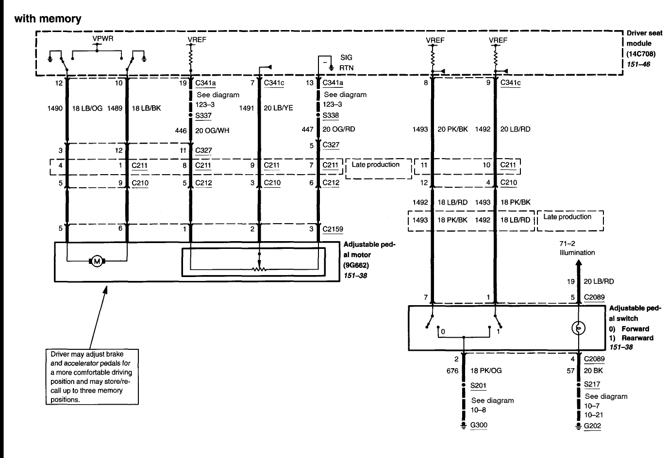
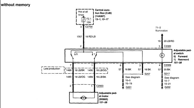
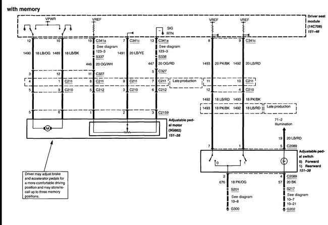
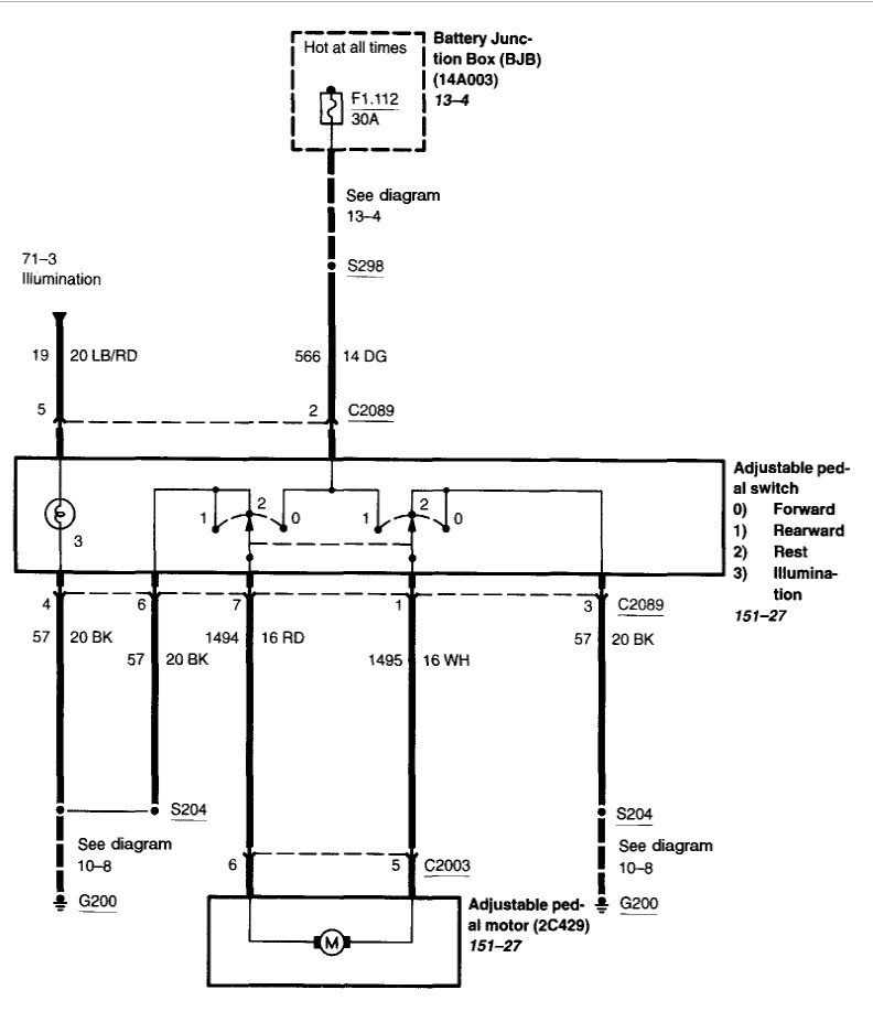
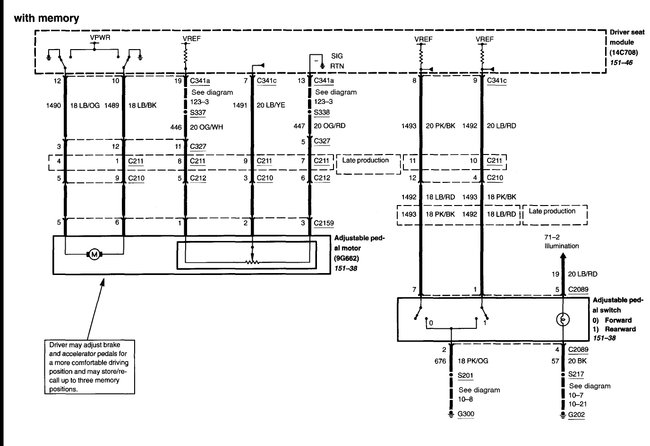
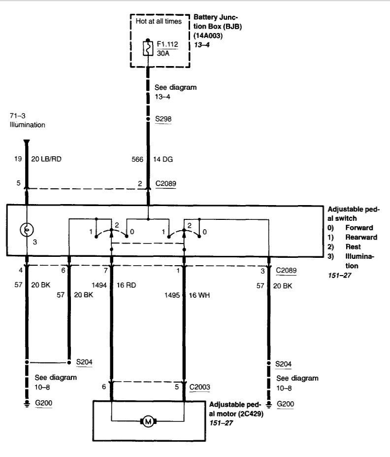
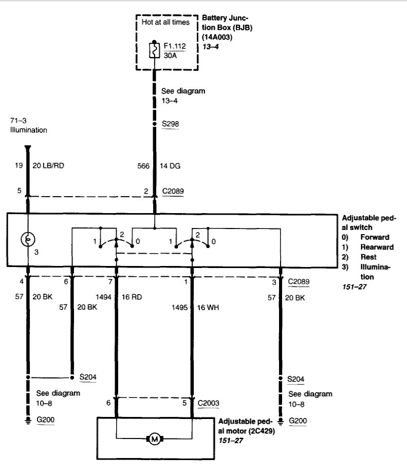
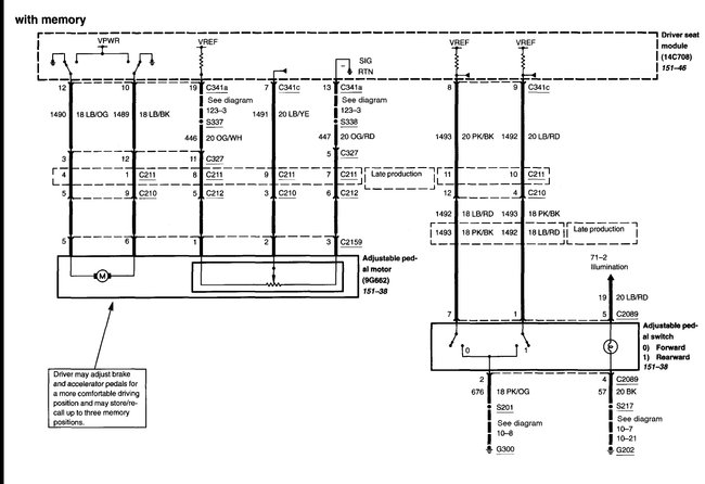
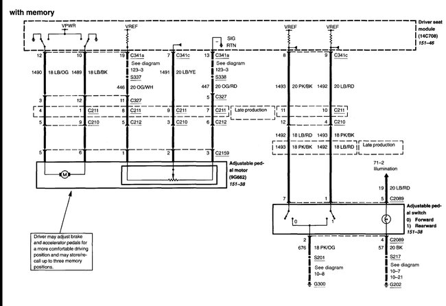
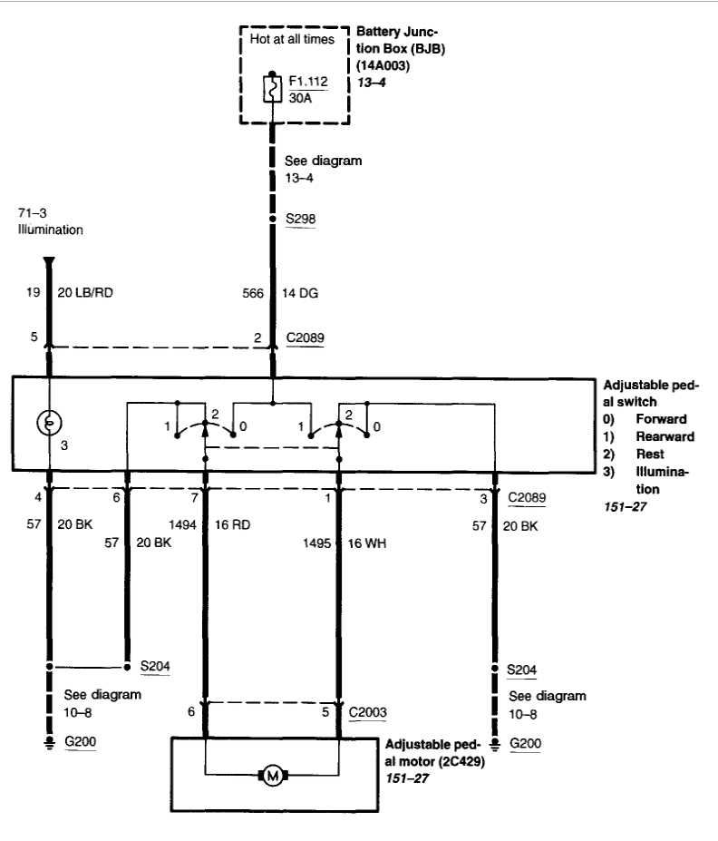
I have found some diagrams to help you see whats going on and hopefully replace the unit. (Below)

Please let us know what happens.

Cheers, Ken
Was this
answer
helpful?
Yes
No
Friday, October 27th, 2017 AT 1:38 PM

Please login or register to post a reply.