A/C Controls wiring diagram

Tiny
LWBEASLEY4
  • MEMBER
  • 2018 RAM 1500
  • 3.0L
  • V6
  • TURBO
  • 4WD
  • AUTOMATIC
  • 47,000 MILES
I have been looking for a wiring diagram or a pinout for the A/C Controls. I have the 7 speed manual A/C.

Just a little bit of background, I am trying to install a Tesla style screen for a Ram into my Silverado.

Thanks for any help.
Sunday, August 9th, 2020 AT 6:54 AM

1 Reply

Tiny
KASEKENNY
  • MECHANIC
  • 18,907 POSTS
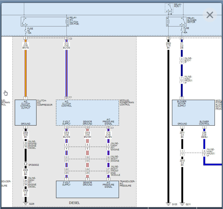
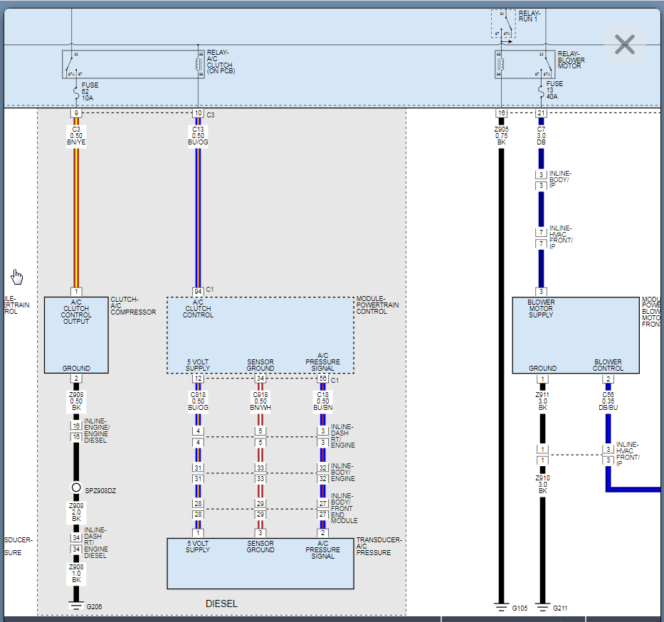
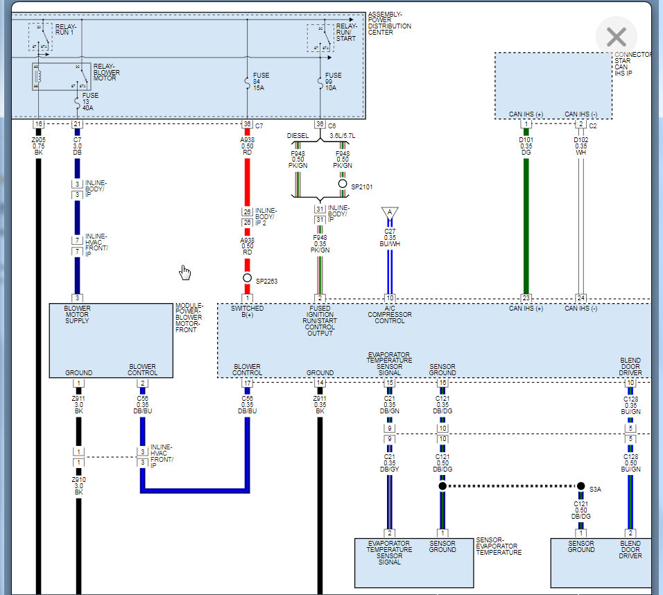
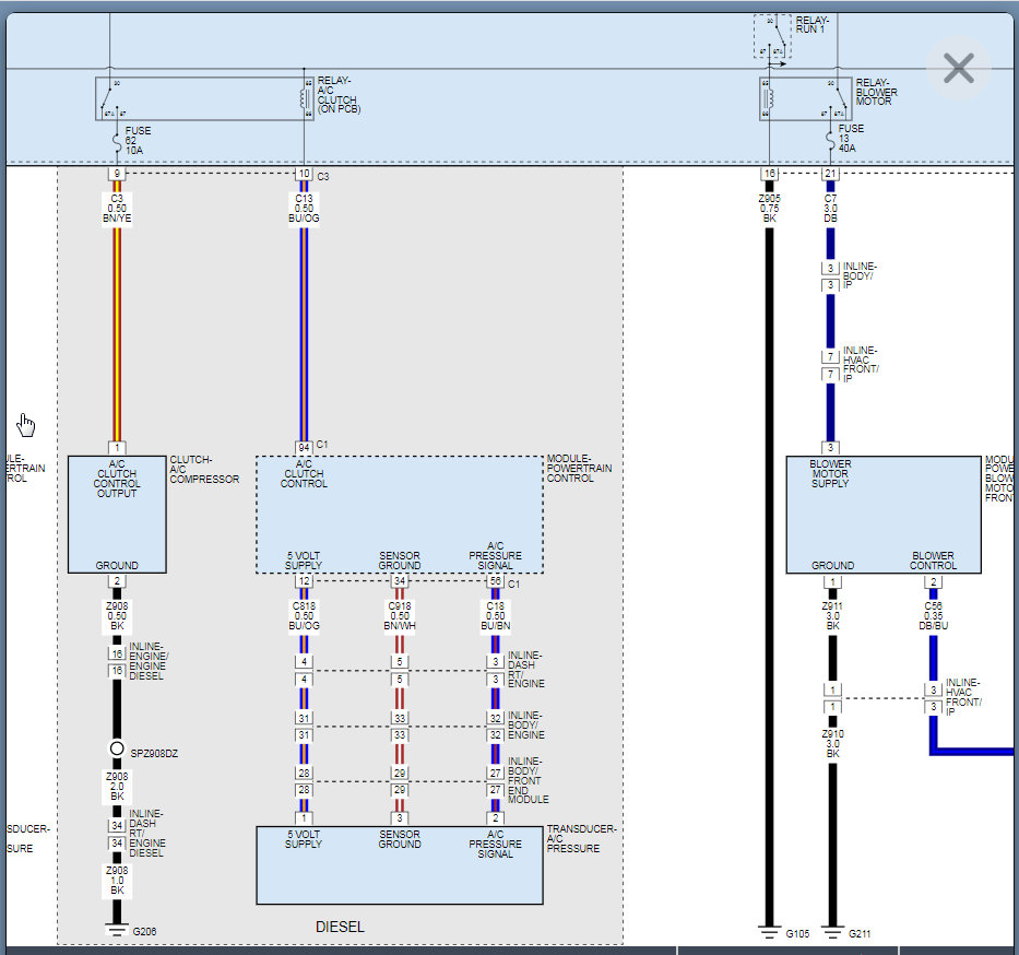
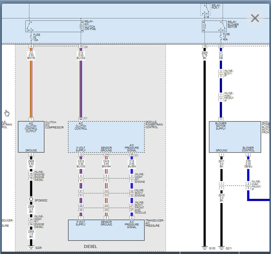
I attached the wiring diagram for the complete system.

Just to understand, you are trying to install the A/C module from a Ram into a Chevrolet?

If so, I am not confident that will work because the electrical architecture is different between the vehicles. That means it is like they speak different languages. The Ram communicates different input sensors to the HVAC module and PCM via the CAN bus system and the Chevy does as well but they do not have the same sensors nor do they use the exact same voltage signals. So one voltage means something to the Ram and the same signal means something different to the Chevrolet.

If you already have the parts, it is worth a shot but you may get it fully installed and it not work so this would be the reason why.

Let me know how you make out because I am curious if it works. Thanks
Was this
answer
helpful?
Yes
No
Sunday, August 9th, 2020 AT 7:30 AM

Please login or register to post a reply.