A/C clutch stays engaged

Tiny
GLYNB356
  • MEMBER
  • 2000 NISSAN FRONTIER
  • 3.3L
  • 6 CYL
  • 2WD
  • MANUAL
  • 150,000 MILES
A/C clutch engaged all the time. I have replaced expansion valve, dryer, Freon. On off A/C switch in passenger compartment does not light up. If I disconnect the pressure switch on dryer clutch stops.
VIN number 1N6ED27T3YC400020.
Thursday, May 3rd, 2018 AT 7:19 AM

40 Replies

Tiny
ASEMASTER6371
  • MECHANIC
  • 52,796 POSTS
Good afternoon.

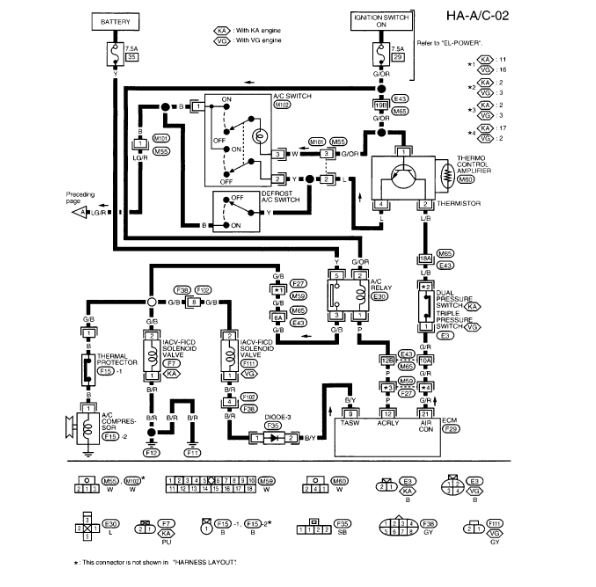
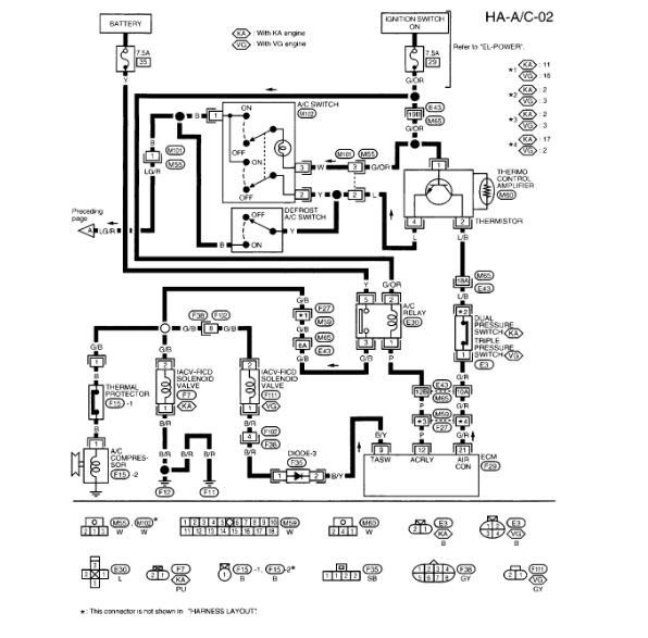
I attached a diagram for you of the A/C controls.

From the looks of it, the climate control head is commanding the compressor on all the time. It sends a signal to the ECM to turn on and when you turn off the A/C, the signal is still being sent.

That is why it disconnects when you remove the wires from the low pressure switch.

From all indication you may have a bad control head.

Roy
Was this
answer
helpful?
Yes
No
-1
Thursday, May 3rd, 2018 AT 3:47 PM
Tiny
GLYNB356
  • MEMBER
  • 9 POSTS
I will get one tomorrow and let you know the results.
Was this
answer
helpful?
Yes
No
Friday, May 4th, 2018 AT 4:42 PM
Tiny
ASEMASTER6371
  • MECHANIC
  • 52,796 POSTS
Keep us updated.

Roy
Was this
answer
helpful?
Yes
No
Friday, May 4th, 2018 AT 4:43 PM
Tiny
GLYNB356
  • MEMBER
  • 9 POSTS
Roy, before I get a command center let me say that the compressor clutch would stay engaged all the time. Even when the pressure should have made it turn off. I have replaced; compressor, dryer, expansion valve.
Was this
answer
helpful?
Yes
No
+2
Saturday, May 5th, 2018 AT 5:55 AM
Tiny
ASEMASTER6371
  • MECHANIC
  • 52,796 POSTS
Okay, do you mean if you have less than 20 lbs of pressure on the low side, the compressor is still engaged?

Roy
Was this
answer
helpful?
Yes
No
-2
Saturday, May 5th, 2018 AT 6:06 AM
Tiny
GLYNB356
  • MEMBER
  • 9 POSTS
Yes sir, clutch stays on. Pressure is not cycling 35 low 150 and up on high.
Could this be a problem with the control center?
Was this
answer
helpful?
Yes
No
+1
Sunday, May 6th, 2018 AT 7:07 PM
Tiny
ASEMASTER6371
  • MECHANIC
  • 52,796 POSTS
At 35, the clutch will stay engaged. It has to drop below 20 to disengage the clutch.

Roy
Was this
answer
helpful?
Yes
No
Monday, May 7th, 2018 AT 2:47 AM
Tiny
GLYNB356
  • MEMBER
  • 9 POSTS
Okay, Let me start over, I have had my vehicle to shops. Not a whole lot was resolved. It appears I have a ground problem, that was the answer from the A/C shop. The electrical auto guy says it is a thermostatic meter. Let me just reiterate, I did find a wire crossed at pressure switch to make the compressor run 100% of the time (fixed) The compressor, pressure switch, expansion valve, dryer have all been replaced, system has been evacuated, flushed, but the pressure is running to high on the high side. The cycling time is not right.
My understanding is the signaling for it to go from high to low cycling is not right. Can someone tell me a common reason for this? Might add the relay has been checked and it shows that if you ground it the compressor kicks on when its not on. Maybe this is a clue.
Signed, in over his head.
Was this
answer
helpful?
Yes
No
+1
Wednesday, May 16th, 2018 AT 12:14 PM
Tiny
ASEMASTER6371
  • MECHANIC
  • 52,796 POSTS
Okay.

Lets start with the pressures.

Can you give me the high and low side pressures while the engine is running and I need the outside temperature as well?

Roy
Was this
answer
helpful?
Yes
No
Wednesday, May 16th, 2018 AT 12:22 PM
Tiny
GLYNB356
  • MEMBER
  • 9 POSTS
Eighty degrees outside (Texas). Low 35 are so, high going up to 250.
Was this
answer
helpful?
Yes
No
Wednesday, May 16th, 2018 AT 3:27 PM
Tiny
ASEMASTER6371
  • MECHANIC
  • 52,796 POSTS
Okay, spray some water on the condenser and see what happens.

The high side is too high.

It should be around 175 with the ambient temperature.

Roy
Was this
answer
helpful?
Yes
No
-2
Wednesday, May 16th, 2018 AT 3:40 PM
Tiny
GLYNB356
  • MEMBER
  • 9 POSTS
Okay, So I took my vehicle to a couple of hack shops, The A/C shop told me I had a ground problem so he sent me to a auto electric shop. The guy at the electric shop tried to convince me to run a ground from the relay so the compressor would stay on (all the time), not knowing I knew better.
So he diverted to it is the thermostic reader on the EVAP. Nope I replaced that. Needless to say he charged $40.00 for what I already knew. A/C blows cold air but will not cycle properly. Help!
Was this
answer
helpful?
Yes
No
+1
Saturday, May 19th, 2018 AT 2:07 PM
Tiny
ASEMASTER6371
  • MECHANIC
  • 52,796 POSTS
I suggested some testing in my last response.

Any results? It will help me help you if you can give the information that I suggested.

Roy
Was this
answer
helpful?
Yes
No
+2
Saturday, May 19th, 2018 AT 2:09 PM
Tiny
JATKINSON
  • MEMBER
  • 5 POSTS
I have this exact issue haunting me right now. If you can name it, I have changed it. Compressor, condenser, evaporator, expansion valve, dryer, triple pressure switch, relays, thermal control amp, control head and even swapped the ECU! Something on my car is telling something the A/C should be running. I even get both fans running too! I have spent hours and hours pouring over wiring diagrams trying to find out where this thing is getting a ground to close the AC relay. I have shot all wires in this system to the ECU and I have nothing grounding out. I have a work around in mind. It is a thirty degree old school mechanical switch stuffed onto the EVAP core, a relay and a master kill switch for winter use. GLYN, if you get any further along, please post it here. My air is nice and cold, has the right amount of PAG and refrigerant, but when the car starts, I can hear the clutch engaging with the system turned off. Very weird!
Was this
answer
helpful?
Yes
No
Wednesday, June 27th, 2018 AT 11:02 PM
Tiny
KEN L
  • MASTER CERTIFIED MECHANIC
  • 55,302 POSTS
That is a good one, I have the wiring diagrams here and I am looking over as well, you can confirm that when you remove the ground (pink wire) from the ECU the compressor turns off? Pink wire grounding th relay. Please confirm this so we can continue.

Here are the wiring diagrams so we can be on the same page.

Please report back

Cheers, Ken
Was this
answer
helpful?
Yes
No
-1
Thursday, June 28th, 2018 AT 7:51 PM
Tiny
JATKINSON
  • MEMBER
  • 5 POSTS
That is the first good idea I have heard yet! I will remove that signal wire from the ECU from the relay tomorrow and report back my findings. If this shuts off the compressor, then we at least know which direction to look. Thank you.
Was this
answer
helpful?
Yes
No
Thursday, June 28th, 2018 AT 8:19 PM
Tiny
KEN L
  • MASTER CERTIFIED MECHANIC
  • 55,302 POSTS
Yes, trial and error we will find the problem.
Was this
answer
helpful?
Yes
No
+1
Friday, June 29th, 2018 AT 1:50 PM
Tiny
JATKINSON
  • MEMBER
  • 5 POSTS
Ken, I removed the signal wire running from the relay back to the ECU. Compressor clutch disengaged and both rad fans stopped running. I was talking with the guy at O'reillys. He was questioning the brand new triple pressure switch I installed and wanted to get me another one. Sure, he is not the one that has to reclaim, vacuum and recharge 134a. :-/
Back into the wiring diagrams I go.
Was this
answer
helpful?
Yes
No
Saturday, June 30th, 2018 AT 12:19 AM
Tiny
KEN L
  • MASTER CERTIFIED MECHANIC
  • 55,302 POSTS
Can you test the AC switch to make sure the signal is being cut when the switch is off? If the switch is stuck on this will cause the problem.
Was this
answer
helpful?
Yes
No
+1
Saturday, June 30th, 2018 AT 11:51 AM
Tiny
JATKINSON
  • MEMBER
  • 5 POSTS
I will do you one better Ken. I swapped out the complete control head with another today and same deal. I am really starting to give the new pressure switch the stink eye. I have a spare stock Nissan one and I am going to try that next. Seems to me right after I rebuilt the entire AC system, I had rapid clutch cycling. So it was then I bought a new pressure switch and that was when I discovered I could never shut the silly thing off. O'Reillys said I probably got a faulty switch from them. Needless to say, I am not going to try another new one. Who knows, maybe the new ones are not wired correctly? And I have no desire to figure it out either. Lol
Was this
answer
helpful?
Yes
No
Thursday, July 19th, 2018 AT 6:56 PM

Please login or register to post a reply.