Stuck in four wheel drive

Tiny
STAN SALLEE
  • MEMBER
  • 2001 MITSUBISHI MONTERO
  • 3.5L
  • 6 CYL
  • 4WD
  • MANUAL
  • 145,000 MILES
Stuck in four wheel drive. CD light is on and has an alarm going off. When in neutral, alarm goes off but CD light stays on.
Friday, June 1st, 2018 AT 7:52 PM

4 Replies

Tiny
KEN L
  • MASTER CERTIFIED MECHANIC
  • 55,538 POSTS
Can I ask if this is push button 4WD or manual shift?
Was this
answer
helpful?
Yes
No
+1
Monday, June 4th, 2018 AT 11:29 AM
Tiny
STEVE W.
  • MECHANIC
  • 15,704 POSTS
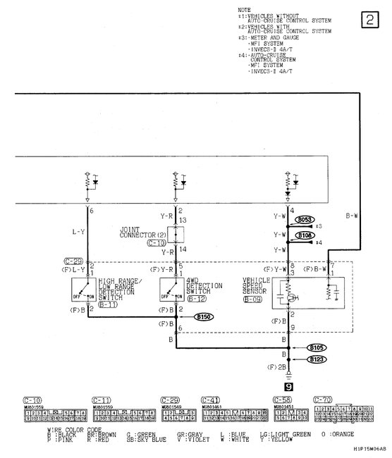
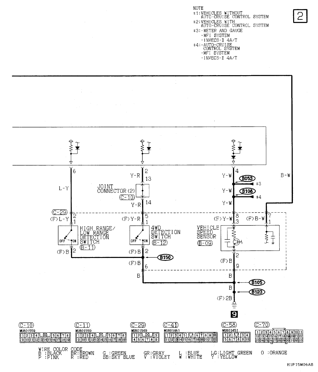
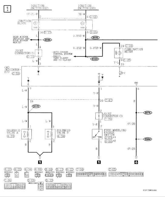
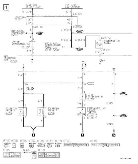
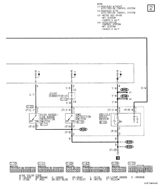
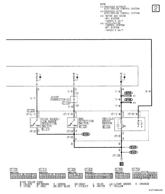
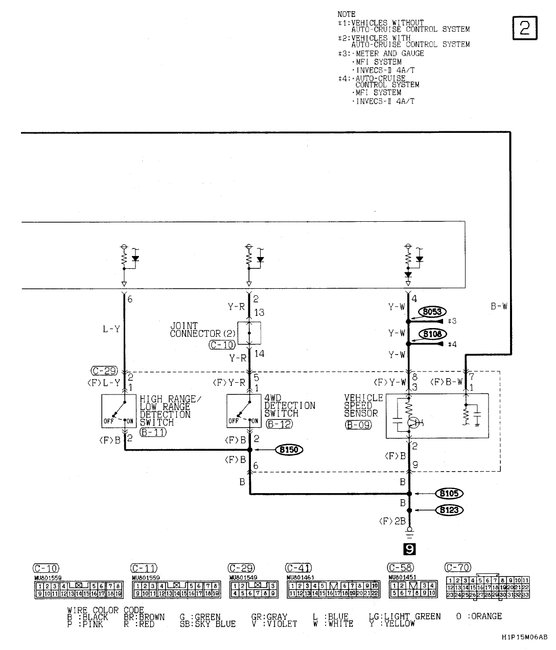
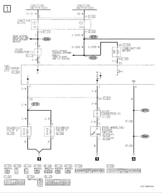
If you manually shift in/out of 4X4 does the driveline actually go into out of 4X4? Or is it actually in 4wd the entire time? If it does actually shift then I would look for either a damaged switch in the transfer case or damaged wiring to them. It could also be a failed control module (hidden behind the panel in the passenger side footwell).

A scan tool would likely pull the codes in the system and narrow it down faster because of the way that system works, as it also uses the speed sensors and trans controller as well, but as it is only the center diff light I would look for a switch/wire failure first.
They are all on the top of the case but reachable.
Was this
answer
helpful?
Yes
No
+1
Monday, June 4th, 2018 AT 11:53 AM
Tiny
STAN SALLEE
  • MEMBER
  • 3 POSTS
It is a manual shift to four wheel drive
In four wheel drive continuously, will not come out of four wheel drive. Thank you!
Was this
answer
helpful?
Yes
No
Tuesday, June 5th, 2018 AT 4:04 AM
Tiny
STEVE W.
  • MECHANIC
  • 15,704 POSTS
There is a TSB on this case getting stuck in 4 HI. Mitsubishi TSB-01-23-002.

To see if this applies you need to remove the shifter and check the position of the internal pieces. This can be done from inside the vehicle.
Remove the Tcase shift knob, then the center console. Then the shift boot bracket (picture 1) Next you remove the four bolts that hold the shift to the case (picture 2).
Now you can remove the shifter and see the actual shift rail extensions. (Picture 3)
The "normal" positions for both the H/L and two wheel drive/four wheel drive forks is forward for two whee drive high.
If the forks are not in that position use a screwdriver or brass punch to move them into that position.
If you notice in the picture there is a spring that pushes the shifter over into the 2/4 shift fork. If it is broken it can cause this. The shift lug itself could be broken as well. The lug is pinned to the shifter, If it has broken it may be possible to remove the pin and replace the lug without completely disassembling the case, but I have never tried it and the rebuild information in the book says nothing about it, just that you need to pull the case apart for access.

If none of the above applies it could be a bad shift fork (46 in last picture) or a damaged gear inside the case. The only way to know for sure for those requires the case be removed and split to access the fork and shaft as it is in the rear of the case. The last three pictures are the instructions given in the book.
The assembly is the reverse but you replace the seals, gaskets and add sealant where required. It is not a real complicated case but most of the hard parts are dealer/salvage only.
Was this
answer
helpful?
Yes
No
+5
Tuesday, June 5th, 2018 AT 5:29 AM

Please login or register to post a reply.