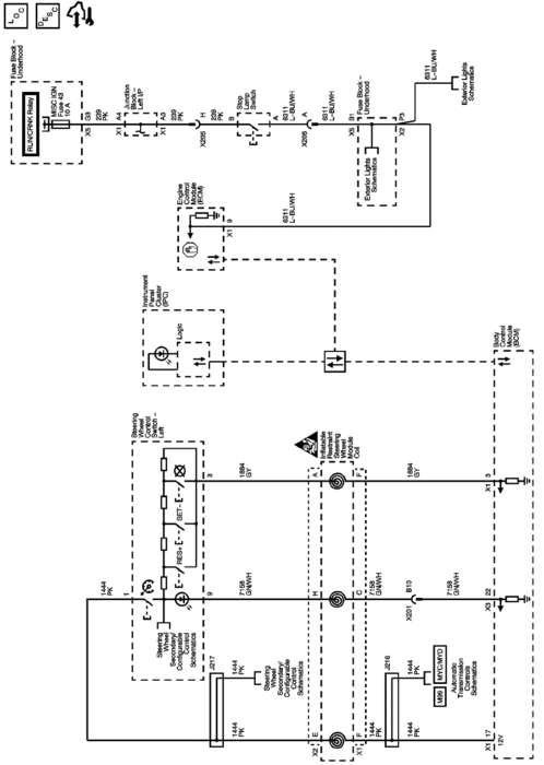
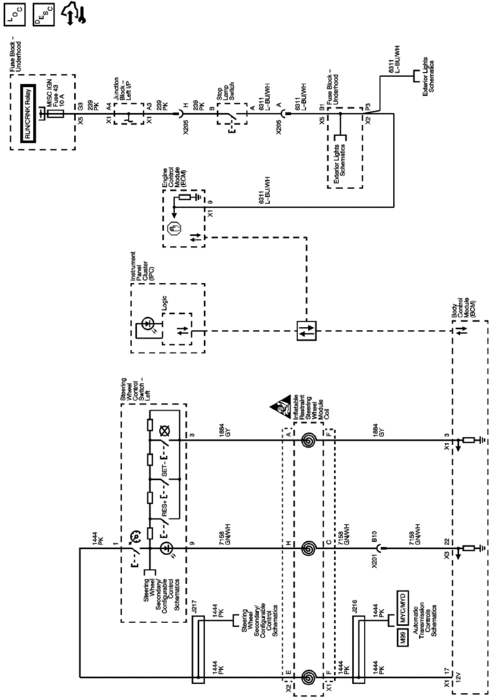
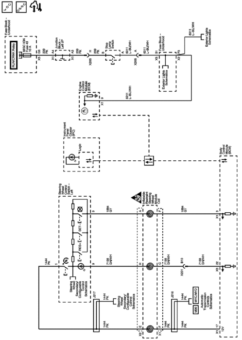
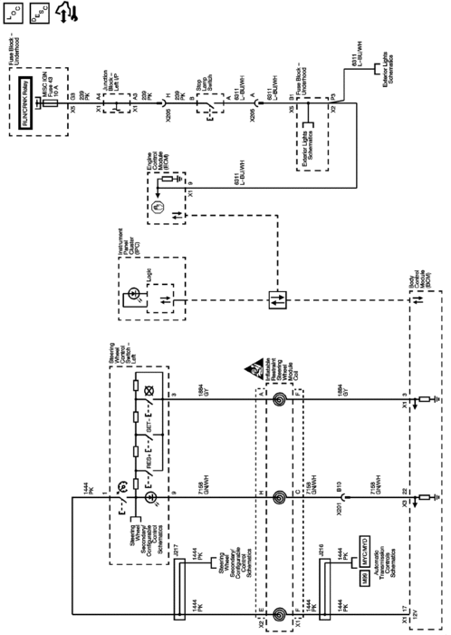
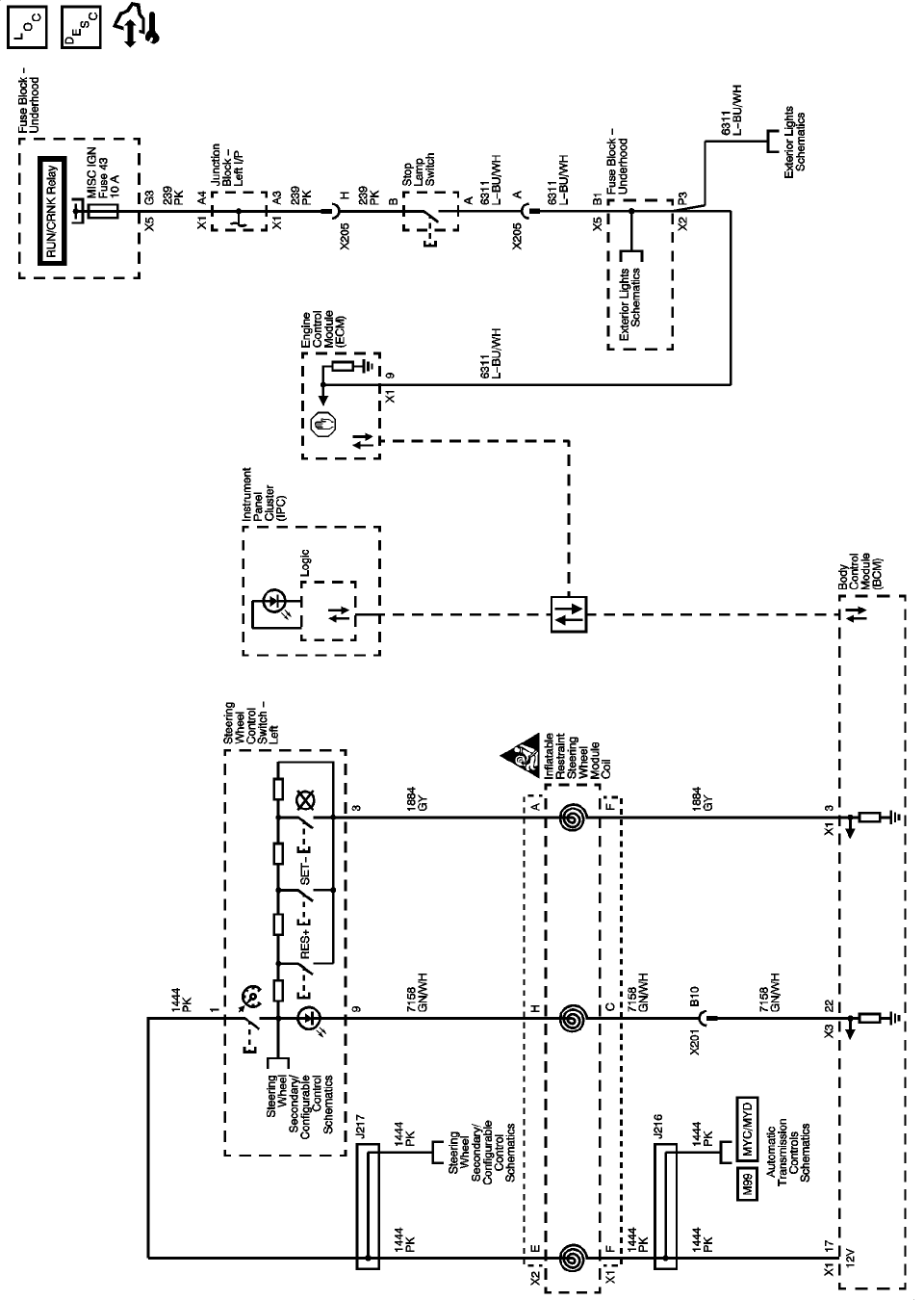
i have tried different speeds, moved the pedals backward and forward. And checked that brake lights are working when the pedal is pressed.
checked teh fuses under the hood, but couold not find none to do with cruise control.I have read so many posts about cruise control, most relate this to a faulty brake switch on the brake pedal.
my questions :
1- how can I check if the brake pedal switch is faulty or not giving that brake lights are working OK?
2- what fuses and where to check?
3- is there any mechanical parts that can be checked(if the previous owner have removed for some reason)?
many thanks
Akram
Tuesday, January 1st, 2013 AT 4:58 AM


