Monday, November 10th, 2014 AT 3:10 PM
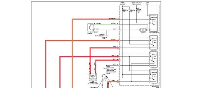
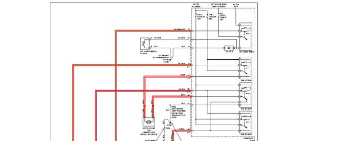
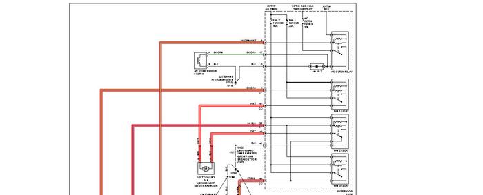
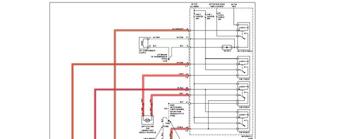
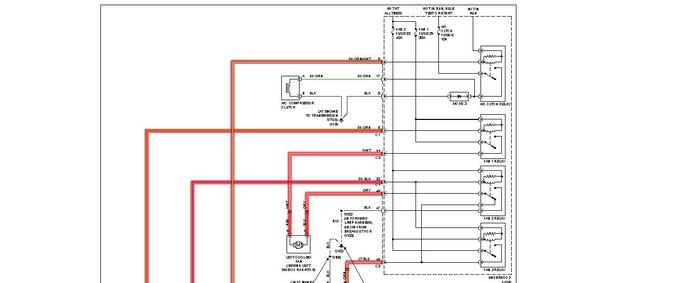
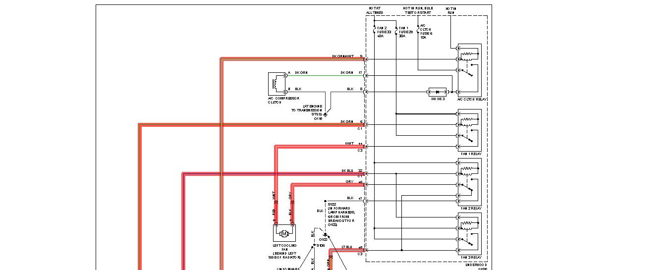
My vans cooling fan is constantly running. Is there any specific way to test the relay to see if they are bad. There are two fans that constantly run.



