Engine oil change and filter

Tiny
JEFFJ
  • MEMBER
  • 2008 CHEVROLET CORVETTE
  • V8
  • 2WD
  • MANUAL
  • 11,000 MILES
How do I change the engine oil and filter in a 2008 z06 chevy corvette?
Monday, May 16th, 2011 AT 2:43 PM

12 Replies

Tiny
MMPRINCE4000
  • MECHANIC
  • 8,548 POSTS
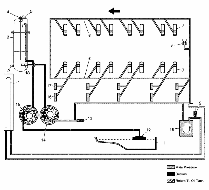
The LS7 (and LS9) has a "dry sump" oil system, like a racing engine.

It has a seperate tank for oil, which is pumped to engine. Dry sumps are used to prevent oil starvation on hard turns.

Honestly, I would have dealer do it, the remote tank must be drained, filter removed. If not done correctly you could risk oil starvation.

The LS7 and LS9 are very impressive engines, they would probably require a synthetic and capacity on the LS7 is 8 quarts. Check out the diagrams (Below). Please let us know what happens.
Was this
answer
helpful?
Yes
No
Monday, May 16th, 2011 AT 4:34 PM
Tiny
MMPRINCE4000
  • MECHANIC
  • 8,548 POSTS
Lubrication system
Was this
answer
helpful?
Yes
No
Monday, May 16th, 2011 AT 4:35 PM
Tiny
JEFFJ
  • MEMBER
  • 36 POSTS
Are there 2 different oil drain plugs on this car? Do you know where they are located? I presume one is on the pan near the filter. Where is the other one?
Was this
answer
helpful?
Yes
No
-1
Monday, May 16th, 2011 AT 5:27 PM
Tiny
MMPRINCE4000
  • MECHANIC
  • 8,548 POSTS
It does have 2 plugs.

Here is procedure:

Engine Oil and Oil Filter Replacement
Removal Procedure
Open the hood.
Remove the oil fill cap.
Raise the vehicle. Refer to Lifting and Jacking the Vehicle.
Fig. 272: Locating Both Oil Pan Drain Plugs
Courtesy of GENERAL MOTORS CORP.
Remove both oil pan drain plugs.
Drain the engine oil into an appropriate container.
Fig. 273: View Of Engine Oil Filter At Engine Block
Courtesy of GENERAL MOTORS CORP.
Remove the engine oil filter from the engine block.
Installation Procedure
Fig. 274: View Of Engine Oil Filter At Engine Block
Courtesy of GENERAL MOTORS CORP.
IMPORTANT:Before installing the new oil filter, ensure that the old oil filter gasket has been removed. If not, remove the old gasket.

NOTE:Refer to Fastener Notice.

Install the oil filter to the engine block.
Tighten: Tighten the engine oil filter to 30 N.M (22 lb ft).
Fig. 275: Locating Both Oil Pan Drain Plugs
Courtesy of GENERAL MOTORS CORP.
Install both oil pan drain plugs.
Tighten: Tighten the oil pan drain plugs to 25 N.M (18 lb ft).
Lower the vehicle.
IMPORTANT:DO NOT use any engine oil additives in Corvette engines.

Add 8 quarts of oil to the dry sump tank.
Check the oil level.
Install the oil fill cap.
Close the hood.
Reset the engine oil life monitor. Refer to GM Oil Life System Resetting.
Was this
answer
helpful?
Yes
No
+2
Tuesday, May 17th, 2011 AT 12:49 PM
Tiny
FRANCOKJV4
  • MEMBER
  • 3 POSTS
  • 2002 CHEVROLET CORVETTE
  • V8
  • 2WD
  • AUTOMATIC
  • 54,000 MILES
Upon changing my oil, on a 2002 corvette the bottom of the oil pan said, check service manual for proper draining. Is there an improper way to drain the oil?
Was this
answer
helpful?
Yes
No
Monday, November 30th, 2020 AT 5:00 PM (Merged)
Tiny
JACOBANDNICKOLAS
  • MECHANIC
  • 110,194 POSTS
Hi:
Changing the oil on this vehicle is straight forward. The only recommendation I can give you is this. Drain the oil until it stops coming out. At that point, lift the rear of the vehicle about 8 to 10 inches from the ground to drain any excess that is in the pan. The pan on the vehicle is flat and some oil can remain in it. As far as the rest of the oil change, it is straight forward. Make sure the o-ring gasket from the old filter doesn't stick to the engine block when you remove it. Place a thin film of oil on the o-ring on the new filter and make sure the filter and drain plug are clean and tight. Check for leaks when finished. If I recall, the 5.7L holds 6.5 quarts of oil. Start with 6, start the engine, and then recheck and fill if needed. Also, make sure to use the proper weight and type of oil. I know it requires synthetic oil and I believe it uses 5W30.

A NOTE: I always crack open the doors and trunk when lifting a corvette to avoid cracking any of the fiberglass.
Was this
answer
helpful?
Yes
No
Monday, November 30th, 2020 AT 5:00 PM (Merged)
Tiny
Z06VETTE
  • MEMBER
  • 1 POST
  • 2001 CHEVROLET CORVETTE
  • V8
  • 2WD
  • MANUAL
  • 29,500 MILES
What supplies (low profile jack/ramps) are best to change oil in corvette
Was this
answer
helpful?
Yes
No
Monday, November 30th, 2020 AT 5:00 PM (Merged)
Tiny
LOUT5369
  • MECHANIC
  • 217 POSTS
I have 2 vettes a 77 & a 78 and I have never been able to put them on ramps, The spoilers hit the ramp before the tire does, You are gonna have to jack it up. Sorry
Was this
answer
helpful?
Yes
No
Monday, November 30th, 2020 AT 5:00 PM (Merged)
Tiny
CHARLES ADAMS
  • MEMBER
  • 1 POST
  • CHEVROLET CORVETTE
My wife took our Corvette for an oil change not realizing that it needed synthetic oil. Now that it has regular oil in it, can I change back to synthetic oil without damaging the engine?
Was this
answer
helpful?
Yes
No
Monday, November 30th, 2020 AT 5:01 PM (Merged)
Tiny
RUDPRO
  • MECHANIC
  • 224 POSTS
Yes you can change back to synthetic without hurting the engine. Synthetic oil gives better protection, that's why they want you to use it.
Was this
answer
helpful?
Yes
No
+1
Monday, November 30th, 2020 AT 5:01 PM (Merged)
Tiny
P.R.
  • MEMBER
  • 2 POSTS
Changing back to synthetic oil should not be a problem in a vette. The real reason synthetic oil is used is for cooling. As far as I know, and I'm not an expert on this, you can use regular oil if you install an oil cooler. But as to where on a vette. I have NO idea.
Was this
answer
helpful?
Yes
No
Monday, November 30th, 2020 AT 5:01 PM (Merged)
Tiny
CORVETTE4+3
  • MEMBER
  • 22 POSTS
Corvette4+3wrote.
[quote]my corvette mech told me using synthetic oil is good it's thinner and costly vs 10/30 which is cheaper and work just as good dosen't effect my high speeds so don't get alarm what ever works best for you.
Was this
answer
helpful?
Yes
No
Monday, November 30th, 2020 AT 5:01 PM (Merged)

Please login or register to post a reply.