Radio not working

Tiny
THE007FLYGUY
  • MEMBER
  • 2002 TOYOTA 4RUNNER
  • 4 CYL
  • 2WD
  • AUTOMATIC
I have a 2002 corolla and it has a cd button and in the manual it says it has a multiple fuses?
Monday, January 17th, 2011 AT 7:30 AM

14 Replies

Tiny
MHPAUTOS
  • MECHANIC
  • 31,937 POSTS
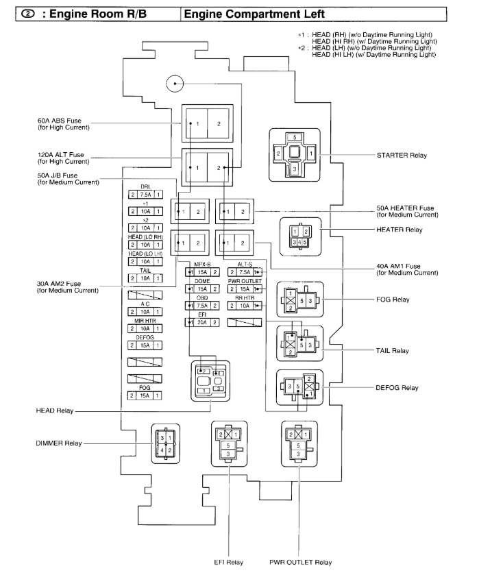
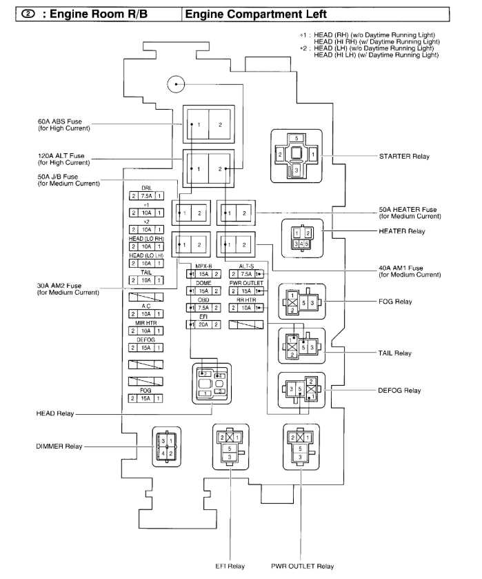
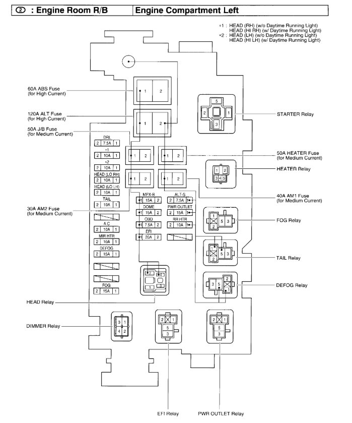
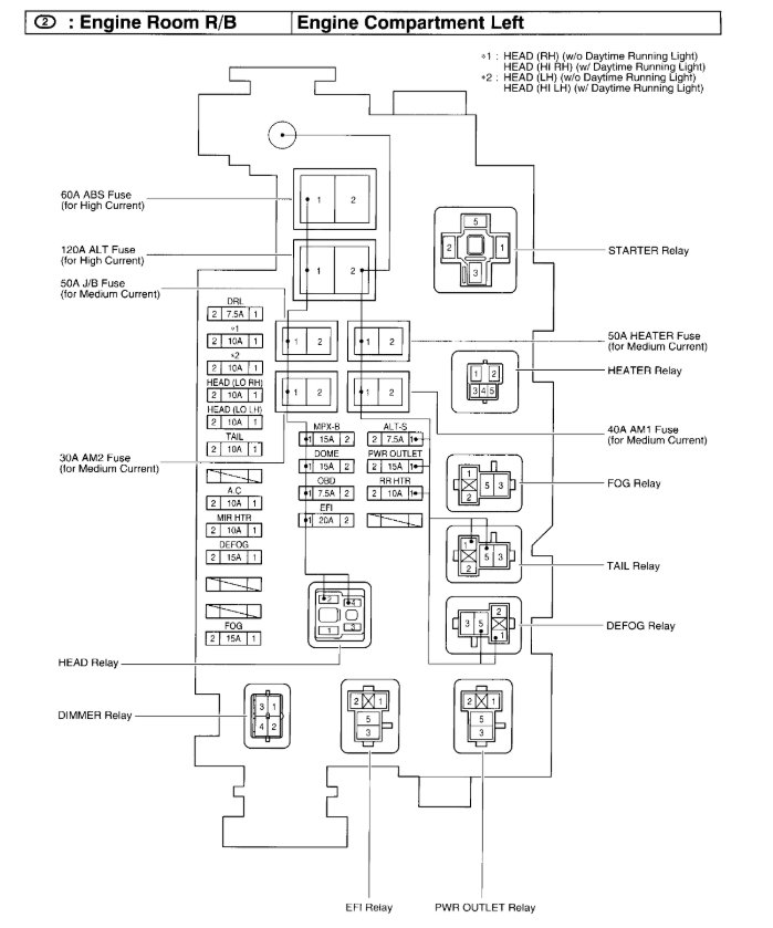
Yes here is a guide top help you test the fuse and the fuse location in the diagrams below.

https://www.2carpros.com/articles/how-to-check-a-car-fuse

Check out the diagrams (Below). Please let us know what you find. We are interested to see what it is.
Was this
answer
helpful?
Yes
No
-1
Tuesday, June 2nd, 2020 AT 12:26 PM
Tiny
IGGYPOP19
  • MEMBER
  • 1 POST
  • TOYOTA 4RUNNER
Right after I put a DC/AC converter into a cigarette lighter, my radio and clock went dead (radio does not turn on), as well as other cigarett lighter adapter that was powering my GPS. No juice there.
I'm suspecting a fuse, but cant' figure out where it is, I looked in the fuse box under the hood but they are not labeled.

Thank you for your help.

IG
Was this
answer
helpful?
Yes
No
+1
Monday, June 8th, 2020 AT 5:47 PM (Merged)
Tiny
RASMATAZ
  • MECHANIC
  • 75,992 POSTS
? Model/Yr you probably burn the wire behind it or blew the fuse.
Was this
answer
helpful?
Yes
No
Monday, June 8th, 2020 AT 5:47 PM (Merged)
Tiny
JOE43591
  • MEMBER
  • 2 POSTS
  • 2002 TOYOTA 4RUNNER
  • 4 CYL
  • 2WD
  • AUTOMATIC
  • 68,000 MILES
While driving the radio stopped working. I can not find the fuse so I am unable to tell if the radio is getting power. I am not sure if the radio is bad or I have a blown fuse. I have checked both fuse boxes and all fuses are good but none state they are for the radio. All other system work, just the radio is not working. Can you tell me where the fuse is and how to check to see if there is elec power going to the radio.
Was this
answer
helpful?
Yes
No
+1
Monday, June 8th, 2020 AT 5:47 PM (Merged)
Tiny
RASMATAZ
  • MECHANIC
  • 75,992 POSTS
Check the dome and Acc fuse 15amp if okay check the ground brown wire for continuity between the left kick panel and radio housing
Was this
answer
helpful?
Yes
No
Monday, June 8th, 2020 AT 5:47 PM (Merged)
Tiny
MOLTERLA
  • MEMBER
  • 1 POST
  • 1999 TOYOTA 4RUNNER
  • 6 CYL
  • 4WD
  • AUTOMATIC
  • 110,000 MILES
My car stereo froze up and would not let me change the station, am/fm, cd, or adjust the volume, yet it was still playing the radio station it froze on. After turning off the car the sound stopped but the LCD screen on the radio remained on even after removing the key.

We have disconnected the battery which shut off the radios LCD display and the reconnected the battery and restarted the car. No the radio will not come on at all. We have checked all the fuses and they aren't blown. All of the surrounding things in the dash work. Like the cigarette lighters but the stereo will not turn on.

I am completely confused as to why it would work and then now not work. Maybe the stereo is just shot. I am just wondering if there are any other possibilities that could cause this.

Thanks
Was this
answer
helpful?
Yes
No
Monday, June 8th, 2020 AT 5:48 PM (Merged)
Tiny
ZACKMAN
  • MECHANIC
  • 4,202 POSTS
Sorry, no other possibility. The radio has internal faults. Just replace it with an aftermarket unit.
Was this
answer
helpful?
Yes
No
Monday, June 8th, 2020 AT 5:48 PM (Merged)
Tiny
BIGTEX1
  • MEMBER
  • 3 POSTS
  • 1999 TOYOTA 4RUNNER
  • 6 CYL
  • 2WD
  • AUTOMATIC
  • 168,000 MILES
I have checked the fuses under hood and drivers side all seem fine
Was this
answer
helpful?
Yes
No
Monday, June 8th, 2020 AT 5:48 PM (Merged)
Tiny
CARADIODOC
  • MECHANIC
  • 34,468 POSTS
There's also a red 10-amp fuse plugged into the back of the radio.

Wiring diagram attached below
Was this
answer
helpful?
Yes
No
+8
Monday, June 8th, 2020 AT 5:48 PM (Merged)
Tiny
BIGTEX1
  • MEMBER
  • 3 POSTS
If this fuse is bad will it affect the power antennae as well?
Was this
answer
helpful?
Yes
No
+6
Monday, June 8th, 2020 AT 5:48 PM (Merged)
Tiny
CARADIODOC
  • MECHANIC
  • 34,468 POSTS
It's possible and likely. Depending on the specific radio model, when the 12 volt memory circuit is dead, some radios will be totally dead. Some will appear to tune and work but will only have no sound. Some models will work perfectly fine until you turn the ignition switch off and back on. Then the clock will go back to 10:00 or 12:00 and the station presets will go back to the factory defaults. If the radio is dead, so will be the things it operates. That is the power antenna and / or a remote amplifier.
Was this
answer
helpful?
Yes
No
+5
Monday, June 8th, 2020 AT 5:48 PM (Merged)
Tiny
BIGTEX1
  • MEMBER
  • 3 POSTS
Will I have to remove radio to replace fuse or is it possible to replace in place?
Was this
answer
helpful?
Yes
No
+6
Monday, June 8th, 2020 AT 5:48 PM (Merged)
Tiny
CARADIODOC
  • MECHANIC
  • 34,468 POSTS
That 10-amp fuse is on the back of the radio next to the plug. You have to pull the radio to get to it.
Was this
answer
helpful?
Yes
No
+5
Monday, June 8th, 2020 AT 5:48 PM (Merged)
Tiny
KSMITTY3489
  • MEMBER
  • 0 POST
Found the fuse! It was blown, replaced it and my stereo works again. Thank You soooo much
Was this
answer
helpful?
Yes
No
+4
Monday, June 8th, 2020 AT 5:48 PM (Merged)

Please login or register to post a reply.