Radio diagram needed

Tiny
CHIGGENBOTHAM420
  • MEMBER
  • 2001 CHEVROLET BLAZER
  • 4.3L
  • 6 CYL
  • 4WD
  • AUTOMATIC
  • 126,000 MILES
I need a diagram of the wires from the radio. I put a new radio in and I do not know about couple wires and my dash lights are not working. Plus the antenna is not working to. Then my four wheel drive light came on too.
Monday, November 30th, 2015 AT 10:22 PM

7 Replies

Tiny
HMAC300
  • MECHANIC
  • 48,601 POSTS
What radio do you have with or without amp. They do sell adapters so everything will work as well.
Was this
answer
helpful?
Yes
No
Tuesday, December 1st, 2015 AT 10:33 AM
Tiny
CHIGGENBOTHAM420
  • MEMBER
  • 2 POSTS
It was the radio came with the Blazer. I put a Pioneer in the Blazer. Also, I have no dash lights either.
Was this
answer
helpful?
Yes
No
Tuesday, December 1st, 2015 AT 3:53 PM
Tiny
HI HOW ARE YA
  • MEMBER
  • 3 POSTS
My friend has a 2001 Chevrolet Blazer with the exact same problems. No dash lights, no speedometer gauge moving. Does anyone have the stereo wire color diagram? Possible even the amp diagram. Also, what is going on with the dash lights? Why did they stop working an how can I fix it? Thank you very much in advance!
Was this
answer
helpful?
Yes
No
+2
Sunday, May 6th, 2018 AT 2:22 AM
Tiny
HI HOW ARE YA
  • MEMBER
  • 3 POSTS
Also, I have a dual Bluetooth Walmart radio partially installed.
Was this
answer
helpful?
Yes
No
Sunday, May 6th, 2018 AT 2:23 AM
Tiny
STEVE W.
  • MECHANIC
  • 15,691 POSTS
Welcome to modern vehicles. The Blazer uses the radio for more than just sound. It also stores security and memory information for other modules one being the dash, specifically the odometer/speedometer. When the ignition it turned on the CAN system queries each system that is VIN number tied and looks for a response. No response = some modules do not work. For the dash lights check fuse number 12 in the fuse panel in the dash.

There are specific adapters that will plug into the OEM harness to overcome this issue on most vehicles. The old method of cutting off the plugs and wiring direct does not work because most of the units use the CAN system to talk.
You mention having an amp? If this is the up-level unit you will not be able to use the factory amp as it uses a low level input signal from the OEM dash unit. Feeding it from a speaker level input will kill it almost instantly. The volume, balance/fade controls for the amp are also in the head unit. The lamp dimmer also is different. The head unit gets a full power feed and the dash controller sends a different signal to control the stereo. Those pass through on the CAN lines which your new unit cannot do.

Which head unit did you have? There are multiple wiring diagrams depending on the unit and you do not want to use the wrong one.
Was this
answer
helpful?
Yes
No
Sunday, May 6th, 2018 AT 6:52 AM
Tiny
HI HOW ARE YA
  • MEMBER
  • 3 POSTS
XDM16BT dual electronics from Walmart. This is not my vehicle, I am attempting to fix the last persons handy work. (Looks like they went scissor happy). When I checked the fuse for the dash lights an it is not blown (still going to replace it), then it would be an issue behind the stereo, correct? I just cannot figure out how to get them on an keep them working the correct way. Thank you for any an all help!
Was this
answer
helpful?
Yes
No
Sunday, May 6th, 2018 AT 7:17 AM
Tiny
STEVE W.
  • MECHANIC
  • 15,691 POSTS
Check that the dimmer switch for the dash works and that if you turn on the parking lights they work as the dash light power is tied to the marker/parking lights. If you lose the markers you lose the dash.
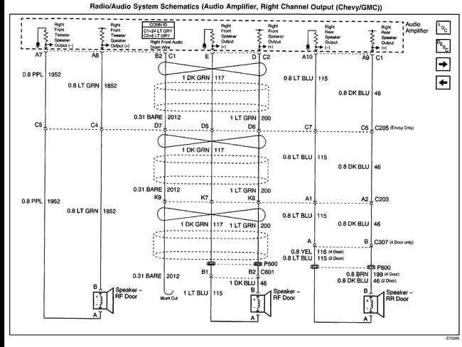
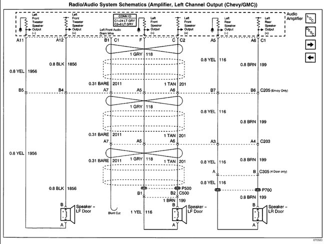
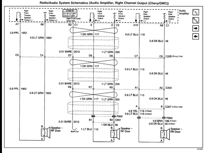
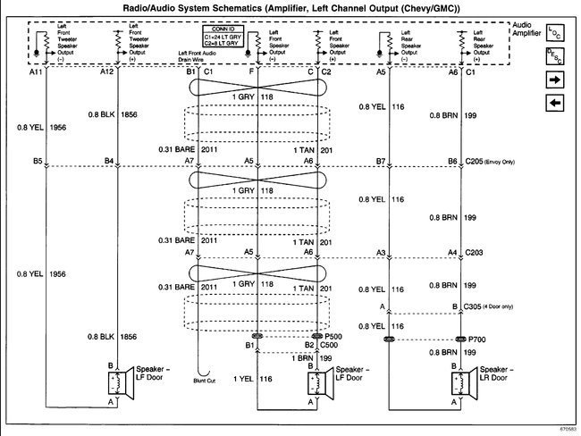
These are the power and grounds. Plus the amp wiring. I would probably just pull the amp and wire directly to the speakers to eliminate a bunch of mess. Oh, if you did not know the amp is under the console.

This is one of the fun things with modern vehicles. A common thing to do with GM's is to extend the factory wiring harness and stash the OEM unit under the dash or seat with one small speaker connected (chimes and warning beeps also come through the radio). Then install the replacement using just power/ground/speakers.
Was this
answer
helpful?
Yes
No
+1
Sunday, May 6th, 2018 AT 8:52 AM

Please login or register to post a reply.