Where is the location of the fuel pump driver module

Tiny
RW15F
  • MEMBER
  • 1999 MERCURY COUGAR
  • 175,000 MILES
Im trying to locate the fuel pump driver module in my car. Ive troublshot the whole fuel system except for this module. I checked where it should be on the 2000 model but no luck. Ive also tried calling ford but they dont know either.
Wednesday, June 13th, 2012 AT 6:19 PM

6 Replies

Tiny
KEN L
  • MASTER CERTIFIED MECHANIC
  • 55,361 POSTS
Hello,

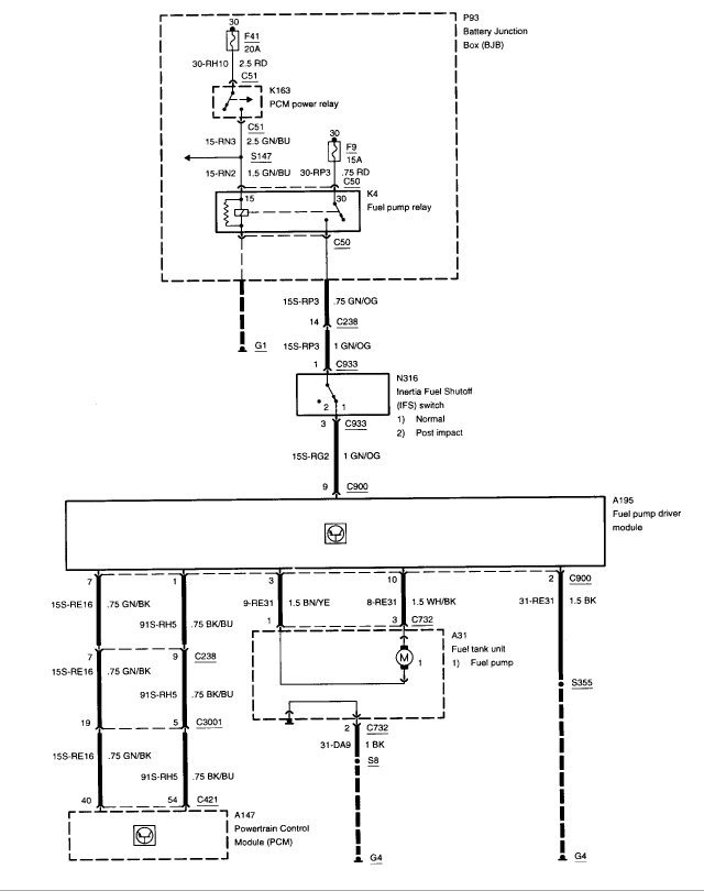
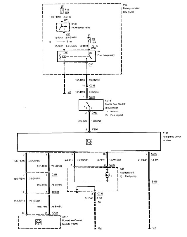
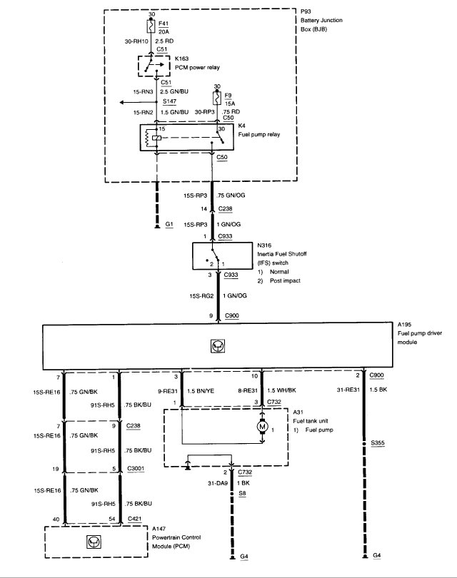
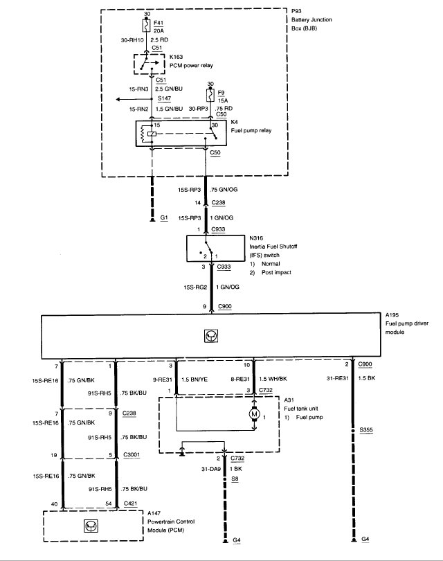
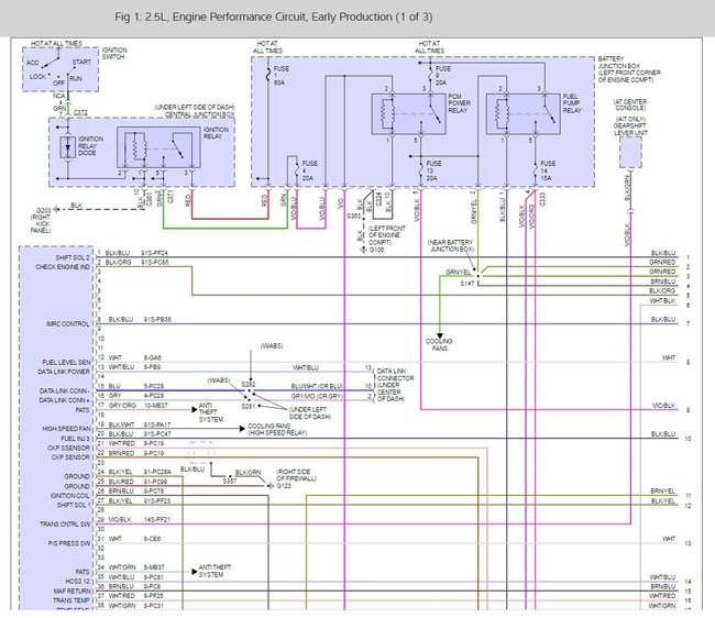
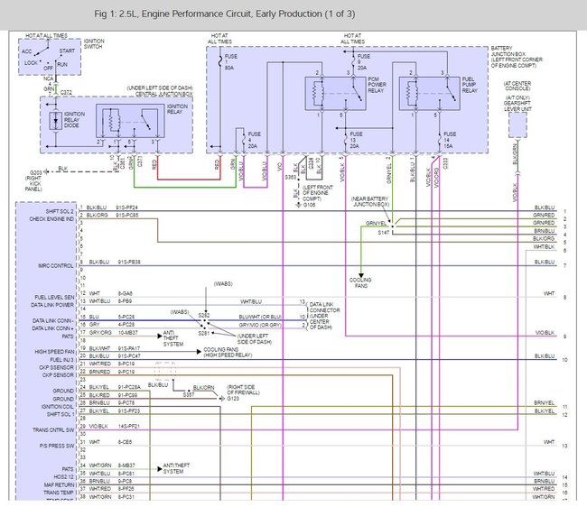
There is no fuel pump driving module just a relay here is a wiring diagram (BELOW) and a guide to help you test it.

https://www.2carpros.com/articles/how-to-check-an-electrical-relay-and-wiring-control-circuit

Please run this test and get back to us so we can continue helping you.

Cheers, Ken
Was this
answer
helpful?
Yes
No
Friday, May 26th, 2017 AT 9:48 PM
Tiny
BRUCE1000
  • MEMBER
  • 1 POST
  • 2000 MERCURY COUGAR
  • 6 CYL
  • 2WD
  • AUTOMATIC
  • 86,000 MILES
Engine Performance problem
2000 Mercury Cougar 6 cyl Two Wheel Drive Automatic 86000 miles

WHERE IS THE FUEL PUMP LOCATED. OR THE RELAY SWITCH
Was this
answer
helpful?
Yes
No
Friday, May 26th, 2017 AT 9:49 PM (Merged)
Tiny
BLUELIGHTNIN6
  • MECHANIC
  • 16,542 POSTS
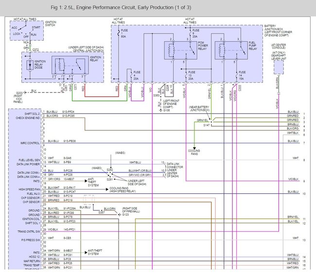
Fuel pump itself is in the fuel tank. Fuel pump relay is at left front corner of engine compartment, in the battery junction box. Also check the fuses and the fuel cut off (inertia) switch, located behind the left kick panel.
Was this
answer
helpful?
Yes
No
+2
Friday, May 26th, 2017 AT 9:49 PM (Merged)
Tiny
FLOPPYTAKE2
  • MEMBER
  • 1 POST
  • 1991 MERCURY COUGAR
  • 6 CYL
  • 2WD
  • AUTOMATIC
  • 40,500 MILES
Electrical problem
1991 Mercury Cougar 6 cyl Two Wheel Drive Automatic 40500 miles

In my trunk is located the fuel pump shut off switch, along with a red reset button. There is a ticking sound coming from the reset button and it is depressed as in I can not push it down to reset the system. Now the manual says I can have other mechanical problems. Could this be as simple as replacing the switch? The ticking is killing my battery at which if the car sits for hours it needs to be jumped. Once jumped it starts and runs perfectly, no odd idling or rpm jumps. The fuel pump was replaced at 15000 miles per service records, although I just bought the vehicle a few days ago.
Was this
answer
helpful?
Yes
No
+1
Friday, May 26th, 2017 AT 9:49 PM (Merged)
Tiny
JAMES W.
  • MECHANIC
  • 2,394 POSTS
Try pulling up on the red buttom. This switch is the "enertia switch" that's supposed to shut the fuel pump off in the event of a crash. If you can't pull up on the red button, try removing the fuel pump relay to see if the clicking stops. If it stops and starts clicking again when you plug the relay back in, replace the relay.
Was this
answer
helpful?
Yes
No
-1
Friday, May 26th, 2017 AT 9:49 PM (Merged)
Tiny
WRENCHTECH
  • MECHANIC
  • 20,761 POSTS
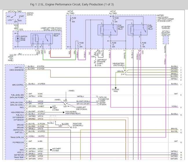
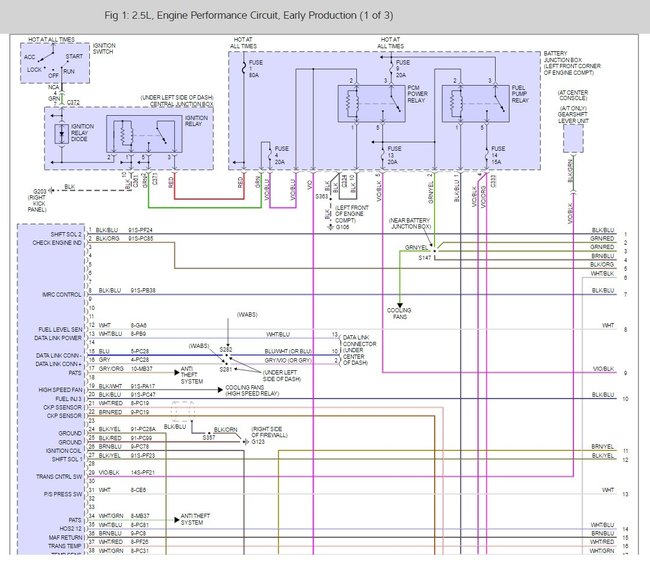
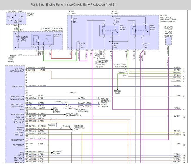
The wiring diagram supplied only applies to vehicle built before May 24, 1999. If it was built after that date, it does indeed have a Fuel Pump Driver module in addition to the relay, but that was only used for a couple months in that model year. You can tell which system you have by checking for a fuel rail pressure sensor. If it has one, it also has a FPDM. I suspect yours does not.
Was this
answer
helpful?
Yes
No
+4
Saturday, May 27th, 2017 AT 5:46 AM

Please login or register to post a reply.