HOME
ASK A QUESTION
REPAIR GUIDES
BECOME A MEMBER
LOG IN
Login with Facebook
OR
Remember me
NOT A MEMBER?
FORGOT PASSWORD?
CONTACT US
PRIVACY POLICY
TERMS AND CONDITIONS
☰
Home
Dodge
Intrepid
Engine
Symptoms
Not Cranking Over
The starter does not engage right away when I turn the key
MCOZZENS65
MEMBER
1998 DODGE INTREPID
188,000 MILES
Sometimes it takes more than one or two turns of the key for it to engage, but the starter is not dragging
Monday, April 16th, 2012 AT 4:25 PM
2 Replies
FIXITMR
MECHANIC
9,990 POSTS
Sounds like possible ignition switch issue or a bad connection somewhere in circuit? Also possible starter is going out?
Was this
answer
helpful?
Yes
No
-1
Monday, April 16th, 2012 AT 6:14 PM
FIXITMR
MECHANIC
9,990 POSTS
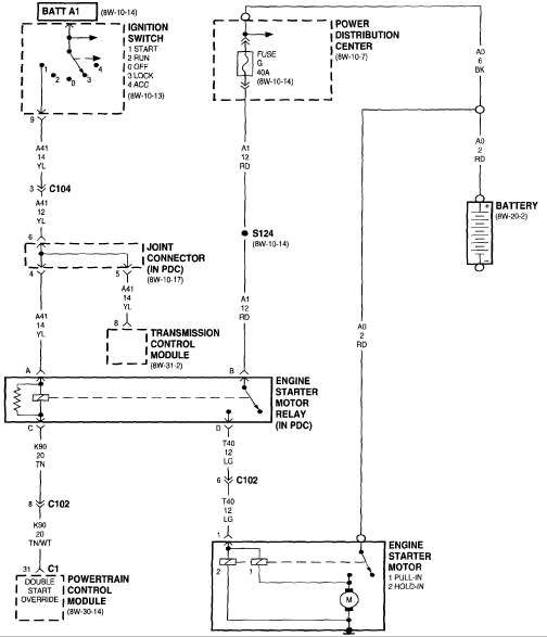
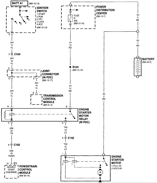
Here's a diagram of circuits. You have a relay in the PDC that may be failing.
Image (Click to make bigger)
Was this
answer
helpful?
Yes
No
Monday, April 16th, 2012 AT 6:29 PM
Please
login
or
register
to post a reply.
Related Engine Not Cranking Over Content
1998 Dodge Intrepid Engine Won't Crank
My Mom's 1998 Dodge Intrepid Won't Always Turnover. It Happens Randomly, Wet, Dry, Hot Cold, Etc. When She Turns The Ignition The...
Asked by
wnowickiz1
·
3 ANSWERS
1998
DODGE INTREPID
VIDEO
Car Not Cranking? Try This | EASY
Instructional repair video
GUIDE
Starter Not Working
This guide is designed to help you identify whether the issue with your non-working starter motor is due to an electrical problem or a fault within the starter motor itself...
1998 Dodge Intrepid Mom Wants It Fixed (wont Crank Or...
Well The Car Had A Problem Before It Would Just Start When It Felt Like It Then The Battery Died Changed Battery And Now When I Try To Start...
Asked by
evanlaplante
·
9 ANSWERS
1998
DODGE INTREPID
2001 Dodge Intrepid Clicking When Trying To Start.
Electrical Problem 2001 Dodge Intrepid 4 Cyl Front Wheel Drive Automatic My Son Stopped At A Red Light And The Car Died. When He...
Asked by
burrisrwsl
·
1 ANSWER
2001
DODGE INTREPID
2000 Dodge Intrepid Engine Won't Crank (or Start)
Engine Won't Crank Or Start. When I Remove The Ignition Relay, In The Power Control Box Under The Hood, And Jump From The Power In...
Asked by
mjdcwo
·
5 ANSWERS
2000
DODGE INTREPID
2000 Dodge Intrepid Turning Over But Will Not Crank
Electrical Problem 2000 Dodge Intrepid 6 Cyl Front Wheel Drive Automatic 2000 Dodge Intrepid 2.7 Engine. Will Not Crank But Turning...
Asked by
Charles Harris
·
1 ANSWER
2000
DODGE INTREPID
VIEW MORE
Ask a Car Question. It's Free!
Car Not Cranking? Try This | EASY
Battery Replacement Ford
Battery Replacement Saturn