Front disc pads

Tiny
PAPACAN
  • MEMBER
  • 1979 JEEP CJ7
  • V8
  • 4WD
  • AUTOMATIC
79' CJ7,304 w/power brakes, I cannot lock-up the brakes, the rear, brake shoes trys. Pads & shoes has about 2000 miles on the & the front pads seem like they are not making contact at all, no visable wear marks at all. I'm thinking master cyl. Or proportioning valve, but I don't know how to troubleshoot these items? Any help would be great and if I'm on the right track or not. I will be waiting! Also this is a great site, lots of info. Carl
Sunday, July 10th, 2011 AT 2:22 PM

17 Replies

Tiny
MHPAUTOS
  • MECHANIC
  • 31,937 POSTS
Ideally you need to get the brake pressures tested, more than likely a master cylinder problem, but this test will isolate the exact problem.
Was this
answer
helpful?
Yes
No
Sunday, July 10th, 2011 AT 2:47 PM
Tiny
CJ MEDEVAC
  • MECHANIC
  • 11,005 POSTS
Read this, maybe you will find something that will help

I seriously doubt your proportioning valve is the problem, unless you have messed with it

https://www.2carpros.com/questions/1999-ford-f-150-brakes--3

CJs are my thing, never had nothing else!.......Disease began in 1981....and has spread!

Keep me informed, I will help all I can......See other CJ5 & 7s I've assisted, here's one example, this feller tried hard!

https://www.2carpros.com/questions/1980-jeep-cj7-timingtuning-problem-with-a

The Medic
Was this
answer
helpful?
Yes
No
Sunday, July 10th, 2011 AT 5:58 PM
Tiny
PAPACAN
  • MEMBER
  • 8 POSTS
Thanks for the quick replys! In the interam I installed a new MC, bench bleed, instl'd, rebleed the system, no air. I did tighten up the rear drum brakes, they were loose, in the drive way it now locks up the rears but not the front but no lock up on pavement. Did not notice anything when I had the caliper off except the pads looked like they were glazzed over, should I have used sandpaper to break the glaze? Thinking of doing that today. I'm 70yrs old & disabled so if I don't get right back I'm working on it. Is there a way to check pressure, proportioning valve, myself? I feel better with "the medic" in my corner. Papacan
Was this
answer
helpful?
Yes
No
Monday, July 11th, 2011 AT 2:32 PM
Tiny
CJ MEDEVAC
  • MECHANIC
  • 11,005 POSTS
Well Sir,

Thanks a bunch!....I began answering here, just to help the CJs!

I will send you a message soon (Home-click on your name-look left-should find!)

I do have some info that you might want to see.

I have the '79 AMC Jeep Service Manual

Sorta didn't take care of it, I did not realize how valuable it was till I started needing it, years ago!

Now if you're gonna take it apart anyway...I suggest you invest in a set of, at Minimum, "MID GRADE" New pads....I do not know what you have now...At Autozone, Advance Auto, O'Riellys (The "Hot" Auto Parts Stores) $25-$30+ is what you want to spend, not "$15"!

I'm sorta going back and copying and pasting this next info!

This can be done on the vehicle (my preference) using two people, one pumping and one monitoring the Master Cylinder. I wrap string loops around the little hoses and tie a knot, as to keep the tubes from blowing off of the plastic adapters.

I take it one step further, by squeezing the little hoses with my fingers (as if I were a check valve) The VERY SLOW PUMPING OF THE PEDAL will push the fluid into the reservoir, BY MY PINCHING the lines (sometimes I force 'em against the Master Cylinder's edge with my finger), this will not allow it TO S.UCK AIR BACK, as you see IT S.UCKING back on him, in the beginning of this video....My way makes things faster, but if you did not tie the hoses to the adapters--THEY WILL BLOW LOOSE (lots of adjectives will be used!)

http://www.youtube.com/watch?v=i3Jhbz4mVKw&feature=related

IS THIS KINDA WHAT YOU DID?

This is the basic procedure I use:

KEEP FLUID IN THE RESERVOIR AT ALL TIMES/ CONSTANTLY CHECKING!

START WITH FURTHEST OUT WHEEL CYLINDER, FROM THE MASTER CYLINDER, WORKING TO THE CLOSEST (RR, LR, RF, LF)

2 PEOPLE, ONE PUMPING, OTHER BLEEDING AND REFILLING

1-MAN BREAKS BLEEDER LOOSE-SNUGS IT BACK YELLS, "PUMP IT UP"

2 MAN-PUMPS 6-8 TIMES (YELLS "PUMPING") THEN HOLDS PEDAL--YELLS, "HOLDING"

1-MAN CRACKS BLEEDER...AIR/ FLUID SPURTS OUT

2-MAN YELL, "FLOOR", JUST BEFORE THE PEDAL, ACTUALLY HITS THE FLOOR

1-MAN TIGHTENS THE BLEEDER....WHILE IT IS STILL SPURTING OUT (NOT AFTER IT STOPS...OR IT WILL SUCK AIR BACK IN).....THEN YELLS, "OKAY---PUMP IT UP"

PROCESS STARTS OVER UNTIL SATISFIED WITH THIS WHEEL

YOU SHOULD HAVE THE DRUM BRAKES ALREADY ADJUSTED, BEFORE YOU DO THE BLEEDING PROCEDURE.

I HAVE SEEN DUMMIES BREAK OPEN THE BLEEDERS AND JUST START PUMPING AWAY......NOT GOOD!

With the front wheels up (one at a time is fine), someone standing on the brake pedal, can you turn the wheels by hand????

Need to know where to get/ find stuff....I may can help

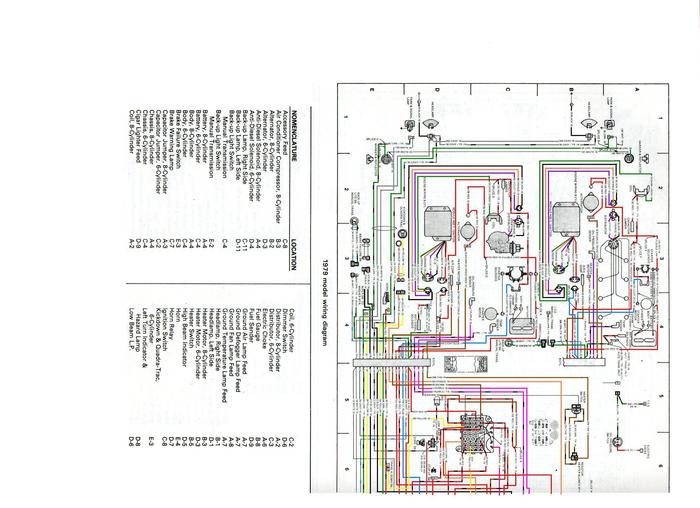
I've had 7 CJ's, #1 was a CJ5 w/304, #2 was a '79 w/ 258 (pic below, in 1983)

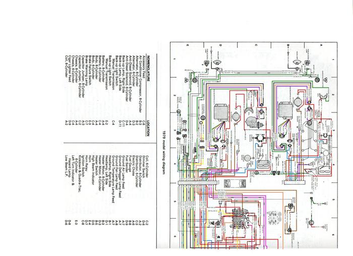
I also colored the '79 diagrams, as I got tired of being confused when things ran together, as multiple lines paralleled each other...questions? I coded some, as I ran out of colors

I'm going no where....I live for this sorta thing!

The Medic
Was this
answer
helpful?
Yes
No
Monday, July 11th, 2011 AT 3:31 PM
Tiny
PAPACAN
  • MEMBER
  • 8 POSTS
Nice dog are you still active duty! The bleeding was done right, steady stream on all corners. How about no sign of wear on the frt. Pads? Do you think someone put on some super metalick 2 million mile pads. I think I will try & break the glaze first. Will get back. Papacan ps only 1600 miles on frt. Pads
Was this
answer
helpful?
Yes
No
Monday, July 11th, 2011 AT 4:28 PM
Tiny
CJ MEDEVAC
  • MECHANIC
  • 11,005 POSTS
You get message, in messaging?

Go there, read, reply there, I will get you the info, everything they want us to know about the system!

Either Wheel turn, in the air, brakes applied?

Got out in '87, after I made the World Safe!

The Medic
Was this
answer
helpful?
Yes
No
Monday, July 11th, 2011 AT 7:02 PM
Tiny
PAPACAN
  • MEMBER
  • 8 POSTS
Welcome home! Could not find the message. PYI's I put new pads, middle priced ones on & seems a little better. Bench bleed m/c about 15 min. To get all the air out & rebleed again when I rebleed the system like the way you suggested, same way as before. My buddy said its about as good as a Jeep can be! I think it could be better. The only thing different on this bleeding I held the spool out on the proportioning valve per Hanyne's. I clicked on my name, but could not find where to check for message's? Papacan, recon 101st
Was this
answer
helpful?
Yes
No
Tuesday, July 12th, 2011 AT 12:57 PM
Tiny
CJ MEDEVAC
  • MECHANIC
  • 11,005 POSTS
Try again!

Top of this page

click on. Your own user name. Eagle Feller! Look for."Check your messages"

Maybe your page set-up is different than ours

To make you feel bad.I've had "Jarheads" find it with no problem!

You did say "Recon" didn't you? Use some of that training!

I did go back and look--I sent you message, for sure, it's in my sent box!

Here for you. Gave you an azimuth. Gotta find me now!

The Medic
Was this
answer
helpful?
Yes
No
Tuesday, July 12th, 2011 AT 1:37 PM
Tiny
PAPACAN
  • MEMBER
  • 8 POSTS
I did it or more correct we, the medic & I. I woke up in the middle of the night thinking I had 2 problems, air in lines & proportioning valve & I had noticed the, the day before 2 frt brake lines that seemed to long & went up in a high loop & back to cyl, as high as the 32" tires & a perfect place for a air bubble to hang around at hence the spongy pedal & then the PV not working right, hence the low volume in front. So the next AM with the help of my fishing pardner we dropped the frt lines, so the loop was on the bottem & I had read some where that to bleed the brakes with a PV, start with RR & THEN GO TO THE RIGHT FRONT! & Bleed it, this makes the PV think that there is a leak in the front & shifts to bloke off fronts hence the low volume in frt, then go to rear & bleed as normal. IT WORKS! I could see the big smile on my buddy's face as I slid past him standing in the my shop door, note the the driveway is hard dirt & gravel. The brakes are a 100% better but will not lock them up at hwy speed. My many Thanks for all the help & support of the members & the Medic, like they say, the Ranger's will always pull you out of trouble! Carl, [papacan]
Was this
answer
helpful?
Yes
No
Thursday, July 14th, 2011 AT 5:20 PM
Tiny
CJ MEDEVAC
  • MECHANIC
  • 11,005 POSTS
Big Guy, extra rubber hose (you know what I mean) also means, a place that can Expand in the system (sorta bulge a little, under pressure). Less "pushing" effectiveness!

So lets get the correct ones on there when you can!

Do you still want me to send the PV stuff to your Email? I can hopefully do it this evening, if you want it.

Did you get my "Too Many, Albums"?

The Medic
Was this
answer
helpful?
Yes
No
Thursday, July 14th, 2011 AT 11:14 PM
Tiny
PAPACAN
  • MEMBER
  • 8 POSTS
That would be nice as I am not really finished yet. I just don't want to put you out! You'v done so much already, maybe if you get a spare minute, HA, HA I cain't see you with a spare moment. The brakes are good now & I feel alot safer, how ever I'm thinking of maybe going to dual diaphragm its suppose to give a little more, still researching that. Thanks again to all! Ps This site is GREAT! I felt welcomed right from the start, no BS just friendly advice. Papacan
Was this
answer
helpful?
Yes
No
Friday, July 15th, 2011 AT 1:04 PM
Tiny
PAPACAN
  • MEMBER
  • 8 POSTS
Negative on the "Albums" papacan
Was this
answer
helpful?
Yes
No
Friday, July 15th, 2011 AT 1:09 PM
Tiny
CJ MEDEVAC
  • MECHANIC
  • 11,005 POSTS
OK--Scanner was-a-smokin/. That part done!

In a hurry now, will send when I return from $$$ Job. Many images, will take a while to attach them!

Say you "Did Not get" albums----or----"Don't want" my Modification albums?

The Medic
Was this
answer
helpful?
Yes
No
Friday, July 15th, 2011 AT 2:43 PM
Tiny
CJ MEDEVAC
  • MECHANIC
  • 11,005 POSTS
Oh yeah!

Walking out the door

Go back to "messages"---re-send Email Address.I did send albums before. Maybe address was wrong

The Medic
Was this
answer
helpful?
Yes
No
Friday, July 15th, 2011 AT 3:02 PM
Tiny
CJ MEDEVAC
  • MECHANIC
  • 11,005 POSTS
NO HEARY NOTHING FROM YOU!

3 E-MAILS SHOULD BE IN YOUR BOX

SUBJECTS: "101 ST"."SCREAMING"."EAGLES"TOTAL 19 ATTACHMENTS

WATCH MAIL AND SPAM

LOTS OF WALMART ALBUMS WILL ARRIVE. VIEW THEM, NO SPENDY MONEY IS NECESSARY. YOU WILL LIKEY, G.I!

MY BESTUS WAS THE CLUTCH LINKAGE MODIFICATIONS, CLOSE 2ND IS HEATER MODIFICATIONS

EACH ALBUMS PICS ARE IN AN ORDER--READ CAPTIONS TO KEEP UP WITH THE STORY

KEEP ME INFORMED AS TO WHAT'S GOING ON

THE MEDIC
Was this
answer
helpful?
Yes
No
Friday, July 15th, 2011 AT 7:09 PM
Tiny
PAPACAN
  • MEMBER
  • 8 POSTS
I received every thing! My special THANKS! To the Medic. I will continue to check in on this great site, who know's maybe I might be able to help some one out my self some day. Papacan
Was this
answer
helpful?
Yes
No
Monday, July 18th, 2011 AT 1:03 PM
Tiny
CJ MEDEVAC
  • MECHANIC
  • 11,005 POSTS
Keep in touch, Just add on right here!

I hope my mods help you, others who used my clutch bearing idea, love it. The second time we made 'em for my buddy, we moved the "bearing centers" on the pedal and on the bell-crank about a 1/4 of an inch towards the "pivot" (increasing leverage), this made the pedal a little EZer to push.

We were scared to move any closer 'cause we didn't know how much "Throwout Bearing travel would be lost.....1/4 inch definitively made it EZer than mine, but mine is still 5 times EZer than stock......and over a 5 year period, my system may have a "Few "Thousandths" of wear on the pivots....basically the Zinc Coating got discolored!........no more rods or bellcrank holes being "sawed" in half!

I meant to give you this too, I think it is a reproduction (might even be a smaller book than mine)....but still the very best CJ manual you can own.......I know that, and you probably do too!

https://www.2carpros.com/articles/mitchell1eautorepair-car-repair-manuals
The Medic
Was this
answer
helpful?
Yes
No
Monday, July 18th, 2011 AT 4:47 PM

Please login or register to post a reply.