Coil voltage

Tiny
LILMILLER_13
  • MEMBER
  • 1971 FORD MUSTANG
  • V8
  • 2WD
  • AUTOMATIC
I have a 1971 Mach 1 Fastback with a 351 Cleveland engine. I am having trouble with getting enough voltage to the coil. If I go straight from the positive terminal on the battery to the positive terminal on the coil, it starts and runs great. As soon as I take the jumper wire off, the car will shut off. Sometimes my tester shows 12 volts at the coil and sometimes it only shows 8 volts. Is a ground problem or wire problem? Or possibly something else?
Monday, May 23rd, 2011 AT 12:25 AM

6 Replies

Tiny
FIXITMR
  • MECHANIC
  • 9,990 POSTS
Does that coil have a resistor block in the hot circuit? Some coils are designed to start on 12 and then back down to 8.
Was this
answer
helpful?
Yes
No
-1
Monday, May 23rd, 2011 AT 12:28 AM
Tiny
CARADIODOC
  • MECHANIC
  • 34,491 POSTS
Hi guys. 'Scuse me for jumping in. This is going to have breaker points. The 8 volts is on the coil when the points are closed and the resistor is dropping 4 volts. When you turn the engine enough for the points to open, the full 12 volts will be measured at the coil.
Was this
answer
helpful?
Yes
No
Monday, May 23rd, 2011 AT 12:46 AM
Tiny
CJ MEDEVAC
  • MECHANIC
  • 11,005 POSTS
'Course Doc, what about getting a (Wrong) Coil with an "Internal Resistor"--and still be using the "Ballast Resistor" too. See this often with the CJs (even though, they are electronic ignition)

"I" Terminal on The CJ solenoid, gives you a full 12V (Battery voltage) while Cranking, then it dies when you release the key, and runs off of the Resistance Wire (reduced voltage)

WAITTTTTTTT!

After re-reading this, maybe you are not getting Voltage from the "Run Position" of your ignition switch.

If it were the coil being a problem, it would not run good straight from the battery!

Need help troubleshooting it? Can you use a voltmeter. Volts and Continuity? We are here to help!

I too have a "Points" Vehicle ('46 Willys Jeep), Keep on sending info, surely we can get this figured out.I can send pics of my set-up if you want.I built "Willy" nearly from scratch, and Wired him 100% (My Way) Using several wire diagrams from other years.

Lilmiller_13, any more info?

The Medic
Was this
answer
helpful?
Yes
No
+1
Monday, May 23rd, 2011 AT 1:23 AM
Tiny
LILMILLER_13
  • MEMBER
  • 2 POSTS
Thank you guys for all the insight. It turned out to be a bad coil. We didnt think this was possible becuase we had a new one that we put on not long ago.
Was this
answer
helpful?
Yes
No
+2
Wednesday, May 25th, 2011 AT 3:29 PM
Tiny
CJ MEDEVAC
  • MECHANIC
  • 11,005 POSTS
Wonderful!

As far as it is EZ to fix. Even though it may have blown you mind for a while!

Maybe you should be running a ballast resistor (if there is not one there already) What is your "Key On" Voltage to the positive side? Even though I'm not up to snuff on your vehicle, I feel sure it should be between 6-10 Volts while it's running on the positive side. Battery/ alternator voltage will probably work on your coil, points, and maybe condenser. Might keep some spares on hand if you don't have the resistor or a resistor wire to the coil.

Here's the common set-up and voltages out of the solenoid. Pay attention to "I" and how it works during start-up.

Pasting this info in:

"OLD FORD TYPE" SOLENOID SYSTEM, YOUR ACCES, MAY VARY (This was really intended for Jeep CJ People!)

1) POSITIVE CABLE FROM BATTERY

2) OUT TO STARTER MOTOR

3) ON MY JEEP, THIS GOES TO THE ALTERNATOR

4) THIS FEEDS MY FUSEBOX (ALL OF MY ACCESSORIES)

5) "S" WIRE IS FROM KEY, 12V ONLY WHILE YOU ARE "CRANKING"

THIS WIRE ACTIVATES THE SOLINOID'S ELECTROMAGNET, WHICH IN TURN, CONNECTS---A and B INTERNALLY (ONLY THE 2 LARGE GAUGE CABLES CAN HANDLE THE AMPERAGE THE STARTER "PULLS").

WHEN THE SOLENOID IS ACTIVATED, IT THROWS 12V TO STARTER USING THE LARGE GAUGE CABLES (1) POS FROM BATT--THRU SOLINOID INTERNAL CONNECTION--(2) TO THE STARTER, WHILE KEY IS IN "CRANKING" MODE.

THIS IS THE TOTAL REASON FOR A SOLENOID, BECAUSE IT WOULD NOT BE PRACTICAL, TO RUN THE HEAVY CABLES TO AND FROM YOUR KEY SWITCH.

6)"I" WIRE (OPTIONAL), FEEDS COIL "FULL 12V", ONLY WHILE "CRANKING", AFTER YOU RELEASE THE KEY, THE COIL REVERTS BACK TO REDUCED VOLTAGE, SUPPLIED BY YOUR KEY IN THE "RUN" POSITION.

7) "SOLENOID MOUNT" GROUND, UNIT MUST HAVE A GOOD GROUND (BATT. TO ENGINE, ENGINE TO FRAME, FRAME TO BODY [ALL MUST CONNECT, SOMEHOW] )

(3 and 4, ON MY JEEP) ARE FUSABLE LINKS, ALL ARE NOT MARKED, MY #3 IS, #4 IS NOT. ITS SORT OF A "WIRE" FUSE.

IF THEY ARE GOOD, TUGGING ON THEM WILL BE JUST LIKE A WIRE, WHEN THEY ARE "BURNED UP", THEY WILL STRETCH OUT LKE A RUBBER BAND.

If your SOLENOID is good---Just not getting a "Signal" from the Key--We can test that too! (Then you will know which direction to chase this problem)

"S" is the wire that activates the Solenoid----we can sorta cheat it!

Regardless what you do to cheat it, You are suppling 12 VOLTS to the "S"('s) terminal on the solenoid. This is momentary as if you are cranking with the key

STAY CLEAR OF MOVING PARTS!IN PARK--OR EMERGENCY BRAKE ON!

I prefer a "Remote Starter Switch"

A Jumper wire momentarily touched or a Screwdriver touching POS BATTERY or POS BATTERY CABLE to the "S" terminal will by-pass the wire from the key. As long as they are wired side by side, on the solenoid, if you do the screwdriver thing!

This will for sure let you know whether its a Solenoid problem or a Key ( ignition switch not delivering 12 Volts)

This will start your rig if your key is in the "ON" Position

IF YOU HAVE A CJ 5 OR CJ 7---YOUR WIRES SHOULD BE HOOKED UP, EXACTLY AS MINE ARE, IN THE PICS!

JEEP CJ GUYS!--If you changed your coil and did not get the one that says, "FOR USE WITH EXTERNAL RESISTOR ONLY". You NEED TO GET THAT ONE! You have just "DOUBLED" your resistance (w/ one with a internal resistor), and DO NOT HAVE ENOUGH VOLTS TO MAKE IT FIRE! (Your resistor is a "RESISTANCE WIRE" going to the coil already!)

UNPASTING!

My daughter learned to drive "Willy" at "8", very proficient at "10" when she spent the Summers with me. She insisted on taking her test in him at "16", In this pic she was practicing "hand-cranking" (He does have a starter). Passed the test. No seat-belts (1946, none OEM). When she was told to start up. You KNOW, what she did. Tester said he'd never experienced a test like this one! She's now 23, sorta her "Rental", while she's here. Her birthday is the hood numbers. She was my assistant at "2-3" when we resurrected him from nothing.

On the Willys under hood pic, the white ceramic thingee, on the firewall is my ballast resistor.

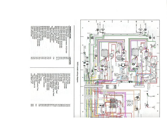
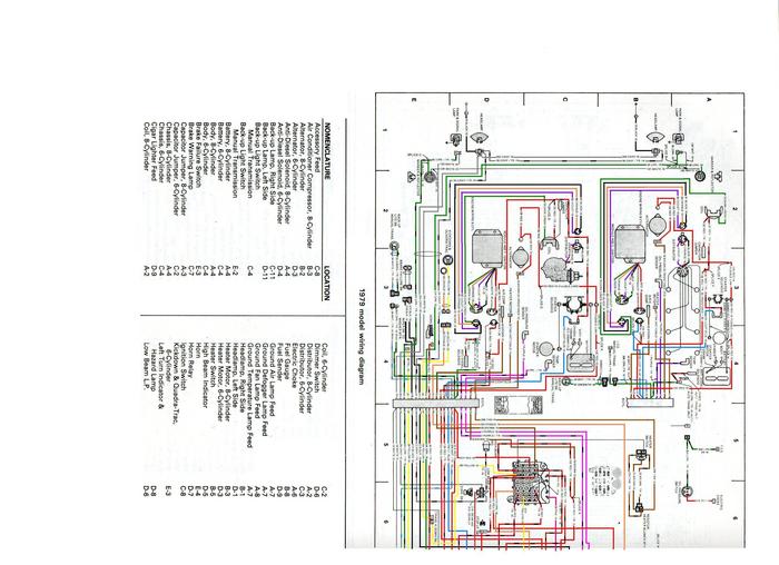
Also sending you a CJ wiring diagram, May have to blow it up to see. Look at how the solenoid and the coil "T" together (just above the coil connector, on the positive side)

The wire heading right is the temporary start-up Battery Voltage from "I"----The wire heading left is reduced voltage from either the "Resistance Wire" (as with this CJ diagram)---OR---A ballast resistor, which "Takes Its Place"

When "I" dies at the solenoid when you release the key. My CJ runs off of the Resistance wire (reduced volts) My Willys works the same way, no resistance wire. But has a ballast resistor installed on that same (Plain Jane Wire on Willys). The Ballast resistor provides the necessary reduced voltage. When I built "Willy", I made him a 12 Volt System.

The reason I'm sending you all of this stuff is, I know what can happen to a rig over 40 years old---35 and 65 years for my two! Lot-a-grubby fingers on them, in those amounts of time!

Need More?---I'm here, come back to this post.

THE MEDIC
Was this
answer
helpful?
Yes
No
Wednesday, May 25th, 2011 AT 5:40 PM
Tiny
CJ MEDEVAC
  • MECHANIC
  • 11,005 POSTS
Duplicate pic, this should be up there!

The Medic
Was this
answer
helpful?
Yes
No
Wednesday, May 25th, 2011 AT 5:45 PM

Please login or register to post a reply.