Wiring diagram

Tiny
DCGLATFELTER
  • MEMBER
  • 2005 HYUNDAI ELANTRA
  • 4 CYL
  • 2WD
  • AUTOMATIC
  • 106,000 MILES
I saw a partial picture on this website of the wiring diagram I have been looking for. It has fuse #25 on it for a 2005 Hyundai Elantra interior drivers side fuse box.
My fuse 25 (room lp)blows immediately when putting a new one in. So a lot of things go out. But I am stuck now. The auto manuals I have managed to get, do not have fuse 25 anywhere on them.
Please tell me you are able to send me the rest of that diagram.
Sunday, November 4th, 2018 AT 5:15 PM

3 Replies

Tiny
ASEMASTER6371
  • MECHANIC
  • 52,796 POSTS
Good evening.

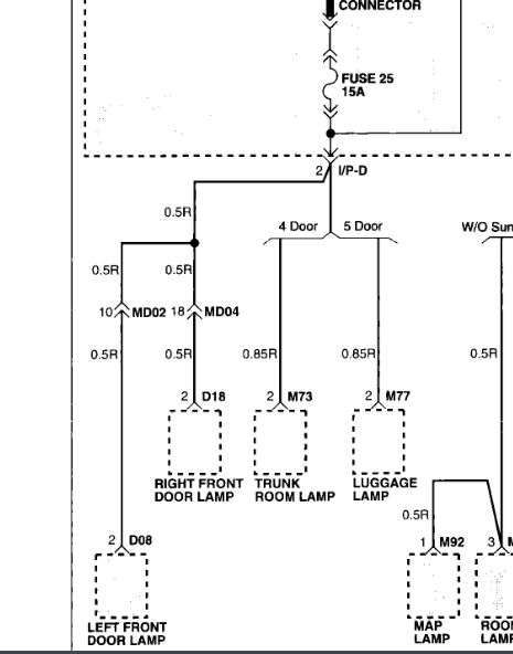
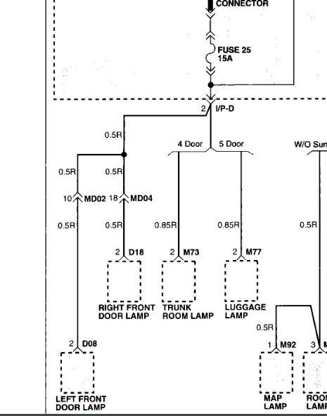
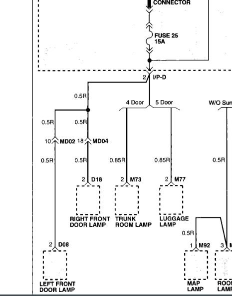
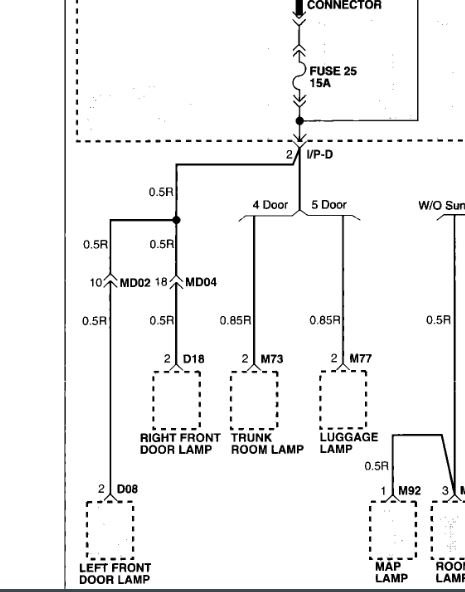
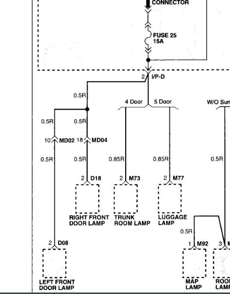
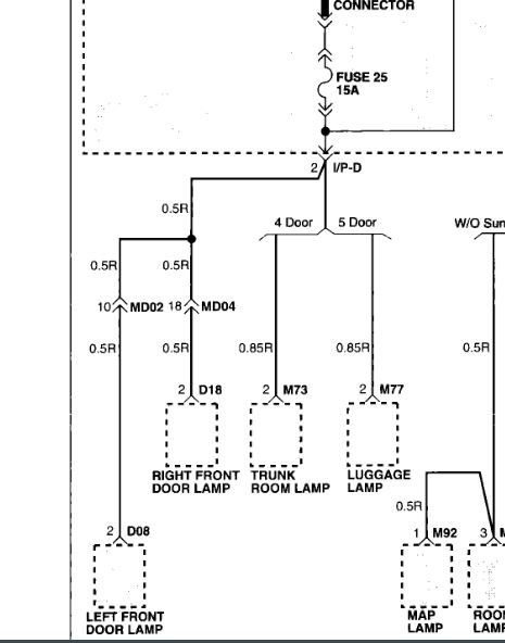
I attached the controls for fuse 25 as you requested.

Let me know if you have any other questions.

Roy

https://www.2carpros.com/articles/how-to-check-wiring
Was this
answer
helpful?
Yes
No
Sunday, November 4th, 2018 AT 6:07 PM
Tiny
DCGLATFELTER
  • MEMBER
  • 2 POSTS
I am confused. Are both of the above pictures for my car or did I have the first picture wrong? Because the one you sent me has I/P-D under fuse 25 and the first one has I/P-G under fuse 25.
Since this fuse seems to have alot connected to it, is it possible to get all the diagrams that are connected to fuse 25? Or, can you tell me where I can buy the manual you are using for these diagrams?
My radio, clock, key fob, OBD, and door lights are not working. Also when I start the car, the tachometer and speedometer needles jump up for a few seconds then fall rapidly. The battery tested at 12.7 volts and with alternator it was 14 something. I did notice that the ACC setting at the ignition switch has not worked since I got the car two years ago.
Thank you for the "Check Wiring Video". It was easy to understand and follow.
Was this
answer
helpful?
Yes
No
Monday, November 5th, 2018 AT 10:05 AM
Tiny
ASEMASTER6371
  • MECHANIC
  • 52,796 POSTS
They are both for your car. They show what fuse 25 controls. As you can see if controls many things.

I use Alldata. You can go on line and get a pass to it. You can get a daily pass or longer. They will list all the options for you on the site.

Roy
Was this
answer
helpful?
Yes
No
Monday, November 5th, 2018 AT 10:11 AM

Please login or register to post a reply.