Not starting issue wiring diagram needed?

Tiny
SETH MAULDIN
  • MEMBER
  • 2002 MITSUBISHI LANCER
  • 2.0L
  • 4 CYL
  • 2WD
  • MANUAL
  • 220,000 MILES
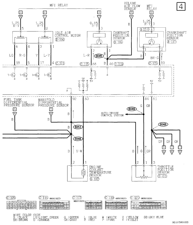
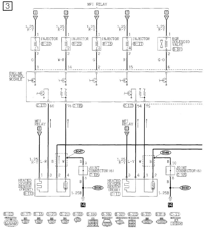
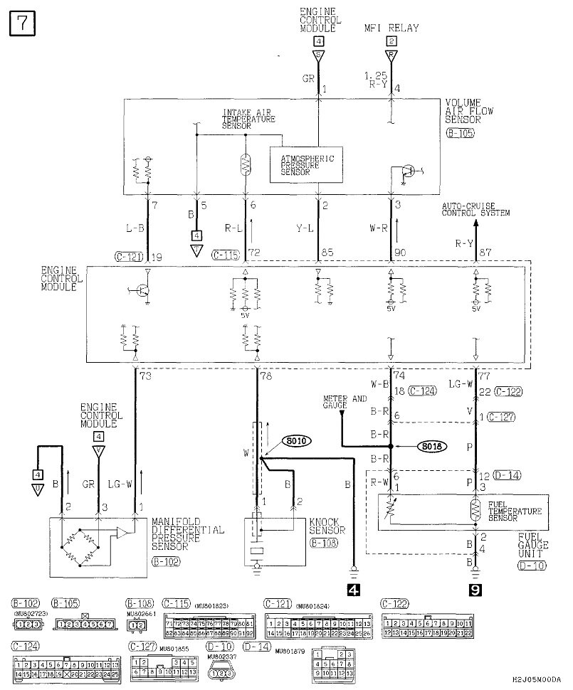
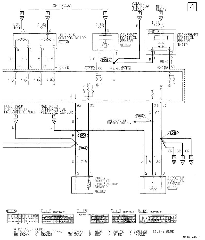
I need the wiring to a few sensors color coded left to right as follows:
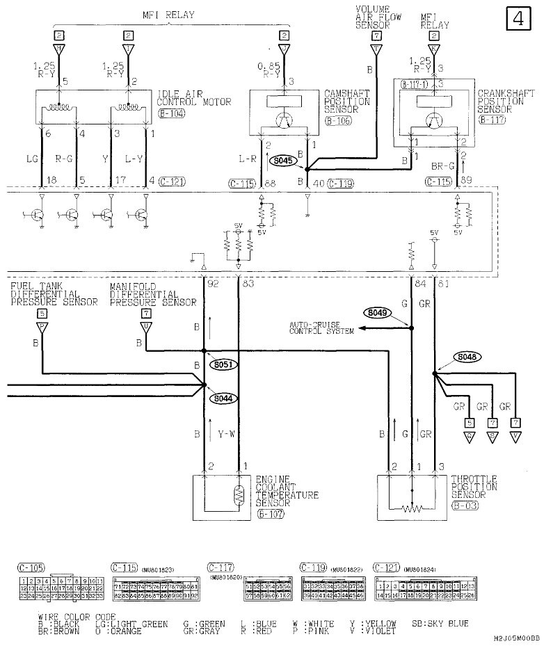
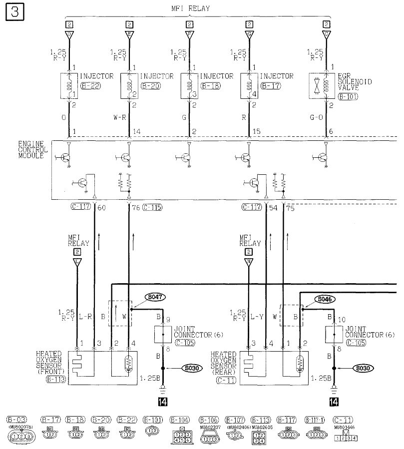
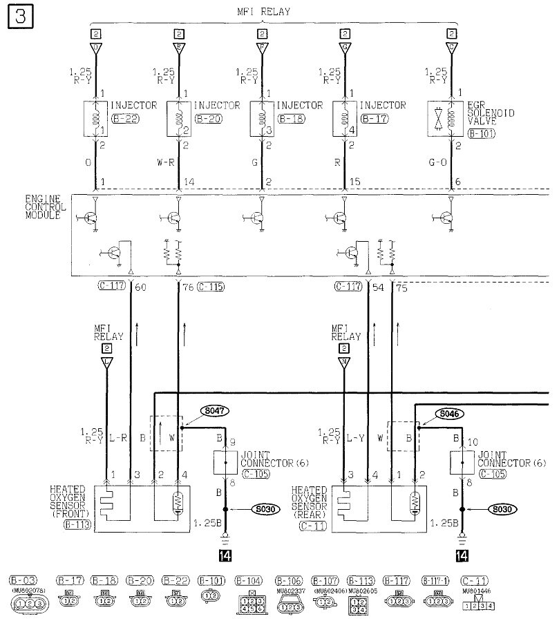
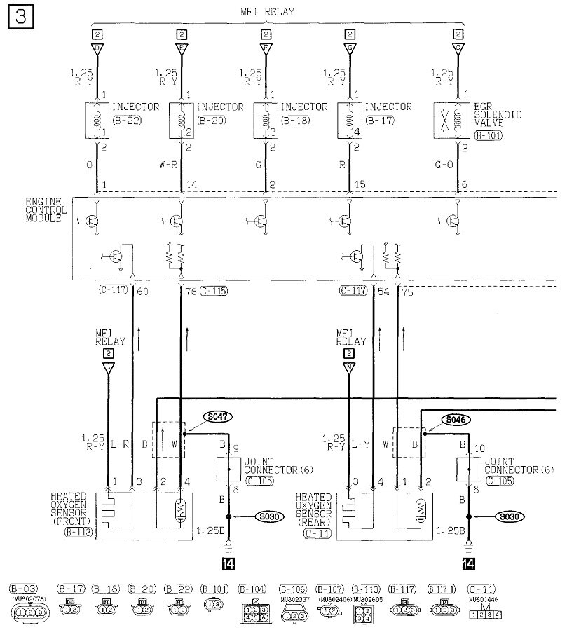
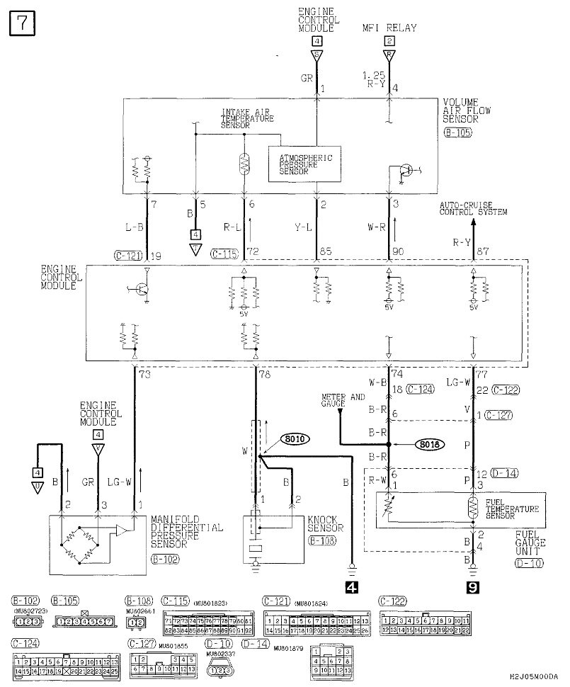
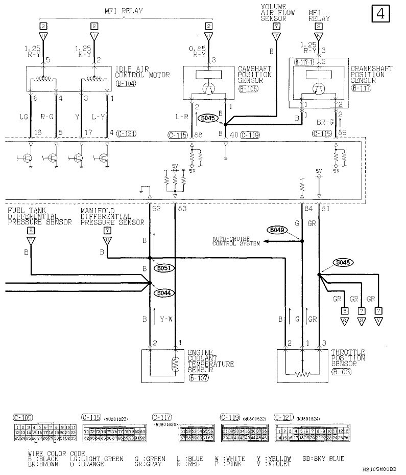
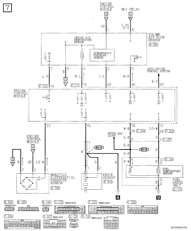
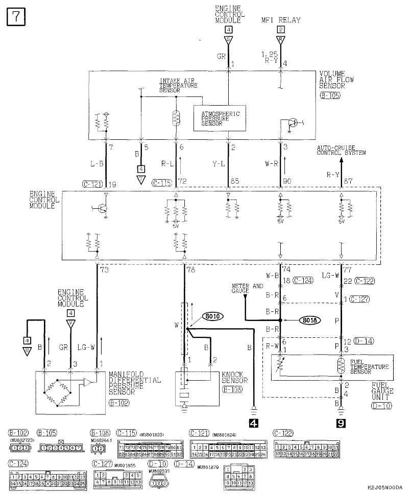
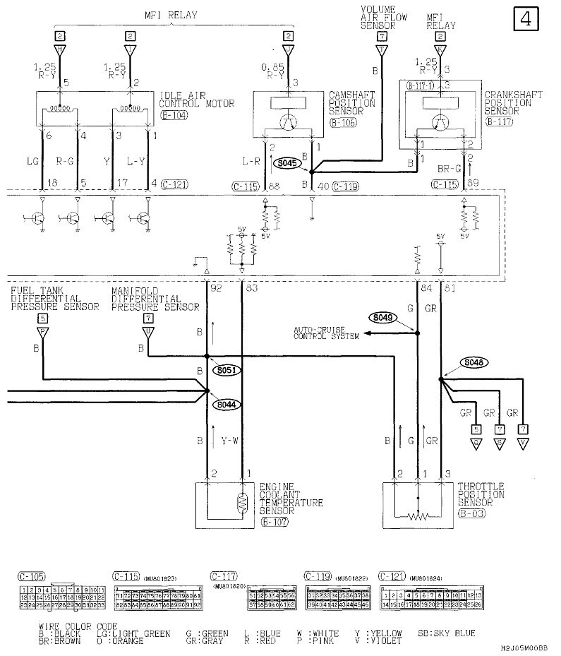
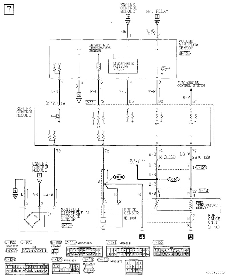
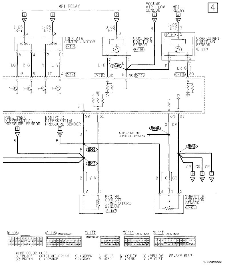
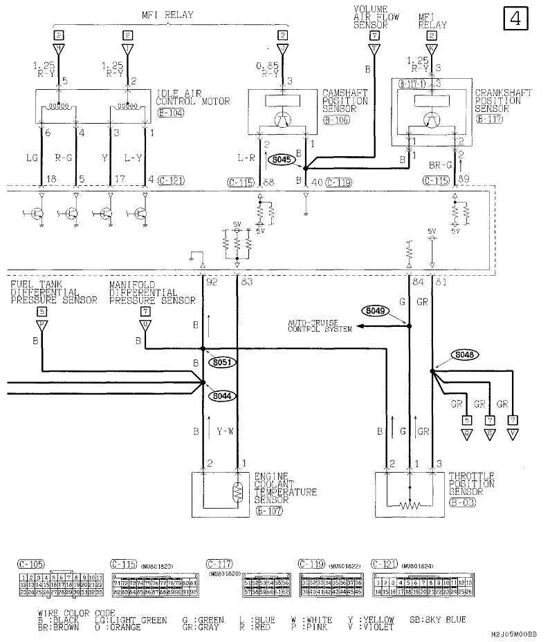
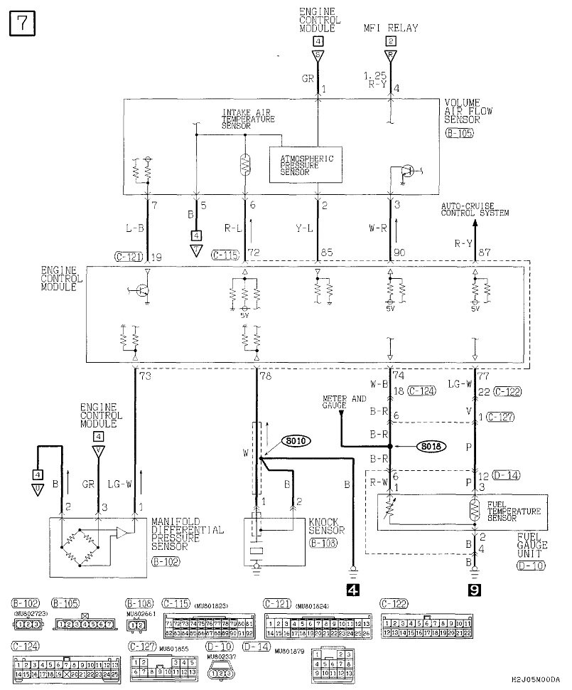
Crankshaft position sensor
Throttle position sensor
Camshaft sensor
Mass airflow sensor 7 pin
Car doesn't want to start
Monday, May 8th, 2023 AT 3:27 PM

1 Reply

Tiny
CARADIODOC
  • MECHANIC
  • 34,463 POSTS
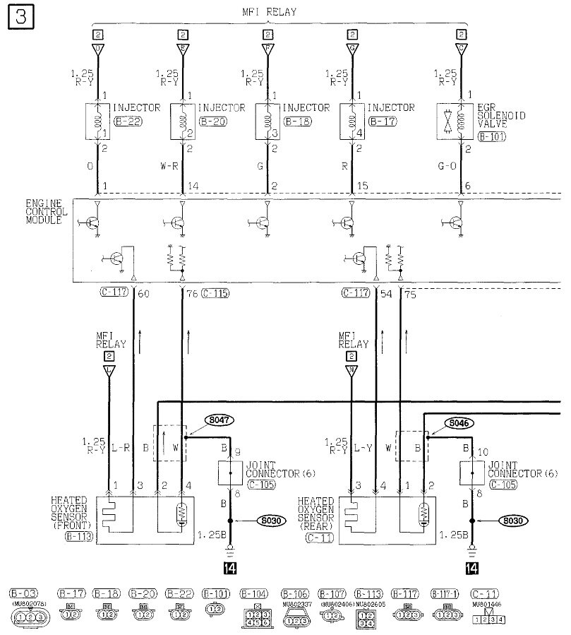
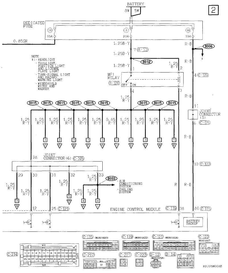
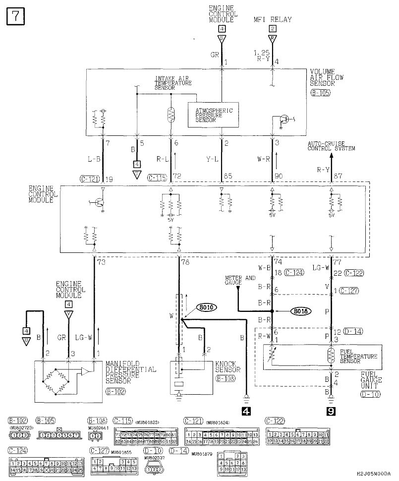
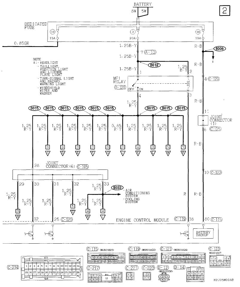
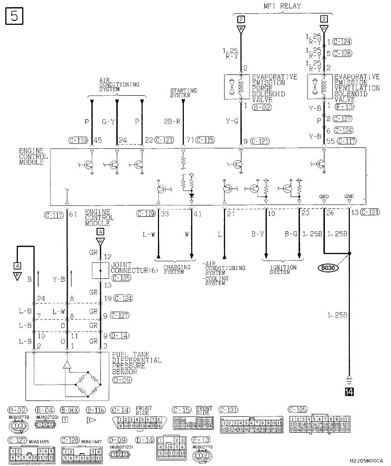
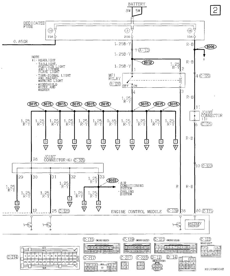
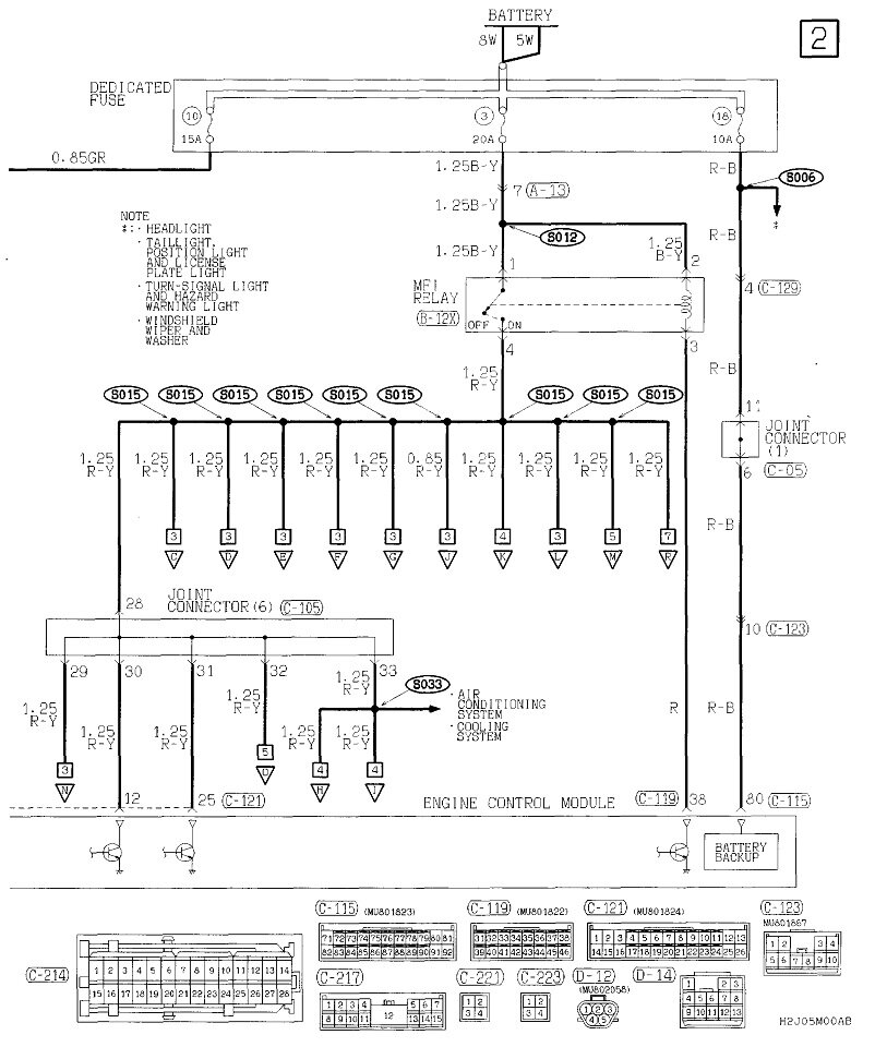
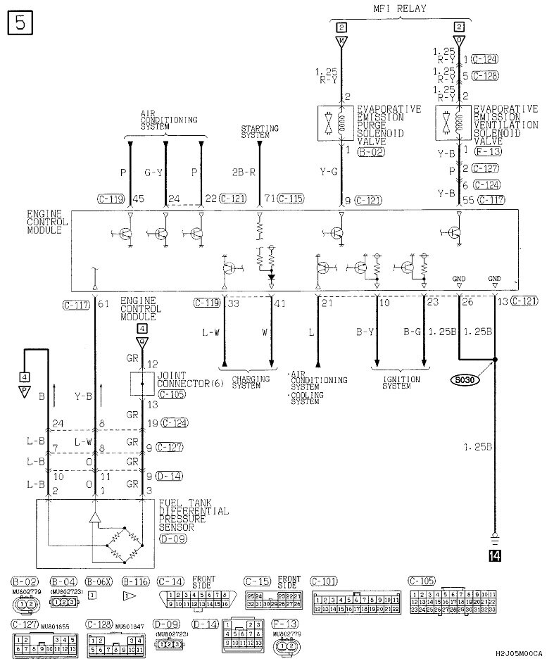
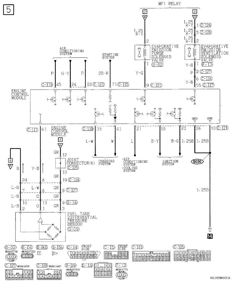
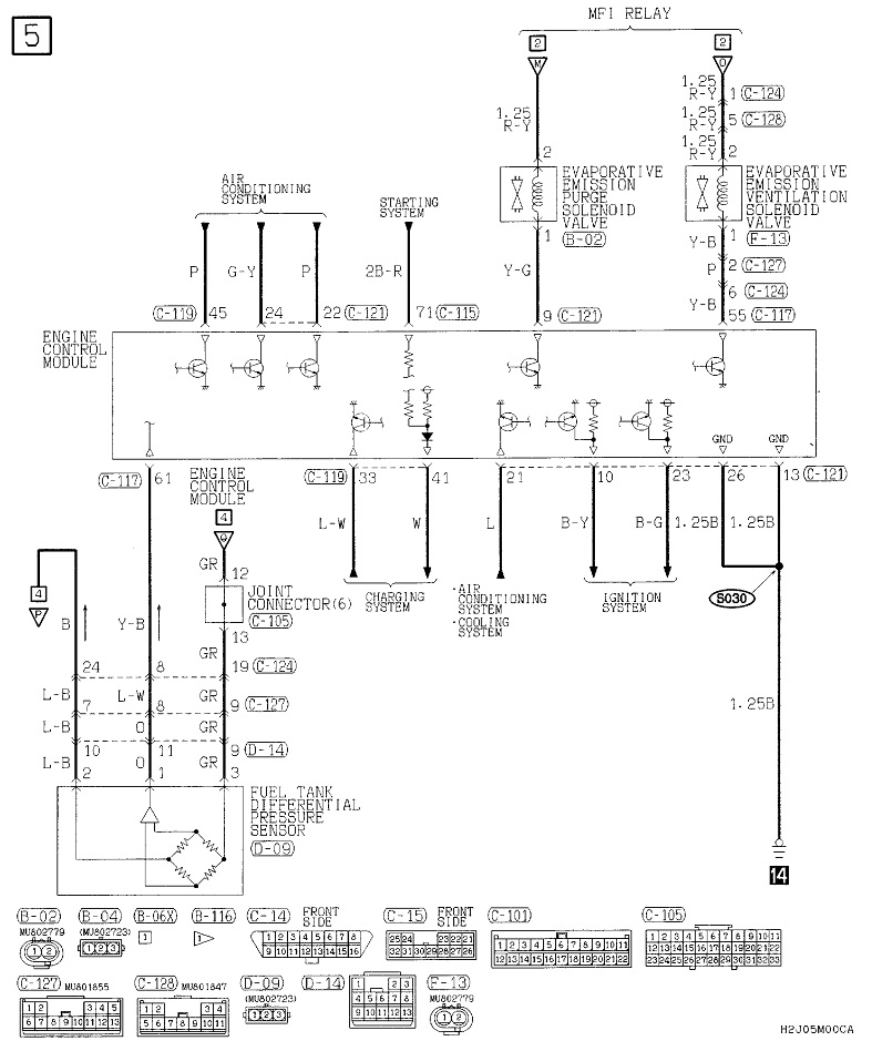
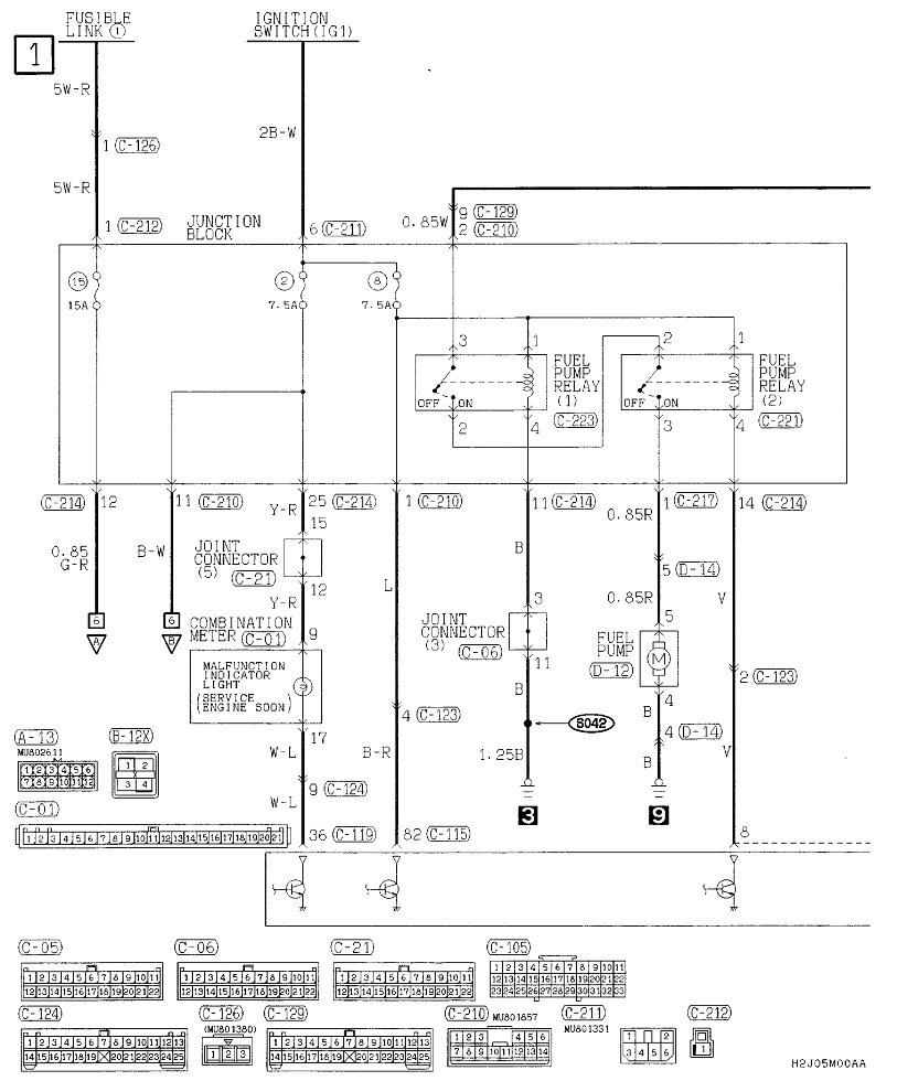
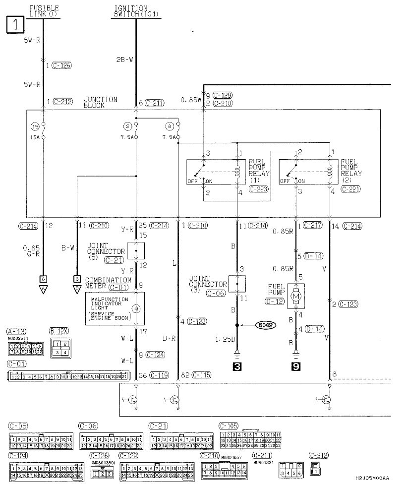
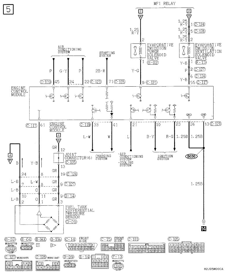
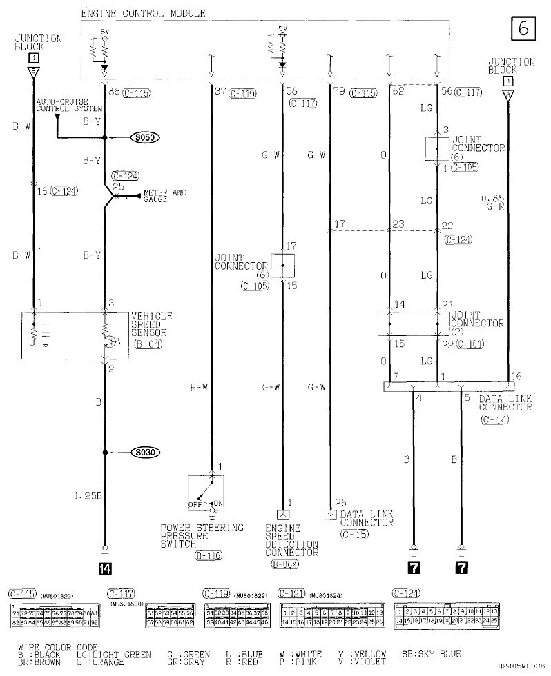
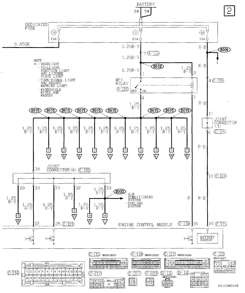
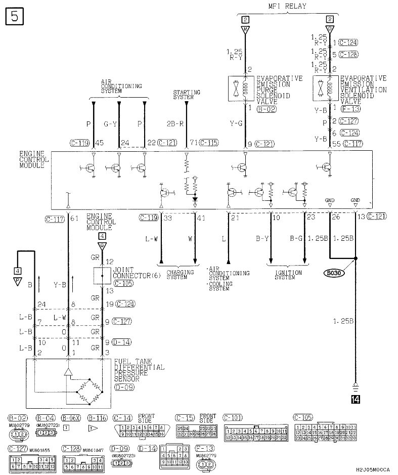
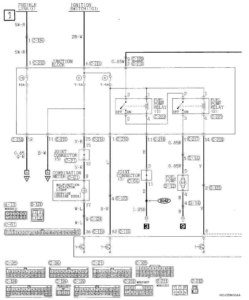
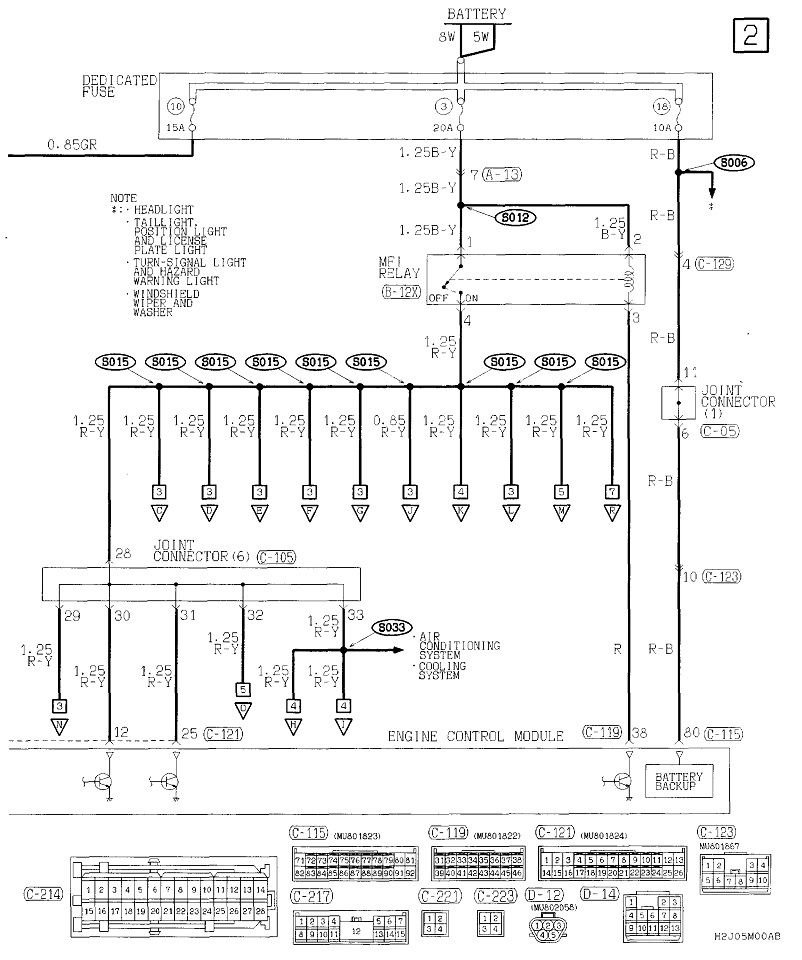
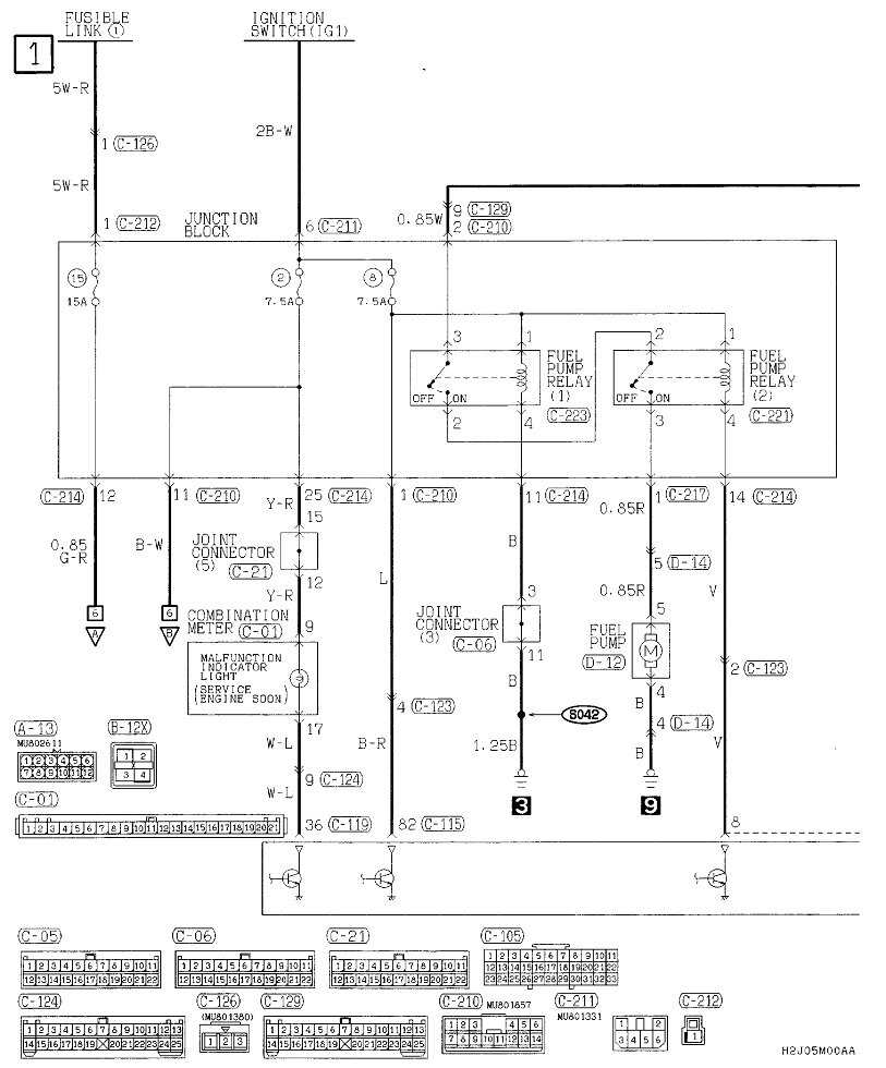
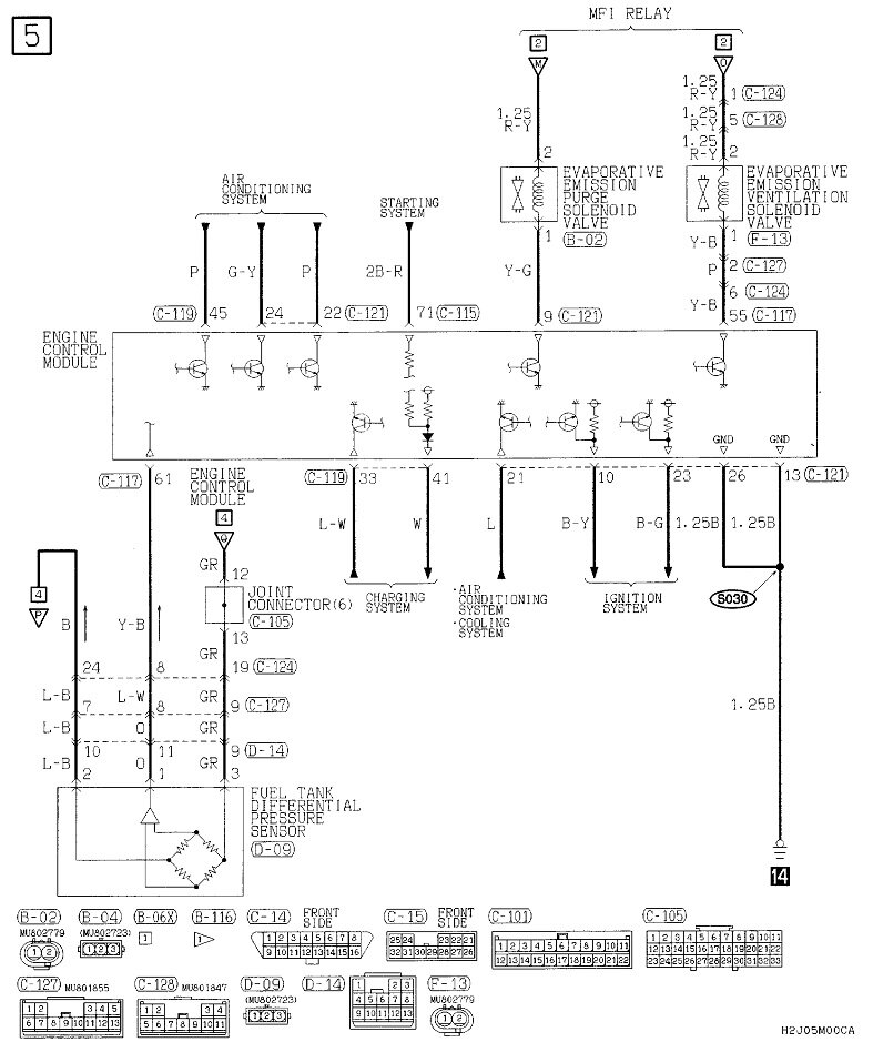
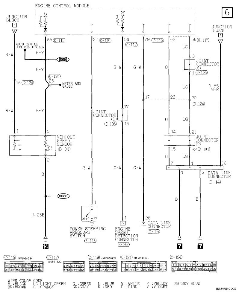
This is everything for Powertrain Management. There's two versions of these, but I can't find the differences between them. If something doesn't match what you have, let me know.

Have you checked the diagnostic fault codes? If you haven't, what has led you to so many different circuits? If you have and you got codes for all of these circuits, look for what they have in common. Mostly that's the voltage and ground feeds to the sensors
Was this
answer
helpful?
Yes
No
Monday, May 8th, 2023 AT 4:30 PM

Please login or register to post a reply.