HOME
ASK A QUESTION
REPAIR GUIDES
BECOME A MEMBER
LOG IN
Login with Facebook
OR
Remember me
NOT A MEMBER?
FORGOT PASSWORD?
CONTACT US
PRIVACY POLICY
TERMS AND CONDITIONS
☰
Home
Honda
Prelude
Climate Control
Blower Fan
Wiring diagram blower motor
JAMES PASKALI
MEMBER
2000 HONDA PRELUDE
4 CYL
2WD
MANUAL
136,000 MILES
Blower motor.
Thursday, November 14th, 2019 AT 2:36 AM
1 Reply
MOTOR MASTER
MECHANIC
279 POSTS
Hello my name is Dave.
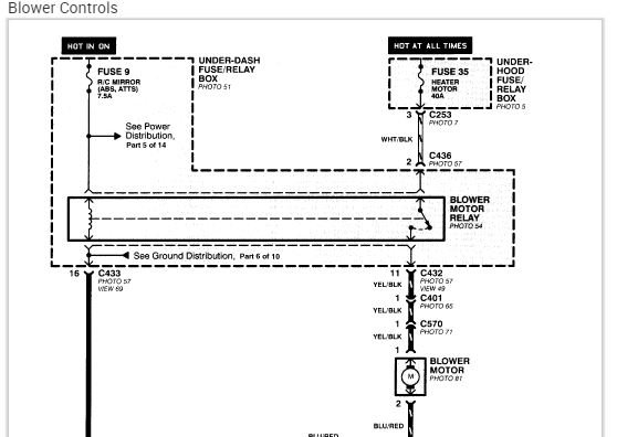
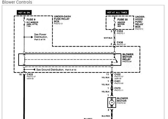
Here is the wiring diagram for your blower motor. Please let us know if there is anything else we can help you with and thank you for using 2CarPros!
Images (Click to make bigger)
Was this
answer
helpful?
Yes
No
Thursday, November 14th, 2019 AT 4:07 AM
Please
login
or
register
to post a reply.
Related Blower Fan Content
Hvac Fan Motor Not Working
The Fan Motor For Heat/ac, Does Not Work. The Fuse Is Okay. How Can I Narrow Down The Problem To The Fan Motor Itself Or Is There Some Type...
Asked by
luckytrdr
·
4 ANSWERS
1 IMAGE
1991
HONDA PRELUDE
Ask a Car Question. It's Free!
Blower Motor Replacement
Blower Fan Motor Failure Symptoms
Blower Fan Motor Replacement