Windshield wipers do not work?

Tiny
SIR CHARLES
  • MEMBER
  • 1994 TOYOTA CAMRY
  • 2.2L
  • 4 CYL
  • 2WD
  • AUTOMATIC
  • 191,000 MILES
The fuse in the engine compartment is good. There may be a relay, fusible link and another fuse under the front passenger kick panel but I don't know if they are for the wiper motor. I want to determine if the motor is bad or the switch. Could you tell me if the wipers have a relay and fusible link in the power line somewhere. Also, how do I test the motor hooked up directly to the battery. Then if it is good. I need to know how to check the switch. Thank you so much.
Friday, October 10th, 2025 AT 4:55 PM

3 Replies

Tiny
CARADIODOC
  • MECHANIC
  • 34,489 POSTS
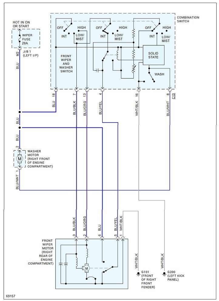
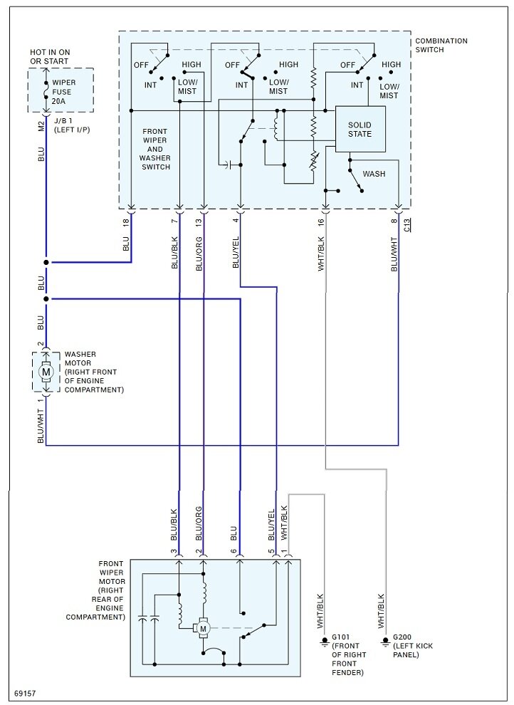
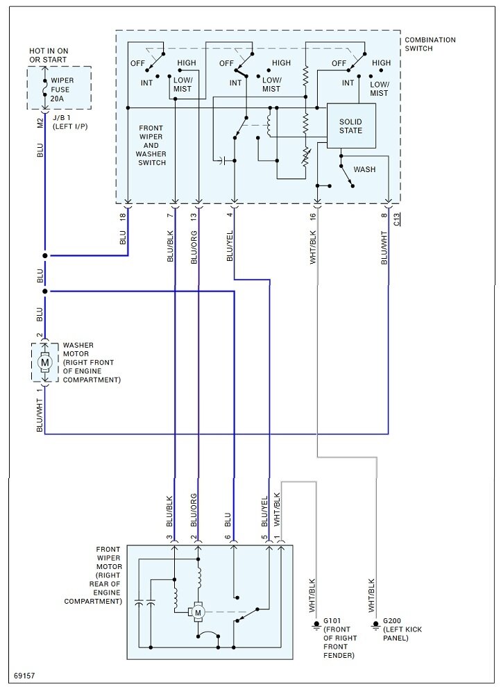
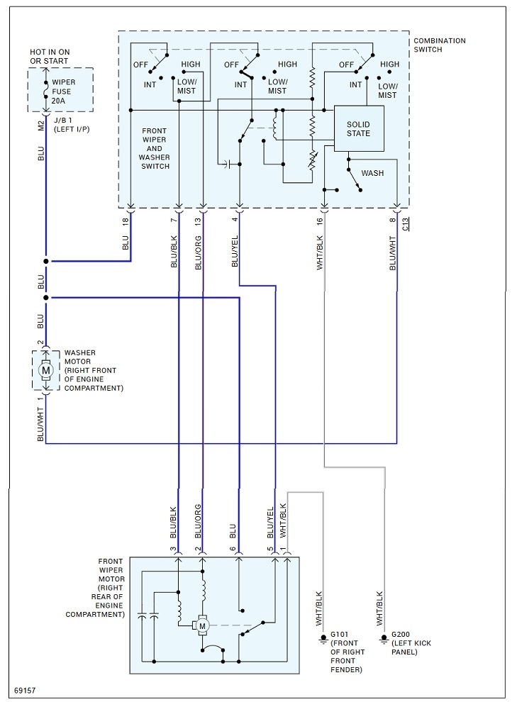
First check if the washer motor works. If it does not, the place to start is with what both systems have in common. That's the 12 volt supply / fuse circuit. Grounds aren't suspect at this time because each motor uses a different one.

There is a relay built into the switch assembly, but it is related to the intermittent wipe circuit.

The fastest way to test the switch is to use an old-fashioned, inexpensive test light with a bulb inside. To be most accurate, the readings should be taken with everything plugged in. If you have to disconnect a connector to take a reading, digital voltmeters can give false information where test lights are much less likely to do so.

Go to the wiper motor and check for voltage on the blue / black wire when the switch is in the "low" setting. Next, check for voltage on the blue / orange wire when the switch is in the "high" setting. Let me know what you find there.

If you have both of those voltages, check if the wiper motor is bolted to a plate that is mounted to the car on rubber bushings. When that is done, there will be a metal ground strap under one of the bolt heads. There can be arcing under that strap that breaks the ground circuit. The wiper motor won't run in either speed, but the washer motor will run normally. A clue can often be found by tugging up gently on a wiper arm. That can twist the motor just enough for that ground strap to make a temporary connection. The motor might run for a couple of seconds or a lot longer. If you find that, let me know, then I can describe how to verify that cause, but it requires the defect to be present during testing. I repair those by attaching a new ground wire. I can describe that in more detail if necessary.
Was this
answer
helpful?
Yes
No
+1
Friday, October 10th, 2025 AT 6:54 PM
Tiny
CARADIODOC
  • MECHANIC
  • 34,489 POSTS
I forgot to include the diagram. Don't worry if you don't know how to read it. We can walk through the diagnosis together.
Was this
answer
helpful?
Yes
No
+1
Friday, October 10th, 2025 AT 9:34 PM
Tiny
KEN L
  • MASTER CERTIFIED MECHANIC
  • 55,488 POSTS
Please respond
Was this
answer
helpful?
Yes
No
+1
Tuesday, October 14th, 2025 AT 12:48 PM

Please login or register to post a reply.