Tuesday, March 24th, 2020 AT 8:20 AM
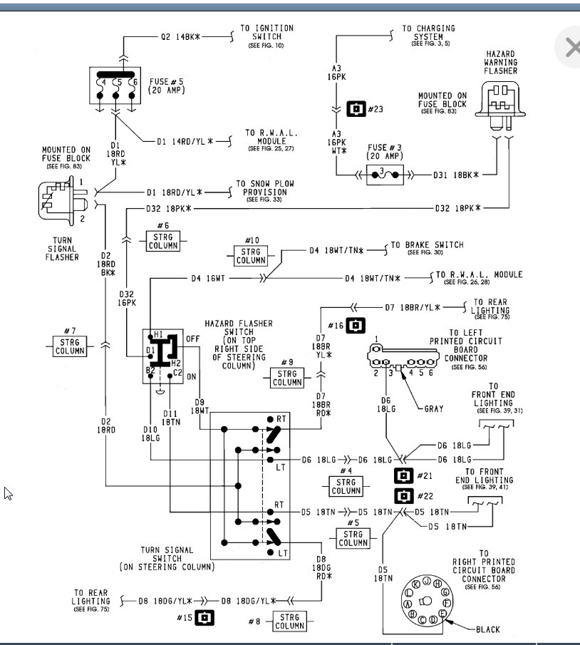
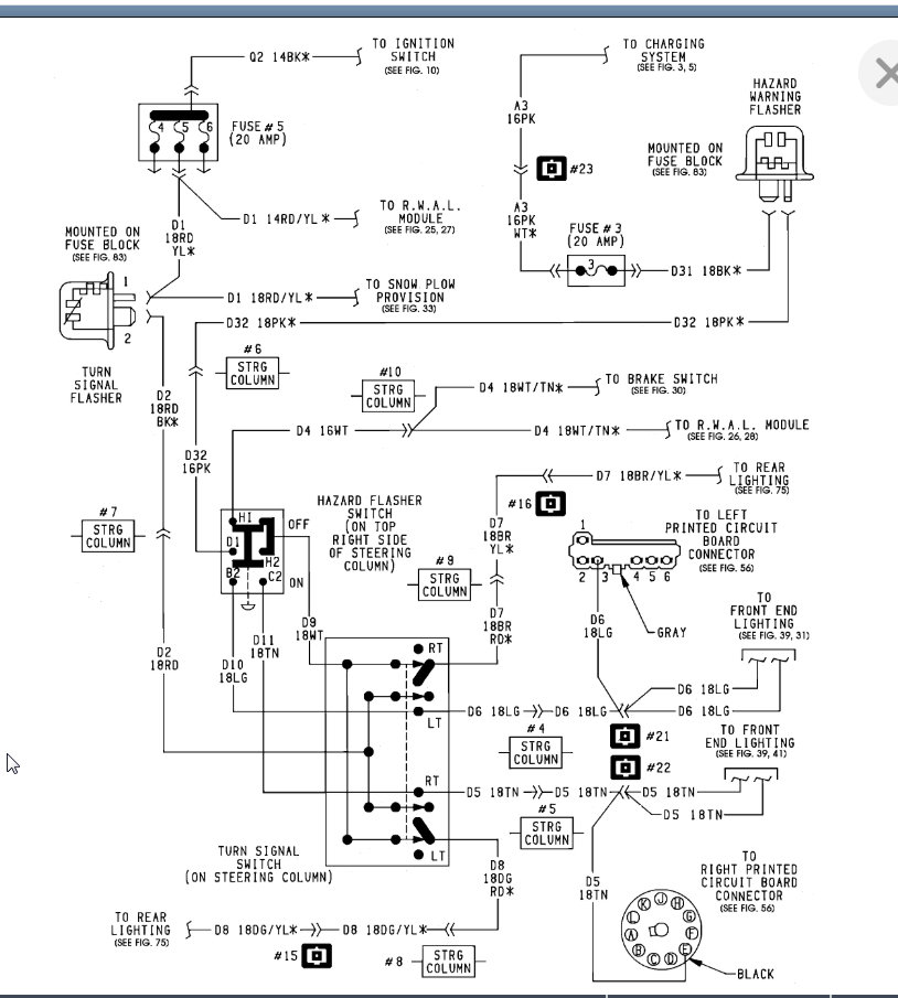
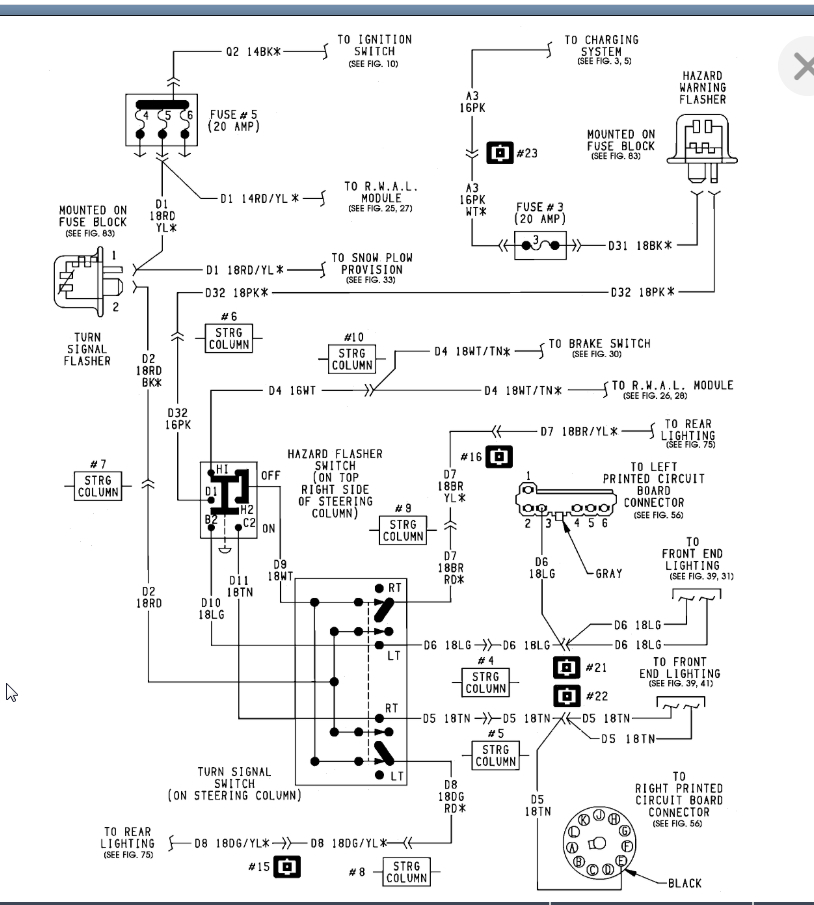
I am replacing the steering column on a 1990 Dodge D250 turbo Cummins. On the new column the turn signal switch is broken. The only difference in the columns is the new column is tilt the old is not, but I need to take the turn signal switch from the old column and put it on the new. How do I do so?

