Wednesday, June 21st, 2023 AT 9:54 PM
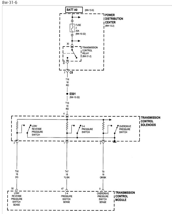
Recently removed transmission to repair front pump seal that was leaking after reinstalling check engine light came on giving a P0750 and P0755 code. Upon inspection shift solenoid was broken replaced unit with battery unhooked after installing new solenoid pack light stayed off for short time then came back on. Looking for wire diagram for PCM to do pin test to make sure there are no issues in wiring. Any help would be appreciated.










