Transmission

Tiny
CAVYPROBLEMS247
  • MEMBER
  • 2004 CHEVROLET CAVALIER
  • 2.2L
  • 4 CYL
  • 2WD
  • AUTOMATIC
  • 98,000 MILES
I have several issues the most important currently being what must be a transmission problem. I was driving yesterday everything was fine as it seems to have been for a while now. I stopped at a red light and on green tried to accelerate and the car would not move. The rpm's revved but no acceleration. This model does not have a dipstick to check transmission fluid and have been unable to check it thus far. I have had several other issues but am unsure if it would be related to this. Any help is so greatly appreciated. I have not even ran out the 45 day temporary tags on this car.
Thursday, November 1st, 2018 AT 9:31 AM

11 Replies

Tiny
JONNYB1963
  • MECHANIC
  • 263 POSTS
It sounds to me like low transmission fluid. Yeah, they made the level so hard to check with these "sealed for life" transmissions. Still, fear not, there is a way to check the fluid level.

First you need to locate the level/fill plug. It is located a few inches above the transmission pan. On the passenger side of the transmission where the axle shaft connects (CV joint) (See image)

Next, Make sure you have the car parked on very level ground. With the engine running (idle) remove the plug and observe to see if any fluid leaks out the hole. Using the correct fluid for your car, add fluid through that hole until you see the fluid begin to drip out. Replace the plug when completed.

If the problem still occurs after you do this, then you have bigger problems and should go consult a reputable transmission shop or dealer.

Jon
Was this
answer
helpful?
Yes
No
Thursday, November 1st, 2018 AT 11:21 AM
Tiny
JONNYB1963
  • MECHANIC
  • 263 POSTS
Oops I forgot the image. Here it is.
Was this
answer
helpful?
Yes
No
Thursday, November 1st, 2018 AT 11:24 AM
Tiny
CAVYPROBLEMS247
  • MEMBER
  • 6 POSTS
Thank you for your help. I was aware there was a way to check it I just was not able to at the time of the breakdown. So if that does not work its much deeper. But any ideas what would be at least a good first place to start.
Was this
answer
helpful?
Yes
No
Thursday, November 1st, 2018 AT 11:49 AM
Tiny
CAVYPROBLEMS247
  • MEMBER
  • 6 POSTS
Also, the check engine light has been on for what I was told was the knock sensor code. Could this at all factor in? Or maybe a bad low coolant sensor? Because yes the wonderful dealer sold me a car with this many issues. I also had to replace the fuel pump. Not sure if any of this can factor in or maybe send me in my next direction should fluid not be the issue. Thank you again
Was this
answer
helpful?
Yes
No
Thursday, November 1st, 2018 AT 12:05 PM
Tiny
JONNYB1963
  • MECHANIC
  • 263 POSTS
Can you give me the exact codes you are getting? Some sensor failures in the engine can put the transmission into a "limp mode". I will have to see if a knock sensor code could do that out not. Let's start with what codes you do have first.
Was this
answer
helpful?
Yes
No
Thursday, November 1st, 2018 AT 4:26 PM
Tiny
CAVYPROBLEMS247
  • MEMBER
  • 6 POSTS
Unfortunately that was a few weeks back so I am unsure of the exact code. I did however try the fluid with no success. I did find it goes in reverse but no forward gears. I learned that the forward clutch has most likely gone out which requires a complete tear-down and rebuild of the transmission. I am afraid would be too costly and not be worth it for the vehicle but not sure what prices I could be facing.
Was this
answer
helpful?
Yes
No
Thursday, November 1st, 2018 AT 4:49 PM
Tiny
JACOBANDNICKOLAS
  • MECHANIC
  • 110,194 POSTS
Hi and thanks for using 2CarPros. Com.

A knock sensor will not prevent the vehicle from moving. First, check to make sure the transmission fluid is clean and full. Next, clutches do not go bad all at once. You will notice the transmission slipping first. This can continue for a long time before the vehicle will no longer move.

Since this seems to have happened all at once, check to confirm you do not have a broken CV joint or axle. A broken axle on one side of the vehicle will prevent it from moving.

Next, Even if the transmission is full, I would first recommend removing the transmission pan and replacing the transmission filter. I have had individuals who were sure a transmission was bad very happy when I told them it was a plugged filter. If it is dirty enough, with the engine off, debris can settle to the bottom of the pan. At start up, the transmission may work for a short time and then fail as you described because the pump has picked up enough debris to lower the pressure enough to prevent gear engagement.

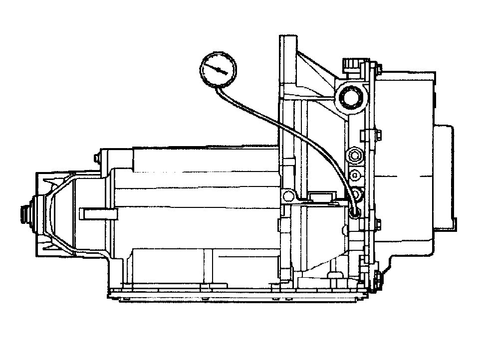
You may want to check and confirm the transmission line pressure is within the manufacturer's specs. Here are the directions for do it. The last picture correlates with these directions.

___________________

LINE PRESSURE CHECK PROCEDURE

imageOpen In New TabZoom/Print

Line Pressure Check Procedure

Caution: Keep the brakes applied at all times in order to prevent unexpected vehicle motion. Personal injury may result if the vehicle moves unexpectedly.

Notice: The total test running time should not be longer than 2 minutes. Running the test longer than 2 minutes may damage the transaxle.

Line pressures are calibrated for two sets of gear ranges - DRIVE-PARK-NEUTRAL, and REVERSE. This allows the transaxle line pressure to be appropriate for different pressure needs in different gear ranges. Before performing a line pressure check, verify that the pressure control solenoid for the transaxle is receiving the correct electrical signal from the PCM.

Important: Some conditions may be intermittent, therefore this test should be performed at least 3 times.

1. Install the scan tool.
2. Start the engine and set the parking brake.
3. Check for diagnostic trouble codes, including the diagnostic code for a stored pressure control solenoid.
4. Repair the vehicle if necessary. Include the following areas:
Inspect the fluid level
Inspect the manual linkage at the transaxle
Install or connect the scan tool.
Install or connect the oil pressure gage at the line pressure tap.
5. Put the gear selector in PARK and set the parking brake.
6. Start the engine and allow the engine to warm up at idle.
7. Access the PCS Control test on the scan tool.
8. Increase DESIRED PCS in 0.1 amp increments. Read the corresponding line pressure on the pressure gage. Allow the pressure to stabilize for 5 seconds after each current charge.

Important: Before installing the line pressure plug, apply GM P/N 12345382 (Canadian P/N 10953489) to the thread of the line pressure plug.

9. Remove oil pressure gage and install line pressure plug.
If your pressure readings differ greatly from the line pressure table, refer to the Diagnosis Tables contained in this section.
The scan tool is only able to control the pressure control solenoid in PARK and NEUTRAL with the vehicle stopped. This protects the clutches from extremely high or low pressures in DRIVE or REVERSE ranges.
Refer to Line Pressure.
The pressures in the table assume a temperature of 70°C (158°F). The pressure will vary with a change in temperature.

_____________________________________

The directions for checking fluid provided are accurate. Make sure the engine is at operating temp, too, when checking. ATF expands as it heats. Checking cold will give a false reading.

Let me know if you have other questions or need help.

By the way, to help you determine an approximate cost for removal and replacement, I have attached pictures 2 and 3. Picture 2 shows the cost of parts. Note that the parts are original equipment and what one could expect to pay from a dealership.

The 3rd picture are labor indicators. Add up the number of hours based on your vehicle's equipment. Then, determine the shops hourly rate and multiply the two for labor cost.

This will get you in the ball park. However, if your transmission is rebuilt, it should be somewhat lower, but one doesn't know for sure what needs replaced internally until the tear down.

I hope this is helpful. Let us know if you have other questions or need help.

Take care,
Joe
Was this
answer
helpful?
Yes
No
Thursday, November 1st, 2018 AT 5:23 PM
Tiny
CAVYPROBLEMS247
  • MEMBER
  • 6 POSTS
Thank you so much for the advice. I will look into the filter hoping that will help. I am betting I can manage that one myself but not the line pressure test. Unfortunately I am fairly certain it is not the CV joint/axle. You are correct that this happened all at once with zero indication of any issues. Transmission related that is. It seemed quite strange that it would just all of a sudden go out. When I checked the fluid today it seemed to have a steady drip and just as red as it should be. I did add about a half quart but chances are it drained that amount back out before re-plugged. While shifting gears I can feel the car engage in reverse but no other gears. Just trying to offer as much information as I have gathered to this point. This car was bought with an insurance settlement from an accident and still on the 45 day temporary tags. I really do not have the money for a repair shop to even give it a look and tell me what it may be but if its possible I may be able to get it driving again that would be great so the advice is very appreciated.
Was this
answer
helpful?
Yes
No
Thursday, November 1st, 2018 AT 6:24 PM
Tiny
JACOBANDNICKOLAS
  • MECHANIC
  • 110,194 POSTS
Welcome back.

If I recall, the low/reverse clutch is the same. Basically, if reverse works, the clutches for 1st gear should be good. Hence, it should move forward.
Regardless, take a look through this link. It should help.

https://www.2carpros.com/articles/how-to-service-an-automatic-transmission

Let me know what you find.

Take care,

Joe
Was this
answer
helpful?
Yes
No
Thursday, November 1st, 2018 AT 6:43 PM
Tiny
CAVYPROBLEMS247
  • MEMBER
  • 6 POSTS
That is interesting because it most certainly does not move forward even when putting in in low 1. I will be checking out the link.
Was this
answer
helpful?
Yes
No
Thursday, November 1st, 2018 AT 6:56 PM
Tiny
JACOBANDNICKOLAS
  • MECHANIC
  • 110,194 POSTS
If it does not move at all and happened all at once it sounds electrical. You need to scan the computer to see if there are transmission diagnostic trouble codes. It should point us in the right direction.

Let me know,

Joe
Was this
answer
helpful?
Yes
No
Friday, November 2nd, 2018 AT 5:14 PM

Please login or register to post a reply.