Hi wthj77, Welcome to 2carpros and TY for he donation
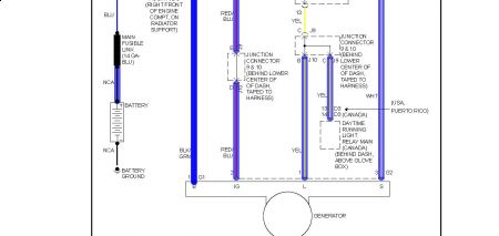
You probably are-But I want you to load test the battery if okay check the alternator S fuse 5amp in engine room junction block in left side of engine compartment and ignition fuse 7.5amp, and gauge fuse 10amp in instrument panel junction block left side of dash at lower finish panel.
Also check for battery voltage on the B terminal of the alternator-power present and all the above checked out and wiring okay-Now you can pull the alternator and get it load tested to confirm it as the culprit-


Thursday, January 21st, 2010 AT 3:27 AM