Taillight not working

Tiny
RITA BUSCARINO CASSARO
  • MEMBER
  • 2005 CADILLAC SRX
  • 100,000 MILES
Drivers side taillight not working. Do turn, no flasher.
Saturday, October 17th, 2020 AT 7:18 AM

3 Replies

Tiny
JACOBANDNICKOLAS
  • MECHANIC
  • 110,194 POSTS
Hi,

I need to verify something. Is it only the left taillight that is affected? Also, does anything on that light work? For example, brake lights, back up light, and I'm not sure if the turn signal works. If it doesn't, does the front left work and flash fast? Have you checked the bulbs?

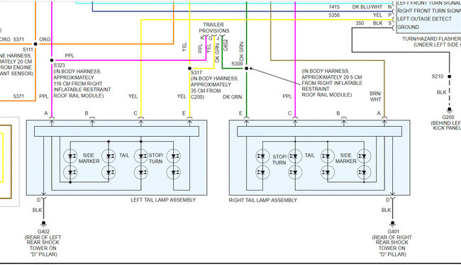
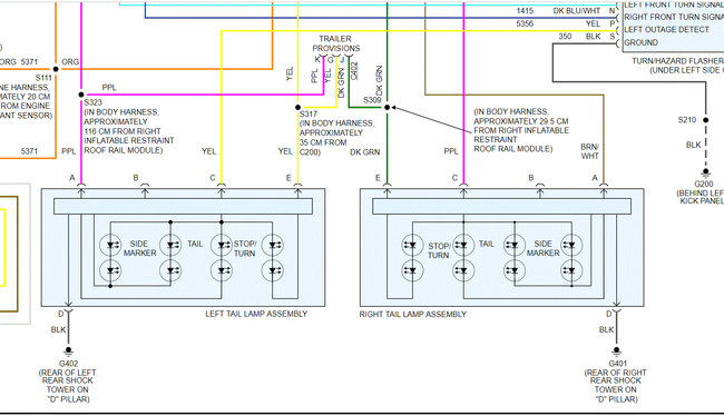
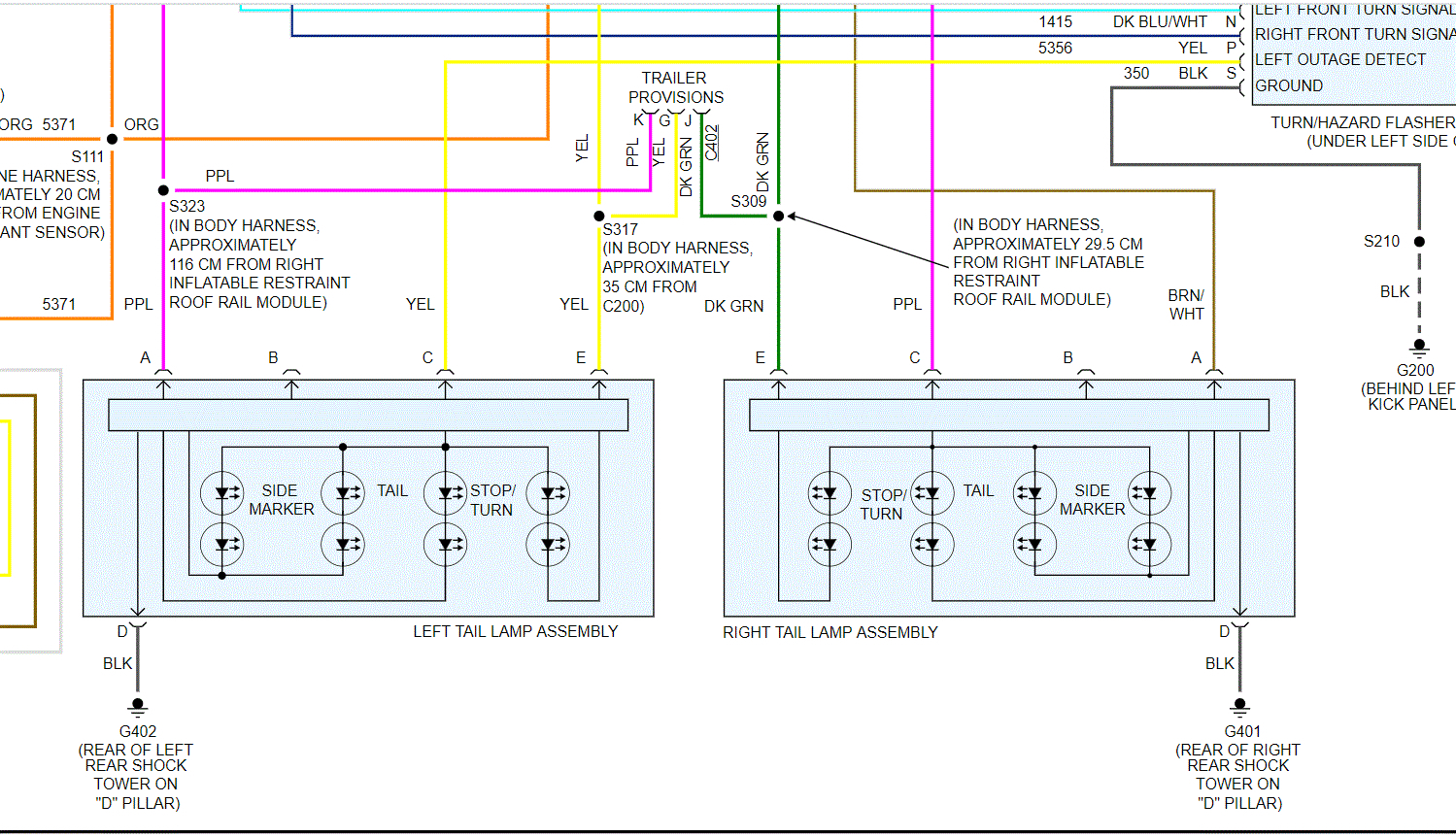
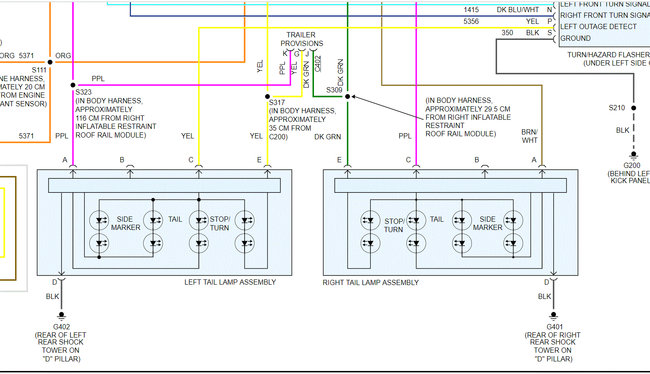
I attached a pic below. Take a look at them. One shows the relay for the lights and the other the wiring to each of the rear lights.

Let me know.

Joe
Was this
answer
helpful?
Yes
No
Saturday, October 17th, 2020 AT 8:34 PM
Tiny
RITA BUSCARINO CASSARO
  • MEMBER
  • 2 POSTS
Hello Joe, thank you for your response. Only left light rear effected. Front flasher works and the running light (lower light) works on left, front left signal works also. Checked LT fuse it is good.
Was this
answer
helpful?
Yes
No
Sunday, October 18th, 2020 AT 5:08 AM
Tiny
JACOBANDNICKOLAS
  • MECHANIC
  • 110,194 POSTS
Hi,

It seem that the entire light is an issue. I need you to check for power to the purple wire at the light. You can use a test light to do this. Also, confirm there is ground to the black wire. See the pic above.

If there is no power and you do have continuity to ground, check the fuse in the fuse box under the hood. See attached pic. I'm not sure how it would be bad if the front works. However, anything is possible.

_________________________________

Let me know what you find.
Joe
Was this
answer
helpful?
Yes
No
Sunday, October 18th, 2020 AT 8:23 PM

Please login or register to post a reply.