Wednesday, August 2nd, 2023 AT 6:39 PM
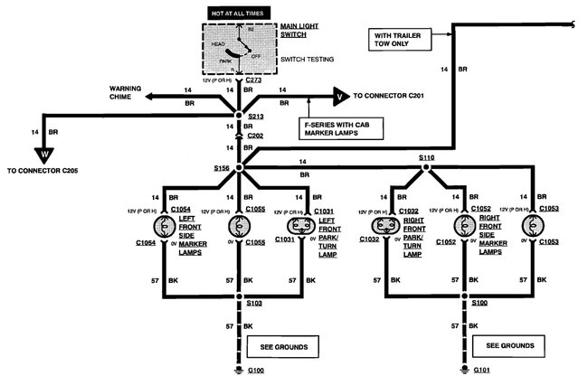
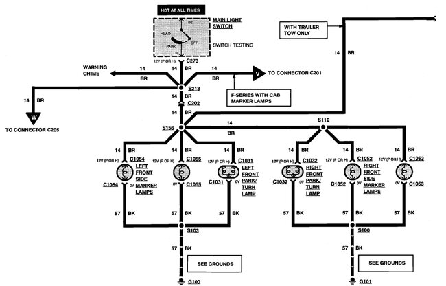
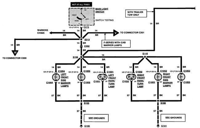
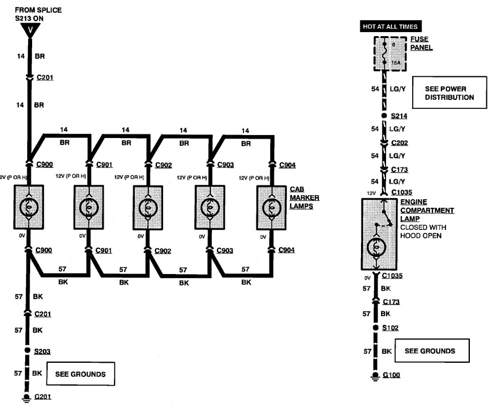
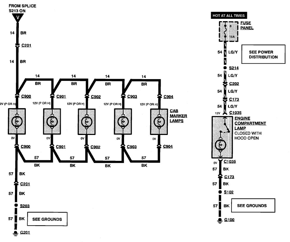
I have no blinkers or flashers. I have LED in the front non led in back except for 3rd brake light. Brakes, taillights, running lights, park and all work including LED third light put LED flasher in, but my blinkers or flashers won't even come on not even on dash.





