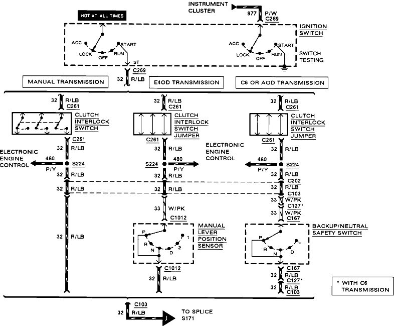
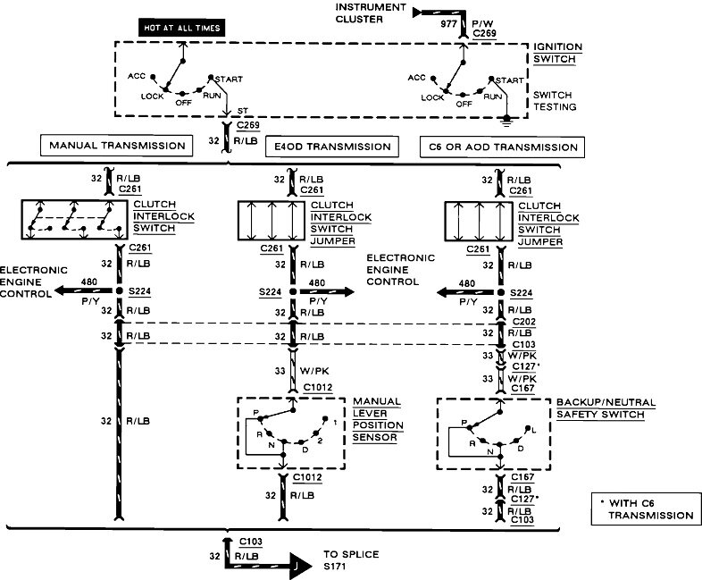
A little more background info:
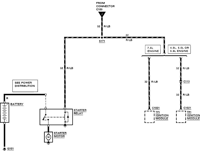
The start system was working fine. During the last drive however, the truck overheated due to a stuck thermostat (since replaced). Due to the overheating condition, the truck was shut down to prevent damage. However, when attempting to restart after it cooled down the engine was too tight, as if it partially seized up. (The serpentine belt would only move about 3-4 inches before it stopped.) Numerous attempts were made to start the vehicle while waiting for a tow. However, now that it is fully cold (and the next day) the starter is inoperable using the normal ignition switch.
As noted above, the engine cranks normally when bypassing the solenoid. I've driven it 15 miles since with no other issues.
Wednesday, January 29th, 2025 AT 11:55 AM






